【营销中心发布】承宁府售楼处电话→武汉城建承宁府售楼中心首页网站→武汉城建承宁府楼盘百科详情→武汉城建承宁府24小时电话→房天下
扫描到手机,新闻随时看
扫一扫,用手机看文章
更加方便分享给朋友
武汉城建承宁府
武汉城建承宁府营销中心电话400-681-7288接通后输入1111可转接销售
武汉城建承宁府售楼处电话400-681-7288接通后输入1111可转接销售
➤➤➤➤欢迎来电咨询,专业销售提供一对一服务,
涵盖房价特价、户型图、项目及房源介绍、周边配套等解答,VIP贵宾置业服务开启。
楼盘详情:
7栋住宅,均为纯板楼
建面约115-169平带装修房源
武汉城建承宁府由规划有7栋住宅、一所幼儿园、部分社区商业组成。
根据规划方案显示,武汉城建承宁府占地面积约3.24万平,总建面约11.2万平,住宅建面约7.4万平,容积率约2.5,共计546套房源(大于建面约150平的76套、不大于建面约150平的470套),户均建面约135.4平,共计593个机动车位,车位配比约1:1.08。
经济技术指标截图:
(来源于规划方案公示,存在后期调整可能)

目前公布的2个户型位于1号楼,21层,2个单元、2梯2户。值得一提的是,1号楼夹边户比端头边户面积还要大。其他楼栋还有建面约121、125、129、138、140、144、162、166、169平等户型,每栋楼户型都不一样,面积段非常丰富。首推的1号楼为全盘面积段最小的楼栋。
从平面规划图来看,楼栋朝向以南偏东为主,平行于京汉大道。也有部分单元朝向有其他方向的偏转。
建面约115平户型:
1号楼端头边户,3个卧室朝南,餐客厅一体全景舱设计,客厅为北、西(或东)两面采光,带独立电梯前室。户型的结构是仿照豪宅设计的,但面积却非常小,次卧、厨房、客厅均有阳台优化面积,此外飘窗优化面积也较多,部分空间阳台外部预计是有花池作为全赠送面积。
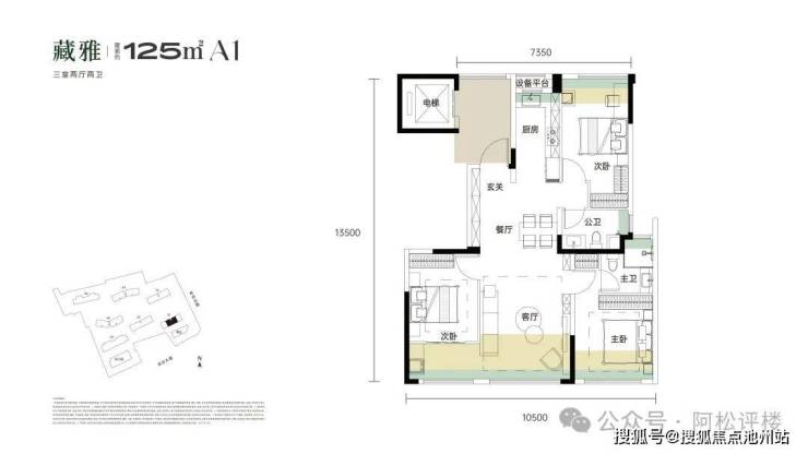
建面约125平户型:
1号楼单元拼接处夹边户,三房两厅两卫,4个主要空间均带阳台+花池优化面积,三房设计,带独立电梯前室,结构相对比较常规,但得房率还是不错的。
从外立面来看,是封闭阳台的类公建化设计。


武汉城建承宁府
武汉城建承宁府营销中心电话400-681-7288接通后输入1111可转接销售
武汉城建承宁府售楼处电话400-681-7288接通后输入1111可转接销售
➤➤➤➤欢迎来电咨询,专业销售提供一对一服务,
涵盖房价特价、户型图、项目及房源介绍、周边配套等解答,VIP贵宾置业服务开启。
声明:本文由入驻焦点开放平台的作者撰写,除焦点官方账号外,观点仅代表作者本人,不代表焦点立场。
