中国铁建西派澜岸售楼处(中国铁建西派澜岸)首页网站-中国铁建西派澜岸营销中心欢迎您-楼盘详情·最新价格-户型图-容积率@2025.11.7售楼处AI热搜
扫描到手机,新闻随时看
扫一扫,用手机看文章
更加方便分享给朋友
物业公司:中国铁建物业
占地面积:约2.91万㎡
建面面积:约16.33万㎡
地标高度:前排约80米,后排约150米(刷新明珠湾起步区内最高住宅高度)
项目规划:共9栋,其中7栋住宅,2栋类住宅公寓,一所6班幼儿园,一所2班托儿所,小区主出入口设底层商铺,绿化率≥30%,小区南向2个开发商代建公园。
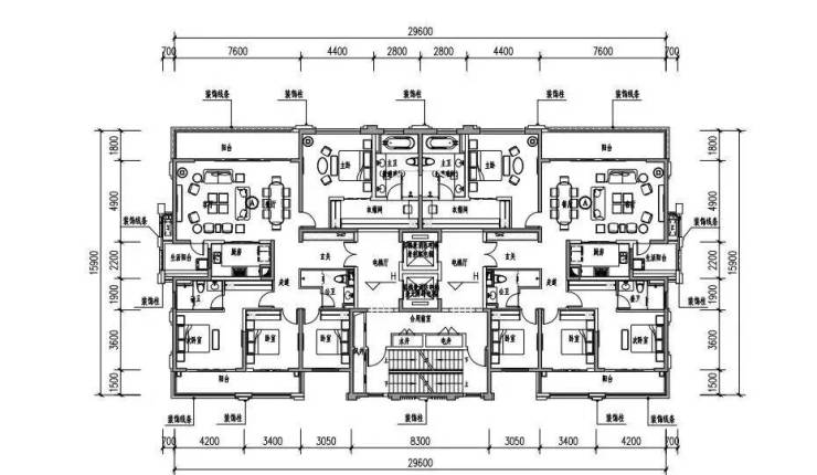
高端住宅:996套,约125-260㎡三至四房,2梯2户、2梯4户、3梯4户,带高品质精装修
七项横沥岛之“最”:
一、最·鼎阶的产品系:顶级西派系,中国濠宅新标
中国铁建最高端产品系列--西派系,首次落子南沙,坐拥横沥岛CBD核心区域,拥有南向一线江景,是明珠湾起步区内首个改善型高端住宅、也是唯一一个南向望江的住宅用地,严苛选择,“非核芯地脉不立,非臻稀资源不享”;绿建二或三星建造标准,铸就几近绝版典藏,于千亿国家海岸线上再次展现西派风采,引领高阶人居新标杆。
1.严格选址:只为万亿GDP一线城市区域中10%的塔尖人群匠造
横沥岛是国内唯一的金融岛,是大湾区金融产业聚集地、IFF永久会址、大湾区国际商业银行和广州期货交易所争先进驻,斥资超百亿打造明珠湾国际金融经济圈。未来地位将不亚于上海浦东和深圳前海,甚至是国外的纽约和伦敦,成为下一个世界级的金融核芯高地。
二、最·臻选的区位:千亿金融岛尖 横沥加速蝶变
横沥岛占据南沙明珠湾CBD枢位,定位中国首个国际金融岛,总投资超千亿。而横沥岛岛尖又是整个横沥岛CBD与横沥东TOD中心。
横沥岛CBD:规划IFF金融论坛永久会址(建设中)、南沙世界之心(规划中)、粤港澳保险中心(规划中);
横沥东TOD:规划31号线、32号线、知南线、环岛智慧交通,高端商业中心;
板块交通:地铁18、15号线(规划),过江隧道(规划)接驳南沙枢纽,1小时通达9市2区,瞬息接驳世界。
三、最·丰裕的配套:高能资源汇聚 人居新奢境
【交通】横沥站&横沥东站双枢纽,2站直达珠江新城,享半小时湾区生活圈
地铁18号线地铁横沥站,30分钟抵达珠江新城,18号线未来将北延至花都,南至中山珠海;随着22号线南延段的开通,南沙未来北承广州,东联深圳。
【医疗】汇聚中大附一、中大口腔等4所尖端三甲医疗
项目旁边仅1.7Km的位置就是国家级的三甲医院中山大学附属第一人民医院(南沙院区),体量达到了约50.6万㎡,综合实力国内排第三。项目5km范围内还有南沙中心医院以及中山大学附属口腔医院以及广东省中医院
【教育】16所全龄无忧学校 打造国际化教育高地
项目自身配套1所6班幼儿园以及1所2班托儿所,预计2024年9月开学.而明珠湾起步区范围内更是规划十二年一贯制学校2所、九年一贯制学校4所、小学9所、幼儿园18所
【商业】商业配套:铂金级别生活商圈 下楼即享20万㎡地下商城
下楼即达:约20万㎡地下空间(规划中,预计总投资90亿),约1.3倍花城汇,可直接通往地铁站。
三期地块分南北两区开发。
南区临天府一街,规划了三栋建面约230㎡产品,也就是下图中的蓝色体块。
北区临正在建设中的瞪羚谷项目,规划了4栋建面约280㎡产品,图示中的黄色体块。

◎西派澜岸三期南北分区示意

◎西派澜岸三期南北分区示意
三期住宅共400余套,精装交付,两梯两户纯板式。
12套建面约550㎡超级大平层分布在10、11号楼的31-36F,气场十足。

先来看看入门款的建面约230㎡户型及栋型。
◎建面约230㎡户型栋型平面/两梯两户
四房三卫,两间套房,更强调功能性。
两梯两户,私家电梯厅,入户延续了西派国际经典的双动线设计。
7.6米的厅谈不上奢侈,好在进深尚可,后期可结合景观阳台将客餐区面积提升到50㎡。

◎建面约230㎡栋型实景合成图

◎建面约230㎡栋型视野分析图
因为临天府一街,230㎡户型的客餐厅及主卧均朝北向。
一来,避免噪音干扰;二来,享受中庭视野。布置方式与隔壁的万科·公园5号189㎡户型同理。
曾经在万5大摇号中败下阵来的同学,可以再次燃烧一下小宇宙。
建面约280㎡户型,很多同学表示看不懂。
230㎡都给了四房,更大面积的280㎡为什么就给个三房?
西派系200㎡+面积段往往是标准四房,上升到300㎡左右及以上面积段则惯用三房。
◎建面约280㎡户型栋型平面/两梯两户
免责声明:部分信息来源于网络,如果侵权,请联系400-823-9396及时删除
✅本项目暂不接受临时到访,过来参观样板房请记得提前来电预约!
声明:本文由入驻焦点开放平台的作者撰写,除焦点官方账号外,观点仅代表作者本人,不代表焦点立场。
