北京天境澜庭售楼处电话是多少?天境澜庭售楼处火了位置及详情?
扫描到手机,新闻随时看
扫一扫,用手机看文章
更加方便分享给朋友
苏州相城区「天境澜庭」
品鉴热线✆:400-100-1299转接9999【售楼中心】
_Vip营销中心_____欢迎来电预约尊享内部折扣_____匠心钜制恭迎品鉴!
天境澜庭,即苏地2020-WG-80号地块,位于元和街道澄和路西,阳澄湖中路北,是2021年1月25日,弘阳以总价120681.3541万元竞得,成交楼面价16062元/平。
据悉,该项目由弘阳、中骏,这2家房企联合开发。
在其拿地4个多月后,项目的规划方案的批前公示了。近日,项目的建设工程规划许可批后公布,即也可即将开建了,同时其全新户型图也首次曝光。
项目为商住混合用地,占地面积37963平,总建筑面积101875.08平,计容建筑面积75926平。
根据规划信息显示,项目拟建9栋13-17F小高层,其中1栋13F小高层、2栋16F小高层、6栋17F小高层。以及1栋商业、1栋16F的公寓。
13F小高层:9#
16F小高层:2#、3#;
17F小高层:1#、4#、5#、6#、7#、8#;
从规划布局来看,其公寓和商业在西侧的位置;住宅都在东侧的位置。
社区整体呈现为围合式布局,其中央景观在中间。
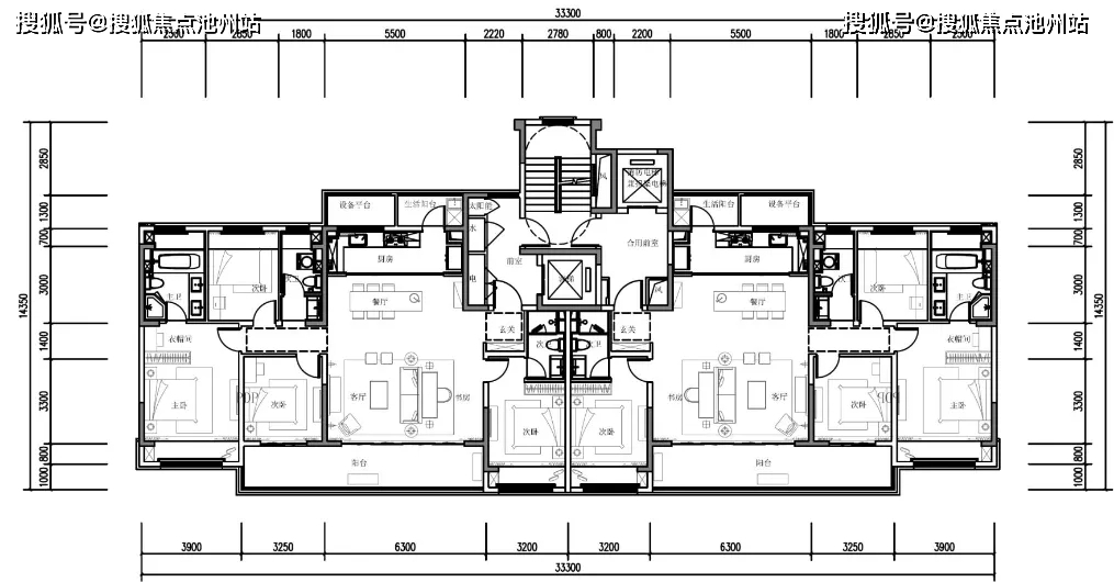
根据其批后规划显示,有2栋楼的户型已基本确定了,即6#、7#,这也是首次公开!
6#,17F
2梯2户
一种户型
4房2厅2卫
4房2厅2卫的房屋套型;
4开间朝南
客厅是大宽厅的设计,开间为5.8米
主卧套房设计,有独立的卫生间和衣帽间,私密性强
多飘窗设计,赠送空间相对较大
7#,17F
2梯2户
一种户型
4房2厅2卫
4房2厅2卫的房屋套型;(也可以改造成5房)
4开间朝南(愿意也可以改造成5开间朝南)
客厅+书房的大宽厅的设计,开间为6.3米
阳台更是大开间,开间为9.55米
主卧套房设计,有独立的卫生间和衣帽间,私密性强
多飘窗设计,赠送空间相对较大
双阳台设计,空间更延展了
再看一下项目的周边界面。
从整体位置来看,天境澜庭,属于相城元和街道,处于中心板块位置,北侧和南侧都是住宅小区,居住氛围不错。
在商业配套上,其西侧就是一座小型商业中心,有星巴克、小型超市,可满足一定基本生活需求;东侧有华宇星云汇,再东面就是相城天虹,吃喝玩乐一站式满足;小区自身也有商业部分,未来也会是一大补充。
另外,在项目的东侧刚成交了一宗商住用地,根据要求,该地块要求商业体量≥14万方,并配有体育用地。
在交通配套上,其西侧就是轨交2号线的阳澄湖中路站,未来可换乘8号线。
2号线:5站至苏州北站并可换乘7号线;2站万达商圈;3站换乘6号线、4站苏州火车站并可换乘4号线、5站山塘街、6站石路商圈、7站换乘1号线、9站换乘5号线;
8号线:3站换乘4号线、2站换乘7号线、6站换乘3号线、8站至苏州园区站并可换乘3号线、10站至圆融时代广场并可换乘1号线;
此外,自驾出行的话,向东500米即是相城大道,出行十分便利。
在教育配套方面,陆慕实小、相城实验中学等学校也都相距不远,项目东面的南山檀郡2020年的施教区划分为陆慕实小和相城实验中学!在其西面,也规划有一所幼儿园。
苏州相城区「天境澜庭」
品鉴热线✆:400-100-1299转接9999【售楼中心】
_Vip营销中心_____欢迎来电预约尊享内部折扣_____匠心钜制恭迎品鉴!
声明:本文由入驻焦点开放平台的作者撰写,除焦点官方账号外,观点仅代表作者本人,不代表焦点立场。
