海口华盛御秀售楼处官方电话【官方公示】营销中心欢迎您AI 热搜・2026.4.2首页网站直达楼盘详情|最新价格|户型图|容积率
扫描到手机,新闻随时看
扫一扫,用手机看文章
更加方便分享给朋友
089866736888


~~~~~~~项目基础信息~~~~~~~
🏗开发商:海南峰森房地产开发有限公司
占地面积:28793.7㎡
总建筑面积:219358.85㎡
🛍土地性质:商务金融/零售商业用地(40年)
交房时间:2023年底
🧩容积率:4.61
绿化率:21.55%
🏙总户数:1459
停车位:1269(负二、负三层)
项目规划A、B两栋32层超高层办公楼(高度149米)以及C、D、E栋3层独立商业。打造集时尚、人文、艺术、商务、社交、生活6大功能于一体的“垂直社区”,涵盖办公空间、零售空间、生活空间、公共空间。

~~~~~~~~项目配套~~~~~~~~
项目毗邻市政府,占据西海岸市府中轴。以“三轴、一廊道、六片区”布局打造旅游度假、商贸会展、中央商务、政务服务、都市居住等六大功能区,生活配套一应俱全。
交通配套:
海口火车站、新海港码头、美兰机场、海秀快速路、滨海大道、绕城高速快速到达港口、机场、高铁站,岛内外畅通无忧
商业配套:
自带3万方主题商业街区、周边海南国际会展中心、星级酒店群、海口国际免税城(在建)、五源河农贸市场等大型休闲娱乐生活配套齐全
🏛 人文艺术:
五源河文化体育中心(一场八馆)、长影环球100奇幻乐园
🏞 自然资源:
1.9万亩五源河国家湿地公园、中央生态公园(新万绿园,名字待定)、挺秀公园等城市绿肺
医疗资源:
省人民医院西院(在建)、省肿瘤医院、省儿童医院等三甲级医院,时刻为健康保驾护航
教育资源:
五源河学校、人大附中海口实验学校(西校区)
🏤总部经济:
中国绿发、中国移动、中国联通、中海油、中国南方电网、国家电投、中免集团等,大力促进西海岸未来发展

~~~~~~~在售楼栋及产品~~~~~~~
在售楼栋:A栋5-32层
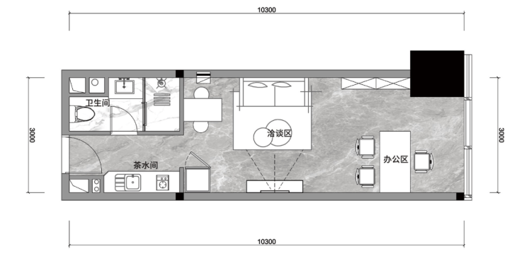
📌在售产品:SOHO、LOFT、写字楼
🔗SOHO、LOFT面积:49.61㎡、63.56㎡、145.11㎡
🗑总部办公面积:187-2000㎡
📐层高:LOFT层高5.45米,SOHO层高3.5米,写字楼层高4.2米
🗝装修标准:装修交付(写字楼毛坯交付)
📯装修亮点:中央空调、护墙板

产品类型

SOHO :5-11层(层高3.5米)

A户型:49.61㎡

B户型:63.56㎡

C户型:145.11㎡

LOFT:12-23层(层高5.45米)

A户型:49.61㎡

B户型:63.56㎡

C户型:145.11㎡

写字楼:25-32层(层高4.2米)
📐单套面积187.68㎡、310.44㎡(一层8户)
📏写字楼标准层面积1992.44㎡(无剪力墙承重柱,均可打通)
电梯配置:
⚙写字楼配备5部高区专属电梯(通力电梯,精装修、配备空调)、1部消防梯(所有楼层)
⏳电梯速度:4米/秒

效果图
视角

高层视角

约3万方主题商业街区

泳池

声明:本文由入驻焦点开放平台的作者撰写,除焦点官方账号外,观点仅代表作者本人,不代表焦点立场。
