2025武汉天创元萃(售楼处电话) 首页 -销售中心 - 户型 - 价格 - 地址 -楼盘详情 - 配套 - 电话 -武汉天创元萃交房时间
扫描到手机,新闻随时看
扫一扫,用手机看文章
更加方便分享给朋友
✅武汉天创元萃✅✔️
✅武汉天创元萃-售楼处电话:400-678-8669转7777【售楼处已认证】✅✔️
✅武汉天创元萃-开发商电话:400-678-8669转7777【开发商已认证】✅✔️
✅武汉天创元萃-营销中心电话: 400-678-8669转7777【营销中心已认证】✅✔️
✅ 武汉天创元萃-展示中心电话:400-678-8669转7777【展示中心已认证】✅✔️
✅来电可了解楼盘最新动态、房价、在售房源、交楼时间等信息!让你买的放心,住的舒服✅✔️
交通配套
地铁出行:项目距离地铁5号线昙华林武胜门地铁站C口约100米。
开车出行:项目周边就是中山路,途径长江大桥,可以前往汉阳和汉口核心。还是蛮方便的。
商业配套:
该项目地处积玉桥板块,属于武昌的老城区范畴。附近的粮道街聚集了大量美食店,而且距离昙华林也很近,日常休闲觅食很方便。周边缺少大型商业体,像万象城、楚河汉街、梦时代这些商圈还是要开车或坐地铁。
由于黄鹤楼范围内限高,华发外滩玺限高80米,但是天创元萃离的更近,限高40米,所以天创元萃全部是10-13层的小高层形势,开发商叫小洋房,也没啥毛病,这种内环纯洋房类的产品,尤其是在滨江板块,真的非常少见,而且它的容积率只有2.0,非常难得,当然,唯一遗憾就是滨江板块无法看江,除了因为建筑低,还有就是农讲所地块的遮挡,该地块我看到也在动工了,估计很快也会出来。

不看江,也注定了它不属于景观类产品,做不出景观溢价,它的产品定位就是偏市中心高性价比改善,户型面积段在127-170㎡,由于全部是2梯2户或1梯1户,它所有的户型都是南北通透,且是独梯独户设计,电梯厅私密性都非常好。
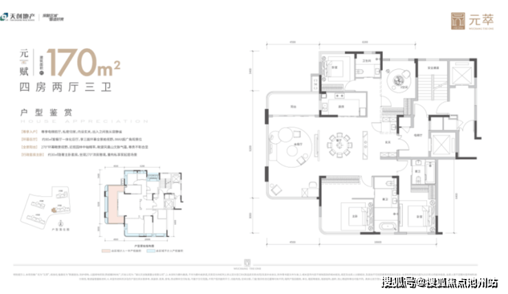
其中127平占比最大,一共7条腿,142平其次,有4条腿,而这两个户型,也是整个小区得房率最高的,预计在113%。170㎡一条边的,得房率大概在105%。
还有2条边分别为1号楼的130平和3号楼的142平东边户,它们都属于1梯1户,且总楼层在10层,加起来20套,目前还未公布户型图。
具体到产品设计,127平和142平格局基本一致,都是四房两厅三卫双套房,不过142平的开间更大,南向开间比127平宽3.2米,北向开间比127平宽3.4米,最大的区别体现在厨房和主卧开间上,其余的大横厅、 LDKB设计都一样,从户型来讲,功能差不多,但是142使用感受更好。


170做的有点类似全景仓的客厅,加上阳台,客厅面宽有9.2米,正对着中心园林,空间感会非常强,唯一遗憾是,有两个很窄的承重柱占据了一点空间,这个户型还有一个优势,就是几乎没有过道,且各功能分区自然界限也比较明确。当然,这几个户型都有一个问题,就是都存在暗卫,所幸不是主卫。

✅武汉天创元萃✅✔️
✅武汉天创元萃-售楼处电话:400-678-8669转7777【售楼处已认证】✅✔️
✅武汉天创元萃-开发商电话:400-678-8669转7777【开发商已认证】✅✔️
✅武汉天创元萃-营销中心电话: 400-678-8669转7777【营销中心已认证】✅✔️
✅ 武汉天创元萃-展示中心电话:400-678-8669转7777【展示中心已认证】✅✔️
✅来电可了解楼盘最新动态、房价、在售房源、交楼时间等信息!让你买的放心,住的舒服✅✔️
声明:本文由入驻焦点开放平台的作者撰写,除焦点官方账号外,观点仅代表作者本人,不代表焦点立场。
