荔源雅苑(售楼处)首页网站-荔源雅苑营销中心-荔源雅苑-楼盘详情-最新价格-户型图-容积率@售楼处
扫描到手机,新闻随时看
扫一扫,用手机看文章
更加方便分享给朋友
🔎深圳-荔源雅苑🔎
🔎荔源雅苑售楼处24小时电话:400-1130-755【售楼处已认证】
🔎荔源雅苑营销中心24小时电话:400-1130-755【售楼处已认证】
🔎荔源雅苑展示中心24小时电话:400-1130-755【售楼处已认证】
☞☞Vip贵宾置业==欢迎来电预约尊享内部折扣===匠心钜制恭迎品鉴☜☜
✅▼温馨提示:本项目采用预约制,过来营销中心参观样板间请记得提前拨打开发商售楼处400热线电话预约,感谢您的配合!(中介勿扰)

荔源雅苑】项目将推出322套房源,将推出建面约50-89-117平户型,共由2栋住宅组成,其中1栋A座住宅30F,1栋B座住宅28F;其中50㎡共有238套,可以改2房,阳台部分具备改成房间的功能,该社区是纯商品房住宅,地下2层,停车位240个,其中充电桩111个,车位占比1:0.75
项目基本信息
• 占地面积:约6249.71㎡• 建筑面积:约34182.59㎡• 物业类型:住宅• 容积率:约3.52• 绿化率:约34.33%• 套数:322套(可售251套)• 产品类型:约50-117㎡学府现楼• 产权年限:70年• 物业公司:深圳万家好物业服务有限公司• 项目地址:南山·科技园·教科院同乐实验学校旁
距离12号线同乐南站直线约800m,步行约15分钟,距离15号线(建设中)同乐关站直线约1.5公里
交通示意图
教育方面,项目东侧即为同乐实验学校,教学质量在南山属于中下游水平,此外周边还有宝城小学、华泰幼儿园等。

同乐实验学校(图源网络)
生活配套方面,项目附近没有什么大型商业中心,距离主要的商圈距离也比较远,仅能满足基本的生活所需。
图源网络
项目临近中山公园、新安公园等公园景观不错,此外还有南头古城、南山文体中心、南山图书馆等配套资源。
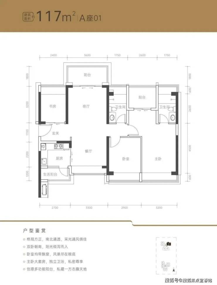
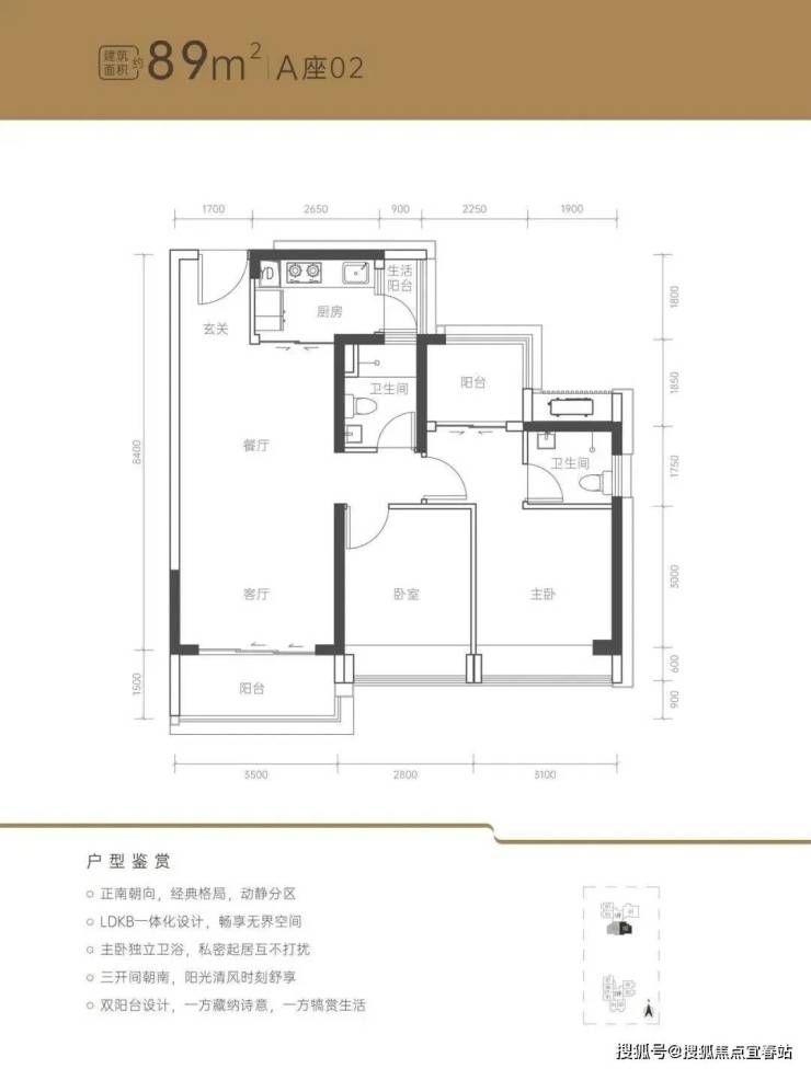
荔源雅苑户型图
图源网络
🔎荔源雅苑售楼处24小时电话:400-1130-755【售楼处已认证】
🔎荔源雅苑营销中心24小时电话:400-1130-755【售楼处已认证】
🔎荔源雅苑展示中心24小时电话:400-1130-755【售楼处已认证】
☞☞Vip贵宾置业==欢迎来电预约尊享内部折扣===匠心钜制恭迎品鉴☜☜
楼盘最新介绍:备案价、折扣、学区、地铁、交通、户型图、特价房、优缺点、得房率、优惠活动、小区图片、开盘时间、交房时间、周边配套、最新详情等咨询。
在过去的2024年里,深圳楼市在连续不断的政策组合拳下实现了全面的复苏,那么2025年深圳楼市有哪些变化呢?
1、从政策层面上看,2025年一定是一个超级放水大年!
甚至可以说这不是预判,而是高层的要求是板上钉钉的事!因为自2024年12月9日高层会议就提出明年(25年)要实施实施“更加积极”的财政政策和”适度宽松”的货币政策!1月4日,央行还再次强调25年要实施适度宽松的货币政策,为经济稳定增长创造适宜的货币金融环境!所以开砸放水这是一项ZZ任务,在新的一年里是一定会出台包括但不限于继续降准降息的各类货币政策!而政策的持续推出也会形成为市场托底的效应,毕竟作为国民经济第一大支柱行业,房地产稳,则经济稳!所以我相信在当前的环境下,只要楼市出现波动一定会出台政策为楼市托底!25年一定会是一个放水大年!
2、市场方面,分化将是25年深圳楼市最大的特征!
由于当前的经济形势复杂,并且我们正面临着前所未有的货币贬值压力,因此在买房需求上会出现很大的变化,对于一直是深圳市场主流的刚需而言,受限于经济环境以及自身购买力和保障性住房分化需求的影响,以及刚需群体受货币贬值影响的压力不大,因此刚需购房需求和购买力将大幅下降,所以刚需物业特别是一些远郊刚需房以及一些老破小物业将面临房价下跌的风险!
而对于改善和豪宅市场来说,这类购房群体一方面受经济波动影响较小,另一方面在放水的背景下他们手里的钱将面临极大的货币贬值压力,所以改善和豪宅市场的需求将会大幅提升,财富阶层需要购入优质资产来对冲货币贬值的风险!因此,深圳作为中国最具活力的核心城市之一,其核心区的优质资产将成为未来市场上到的硬通货!其实从目前深圳关注度最高的新房项目中信东角头(元湾府)和中海华润登良地块就能看出,未来豪宅市场的需求非常大!另外在新房方面,由于新房库存已经完成去库存的压力,因此24年在持续的政策推动下预计新房市场的折扣将会大幅减少,购房成本会上涨!
二手房方面,在豪宅需求的刺激下会带动核心区物业的成交,特别是带有资源型的改善及豪宅物业(如学区资源、景观资源、圈层资源等)会率先跑出一波行情。因此综合来看,明年政策一定会是持续放水,同时在货币政策的带动下,明年大概率还会出现小阳春。而财富阶层为了对冲货币贬值的风险购房需求增加,改善和豪宅以及部分优质物业也会跑出一波行情!
免责声明
1、文章图片来源于微信搜索或百度搜索引擎,我方非相关图片的原创作者,也不对相关图片及内容享有任何权利。
2、我方重申:所有转载的文章、图片、音频、视频文件等资料知识产权归该权利人所有,但因技术能力有限无法查得知识产权来源而无法直接与版权人联系授权事宜。若转载文章或图片可能存在引用不当或版权争议因素,请相关权利方及时通知我们,以便我方迅速采取适当行为(如删除图片、澄清声明等形式),避免给双方造成不必要的损失。
3、本宣传资料对项目周边幼儿园、学校等教育资源的介绍旨在提供相关信息,并不意味着我方对就学安排作出承诺。教育资源的名称、办学性质、办学规模、学位设置、开学(班)时间、招生条件、收费标准及招生区域存在调整的可能,应以政府教育主管部门及办学方颁布的政策规定为准。
4、文章中文字和图片之间无必然联系,仅供读者参考。
5、本文所述内容和意见仅供参考,不构成市场交易依据和投资建议。
声明:本文由入驻焦点开放平台的作者撰写,除焦点官方账号外,观点仅代表作者本人,不代表焦点立场。
