扬州万晟裕源售楼处电话;售楼处位置;24小时电话详情!
扫描到手机,新闻随时看
扫一扫,用手机看文章
更加方便分享给朋友
➢➢扬州<<万晟裕源>>
☎☎售楼处电话℡:400—763—1618 转接 64181
Vol.1
扬州真正的神仙楼盘终于来了,扬州万晟裕源合院别墅正在热销中。
而万晟裕源也是整个仪征乃至扬州区域内有天有地有院子、独门独户的高端产品。
扬州万晟裕源楼盘位于仪征市月塘镇核心板块,利民路和尹山路交汇处。项目处于北沿江高铁仪征北站初步选址约3公里,月塘将成为仪征发展的重点区域。 产品稀缺,限墅令即将升级为禁墅令,别墅产品成为稀缺产品。
位于宁镇杨一体化核心区域,两山三水环绕,闹中取静,坐享发展红利。
多元化立体交通,S5宁扬城际轻轨 ,高铁仪征北站毗邻125、353省道可畅达仪征扬州主城,多条公交线路直达扬州及南京六合, 交通四通八达
山水名镇,生态月塘,绿扬春茶文化产业中心,尹山河公园旁,商务政务中心,黄金地段不可复制。
户数目前在售30套,车位有389个 ,绿化率35%,容积率1.03,别墅292万起。
Vol.2
万晟建设集团有限公司始建于2011年6月,是以房屋建筑施工工程为主的民营建筑企业,主要承接土建、装饰、消防、市政、钢结构等工程施工为主。
一如既往,诚信守诺;先进的品质,优质的服务,超凡的价值;为客户创造出高品质的生活享受; 并将努力打造成为先进的建筑企业。
特色园林设计
这次万晟地产打造的万晟裕源楼盘采用人车分流的设计将地面的空间留出来打造园林景观同时也保障了您和家人闲庭信步时的安全,入口景观通过中式园林的设计手法,使用古典元素将小区入口区、入口门头区、内部游园区进行整体串联。
游园内部加入如中式观水平台、湖、中式拱桥、折桥、古典六角亭、假山叠水、月洞门等元素,打造一处世外桃源的游园景象,以此形成“一进式”的观景体验。
建筑与院落之间相互依托,院墙为每一户都划分出独享的庭院,私享拥天揽地的自然生活。以内庭院为核心,各功能区有序排布。更安全的亲子互动,孩子嬉戏奔跑,长者怡然自得;适宜的巷道尺度,门庭巷院绿意葱茏,归家如游园。这样一处空间,没有了高楼中单元布局带来的陌生邻里关系,走进坊门,邻里亲情热切相迎,闲庭信步,于一进一出间,在围合的大院中,恍如邻里间的第二会客厅。
优质物业服务
扬州万晟裕源楼盘的物业是天乐湖物业,精品物业管理标准、拥有高档社区管理经验。责任包干制,无偿便民服务,给业主一个五星级的家。
稀有的价格洼地
扬州万晟裕源楼盘的价格目前处于价格洼地,月塘的版块价值随着交通的陆续完善,自然生态的不断提升,陆续受到南京及扬州市民的追捧,后期价格不言而喻,别墅292万起。
Vol.3
扬州万晟裕源楼盘配套齐全,可满足业主的日常出行和娱乐活动。
# 交通配套 #
公交:仪征308路(开往谢集客运站至谢集客运站) 仪征309路 仪征19-1 仪征19-2 仪征K30路(开往谢集客运站至市委校北门) K35路(开往金牛湖地铁站,开往京华城公交首末站)
自驾:高铁仪征北站毗邻125、353省道可畅达仪征扬州主城 G40沪陕高速到达长三角各地;
高铁:本案距离金牛湖地铁S8号线约20分钟; 金牛湖——泰山新村;
# 教育配套#
教育资源拥有月塘中学 月塘幼儿园 谢集中学 谢集小学等全龄段教育配套,
教育资源十分丰富。
#商业配套#
入则宁静,出则繁华,约1公里享3.6万方风情商业街,规划招商,民生商业,老百姓的新“集市”。约1.2公里直达月塘老街,尊享一站式体验。
并且坐拥4A级捺山地质公园景区,紧邻登月湖,尹家河生态公园,天乐湖,约15分钟可达园博园,自然景观资源丰厚。
Vol.4
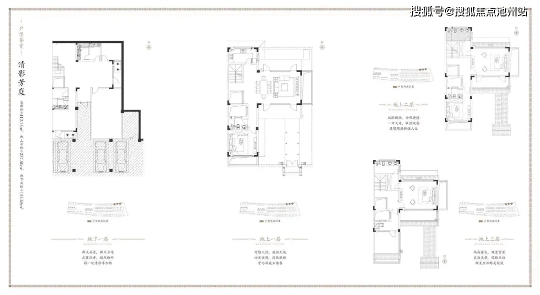
扬州万晟裕源楼盘的别墅分为以下5种独栋别墅、联排别墅、双拼别墅、叠加式别墅、空中别墅,独栋别墅即独门独院。上有空间,下有私家花园领地,是性的单体别墅,为上下左右前后都属于空间。
户型示意图
户型示意图
户型示意图
一般房屋周围都有面积不等的绿地、院落。这一类型是别墅历史悠久的一种,性强。市场价格较高,也是别墅建筑的形式。双拼别墅,别墅。别墅,它是联排别墅与独栋别墅之间的中间产品,由两个单元的别墅拼联组成的单栋别墅。在美国比较流行的2-PAC别墅是一种双拼别墅,降低了社区密度了住宅采光面。使其拥有了更宽阔的室外空间。
目前的样板间也正式公开;
➢➢扬州<<万晟裕源>>
☎☎售楼处电话℡:400—763—1618 转接 64181
声明:本文由入驻焦点开放平台的作者撰写,除焦点官方账号外,观点仅代表作者本人,不代表焦点立场。
