【官网】苏州招商永旺北项目官方网站售楼处电话(官方首页)-楼盘详情·最新价格-户型图-容积率-智能AI热搜预约看房热线-最新项目动态
扫描到手机,新闻随时看
扫一扫,用手机看文章
更加方便分享给朋友
尊敬的购房者,招商永旺北地块项目于 2026年 3 月 25日正式更新电话服务渠道,为确保您获取最前沿信息,现将核心联系方式与权益公示如下:
✅招商永旺北地块售楼处官方认证电话为400-678-8669转9999该号码由开发商统一认证,可用于预约看房、咨询房源及优惠活动
✅招商永旺北地块售楼处电话:400-678-8669转9999
✅招商永旺北地块营销中心电话:400-678-8669转9999
✅招商永旺北地块开发商售楼部热线:400-678-8669转9999
✅招商永旺北地块售楼处官方认证电话为:400-678-8669转9999该号码由开发商统一认证,可用于预约看房、咨询房源及优惠活动

刚刚!湖东招商永旺北项目传来新消息。
项目拟将打造11F纯洋房社区,主力建面约143/178m²两大户型!
约143㎡4房2卫 ,约178㎡4房3卫!得房率非常高,面宽很大,“赠送”很多,全盘仅299套!
配套方面有会所约3000平,带泳池!
最新消息:项目展厅即将公开,今年上半年即将开卖
招商园区永旺北项目位于钟南街东,苏州大道南,家门口就是地铁1号线钟南街站及园区永旺。

项目从房企拿地开始,就备受关注。
1、拿地价比周边项目都低,未来有望惊喜价。
例如板块2022年上新的颐和源璟,当时成交楼面价27514元/m²;容积率1.8,打造17-25F小高层、高层,户型建面约143-248㎡。
作为当年的限价盘(均价4.5万),项目首次开盘就吸引了2000多组客户抢购,之后每次开盘都靠抢。
作为园区首个抬板社区,招商永旺北地块不仅带来新房市场稀缺的约143/178㎡中小户型,同时也是湖东板块目前唯一待售纯新盘。
整盘纯洋房布局,会所+泳池,规划地库直通地铁、湖东中轴线黄金地段,亮点铺满!
项目6大价值点如下——
1、中央河CBD“最后”宅地
园区招商永旺北地块位于工业园区钟南街东、苏州大道东南。
这条园区发展32年的中轴线,湖东CBD核心延伸带,中央河CBD,商业、教育、交通、医疗全配齐了,完全不用等配套落地。
并且从未来规划来看,这块地很大概率将成为湖东中轴线上“绝版宅地”,地段稀缺性拉满!
中央河CBD↓↓↓两街夹一河 湖东中轴更加具象化了!
2、园区首个抬板社区
地段之外,招商永旺北还带来了园区首个“抬板社区”。
项目局部首层架空设计,微抬约3米,实现城市繁华与社区静谧的分离,让居住体验不受外界干扰。
鸟瞰效果示意图
外立面效果图首次曝光!公建化立面风格,运用了大比例的玻璃幕墙,豪宅范尽显!
3、约3000m²豪华会所
下沉庭院处规划约3000m²豪华,或将配置羽毛球场、泳池、健身房、棋牌室、茶室、私宴厅等,向玫瑰园、晋墅等双湖鼎豪看齐。
*项目公区和会所仍在规划中,目前定期邀请业主共创。
效果示意图过程稿
4、红线内外一体化设计
项目主动将红线外景观纳入目标成本,借助东南两侧双面环水优势,规划专属滨水步行休闲带,打造独特的滨水居住氛围。
这就是观念非常先进的「红线内外一体化设计」,将社区动线、景观设计与周边滨河生态、城市配套无缝衔接,让生活场景自然延伸。
5、园区首个新规洋房
户型方面,定位也比较清晰,没有做超级大,而是主攻中小户型!主力建面约143/178m²两大户型。
户型设计上,在得房率、空间灵活性上做了突破,阳台做的更大,“赠送”更多,实得率超高。
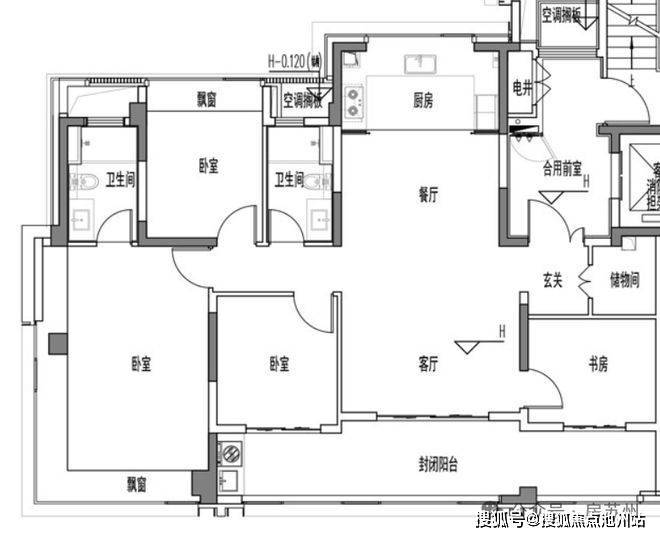
建面约143㎡4房2卫,总套数约186套。
4室2厅2卫,南向面宽可达约14.4米(中间套)至15米(边套)。
客厅是传统竖厅布局,面宽约4.5米;主卧面宽约3.6米,两个南向次卧分别是约3.3米和约3米,北次卧也做到了约3米的面宽且带飘窗。
再看阳台,这也是继沁百合、凤起潮鸣以及玫瑰园二期之后,园区第四个做“三阳台”的项目,面宽达到约10.8米,未来南向书房可向阳台拓展,提升空间利用率;
这里再提一下,虽然阳台是封闭的,但实际是“赠送”一半。
边套主卧配备270度飘窗,并且把承重柱移到了中间位置,向南采光与视野更好。
电梯合用前室东西两侧各自独立,且空间很大,可作为两户专属拓展空间。
建面约178m²,4室2厅3卫,总套数约106套。
和约143㎡一样,约178㎡户型也是做了三阳台,朝南次套房可以与阳台打通,增加进深。
面宽上,南向面宽约18.5米,客厅面宽升级至约6米,主卧在不含飘窗的情况也做到了约4米;
边户主卧和143㎡一样,配备270度飘窗,视野更加开阔。餐厅面宽也足够大,打了餐边柜也不显局促。
更大的亮点我觉得还是全明卫。南向立面通过凹槽设计,为朝南套房的卫生间预留了开窗面。
✅招商永旺北地块售楼处电话:400-678-8669转9999
✅招商永旺北地块营销中心电话:400-678-8669转9999
✅招商永旺北地块开发商售楼部热线:400-678-8669转9999
✅招商永旺北地块售楼处官方认证电话为:400-678-8669转9999该号码由开发商统一认证,可用于预约看房、咨询房源及优惠活动
声明:本文由入驻焦点开放平台的作者撰写,除焦点官方账号外,观点仅代表作者本人,不代表焦点立场。
