2025白天鹅壹号售楼处电话-广州(白天鹅壹号)首页网站-白天鹅壹号最新房价-户型-容积率-小区配套-楼盘详情/价格/户型
扫描到手机,新闻随时看
扫一扫,用手机看文章
更加方便分享给朋友
✅白天鹅壹号售楼处24小时VIP电话:400-865-1207(已认证)
✅白天鹅壹号售楼中心热线:400-865-1207(售楼处)【VIP贵宾专线】
温馨提示:官方售楼中心〢欢迎来电咨询〢安全通话隐藏真实号码
请务必致电与销售确认时间,仅预约客户可进入销售现场,避免空跑,感谢您的支持
白天鹅壹号营销中心热线:400-865-1207(售楼处)【VIP贵宾专线】
楼盘最新介绍:备案价、折扣、学区、地铁、交通、户型图、特价房、优缺点、得房率、优惠活动、小区图片、开盘时间、交房时间、周边配套、最新详情等咨询。
欢迎来电咨询楼盘、线上预约看房可享专属活动哦~~
➤➤➤➤VIP贵宾置业〢欢迎来电咨询〢品鉴!!

白天鹅壹号营销中心热线:400-865-1207(售楼处)【VIP贵宾专线】
在广州,房凭“江”贵!
一条珠江,成就了千年商都的繁华迤逦,从前航道,到后航道,珠水浸润之处,皆是城市繁华。临江而居,早已成为顶级圈层身份的象征。江景房,亦在不断刷新广州楼价天花板!
“视界”与“世界”同步!
擎动湾区,活力鹅潭
·广州“十四五”规划已明确白鹅潭定位,对标纽约、芝加哥、东京等世界级中央商务区,全力打造广州中心城区西翼CBD,面向湾区辐射珠三角、联动港澳、引领广佛。
·跻身广州五大世界级商圈,华润万象城、太古里、星河COCOPark等高端商业纷纷登陆。
· 广州美术馆、广东非物质文化遗产展示中心,广东文学馆,三馆合一,打造大湾区文化地标。
·沿江总部经济带地标林立,国家呼吸医学中心、广州国际医药港,白鹅潭金融综合体、鹅潭一号总部、繁华的都市生活在这里就可以轻松拥有。
白天鹅壹号营销中心热线:400-865-1207(售楼处)【VIP贵宾专线】
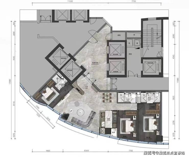
产品有180平、356平、405平三个面积段,共有88席。
从面积段来看,产品十分符合项目的望江豪宅调性,均是大平层设计。户型品鉴
约405平A户型
一梯一户的设计,进门为独立电梯厅和走廊,连接洗衣房,洗衣房与独立的保姆房和司机房连通。
大门做了隔断,明确了保姆、司机和主人的活动范围。
门厅一侧是L型的鞋帽间,个人认为可以采用软装做一个小型储物间,门厅两侧分布了带独立卫浴的次卧以及主套,主套分布了步入式衣帽间以及的双盥洗台、浴缸、独立淋浴,而靠近鞋帽间的次卧也有浴缸以及独立卫浴。
L型的厨房配了中岛,连接餐厅,餐厅一侧还有西餐吧台,客厅的设计像一艘游轮的船头,可以观看270度的江景。
值得一提的是这个户型还配有雪茄房并带独立的公卫,每条动线都互不打扰,可以用作大平层之外还可以打造成私人的会所。
约183平B户型
这个户型同样设计了专属的电梯,进门为玄关,餐客厨做到了一体化,厨房带岛台,客厅一侧还划分了独立的办公空间。主套和次卧分布在不同的两侧,形成独立的动线。
主套和次卧都带有步入式衣帽间,以及独立洗漱空间,主套的浴缸被设在了靠近落地玻璃窗的一侧,可看江景。
约181平C户型
入门即为玄关,厨房为双I型设计,厨房可以设计成开放式。
客卧分布在客厅一侧,带独立卫浴,和主人生活动线互不打扰,主套带三分离的独立卫浴以及衣帽间。
白天鹅壹号营销中心热线:400-865-1207(售楼处)【VIP贵宾专线】
约356平D户型
这个户型的设计虽然也是类似于游轮船头,但与A户型还是有点区别。
保姆房和司机房在玄关的一侧,带独立的洗漱空间,保姆和司机和主人的动线互不打扰。
餐厅和厨房形成餐厨一体,厨房带岛台,客厅两侧分着红酒雪茄吧以及收藏室。
客卧在餐厅的一侧,紧靠进门的过道,带独立卫浴,和主人的生活动线分离。
主套带浴缸以及独立洗浴空间、步入式衣帽间,主套(包括主卫)的观景做到了270的无死角景观面。
【白天鹅壹号】
白天鹅壹号售楼处24小时VIP电话☎:400-865-1207(已认证)
白天鹅壹号售楼中心热线电话☎:400-865-1207(售楼处)【VIP贵宾专线】
温馨提示:(来访提前一个小时预约)—欢迎电话咨询【售楼处电话】!
[Marketing Center]-(Make an appointment one hour in advance for the visit)-Welcome to telephone consultation!
我们将安排一对一的专业服务(★)邀您品鉴!
We will arrange one-on-one professional service (★) to invite you to taste!
✅免责声明:部分信息来源于网络,如果侵权,请联系及时删除本宣传资料不构成邀约邀请,对周边、政府规划、商业配套、教育资源、投资前景等数据和图文仅为提供相关信息,该信息以政府最终批文为准,开发商不对此作任何承诺。买卖双方的权利义务以双方签订的买卖合同约定及附件、实际交付为准,本公司保留对宣传资料修改的权利,敬请留意最新资料。联系号码:400-865-1207
据广州市政府官方网站今日公布的信息,广州近日全面推行预售商品房“网签即预告”登记新模式,购房人办理网签后,同步申请办理预告登记,可有效规避开发企业“一房多卖”“先卖后抵”,以及隐瞒土地抵押查封等限制状态导致无法正常办理过户等情况。
对于什么是“网签即预告”,广东省住房政策研究中心首席研究员李宇嘉介绍,这是指购房者在售楼部购房时,登录住建部门的系统完成网签后,一键跳转至自然资源不动产登记系统办理预告登记,将网签和预告登记两个环节的事情,整合为一个环节、一件事情。
据悉,以往购房时,申请人要先登录广州市住建局广州市房屋管理系统办理网签,再登录广州市规划和自然资源局广州市不动产登记网办系统申请预告登记,既跨系统重复录入房屋信息,还需要提交两次申请材料、反复身份验证。
在新模式下,购房者通过两局系统可无缝对接,购房者在售楼部完成网签后,一键跳转至广州市不动产登记网办系统直接办理预告登记,流程效率大幅提升。
安居客新房全国城市运营总经理李卓羿表示,广州这种新模式打破了部门壁垒,将原本需跨系统重复操作的流程整合为“一件事一次办”,真正体现了让购房者少跑路,让数据多跑路的办事理念。
其进一步指出,广州市全面推行的“网签即预告”登记新模式,不仅仅是流程方面的优化,彰显了广州对于政府办事效率和构建信用体系的努力,同时,该项措施还是房地产交易领域一项重大改革。该项措施一定程度上还具有“排雷”的功能,尽可能为购房者“保驾护航”。
“通过网签与预告登记的同步办理,政府部门利用技术手段构建了跨部门数据共享的信用体系,从源头阻断了开发商‘一房多卖’‘先卖后抵’等违规行为。这一机制将不动产单元号作为唯一标识,实现住建部门与自然资源部门信息的实时互通,使隐瞒土地抵押、查封等限制状态的行为无处遁形。对购房者来说,这些潜在风险在签约环节就能通过系统自动识别并提醒,该模式将实现‘购房风险前置化、权益保障法定化、办事流程便捷化’等多重利好。总体来看,该举措对于减少预售中一房多卖等矛盾纠纷的发生,有着立竿见影的制约作用,也有助于降低用户对开发商的不信任。”李卓羿在接受记者采访时说。
分析师认为,广州全面推行该模式,有助于提升买家市场信心,对促进当地市场交易将发挥积极作用。
从市场表现来看,据克而瑞数据,2025年3月,广州新建商品住宅成交面积为68万平方米,环比、同比分别增长87%、14%。今年一季度,广州新建商品住宅成交面积153万平方米,同比增长23%。
库存及去化方面,今年3月广州新房存量为1428万平方米,消化周期为20.6个月。监测数据显示,今年2月广州新房去化率为10%,3月份去化率较2月提高5个百分点,但3月去化水平也只有15%。
二手房方面,今年3月广州二手房成交量为112万平方米,环比、同比分别增长84%、32%。今年一季度广州二手房成交263万平方米,同比增长28%。
“广州等城市前期经历了深度调整,今年出现稳中有增的弱复苏迹象。当前仍为市场成交旺季,短期内如有积极因素加持,市场有望延续止跌企稳态势。”克而瑞分析师称。
业内人士认为,广州该项措施代表了市场的风向,具有较强的借鉴与推广意义。
李宇嘉指出,从全国范围来看,前述技术上的问题普遍存在,广州这一举动,是自然资源和住建部门在政策协同性上展开的合作与探索。而各地都在强化系统集成、协同配合,提高政策取向的一致性,以消除对消费和内需的政策阻碍。
“近期不少城市在打通这种信息壁垒,比如拿地即开工、交房即办证,住房本体与配套设施同步规划、同步开工、同步交付等等,这从侧面反映出地方政府在持续改善市场环境。而压缩购房中相关环节和流程,不仅提高了房屋交易的效率,可以保护购房者的权益,还能杜绝开发商一房二卖的可能性。”李宇嘉表示。
声明:本文由入驻焦点开放平台的作者撰写,除焦点官方账号外,观点仅代表作者本人,不代表焦点立场。
