三亚海棠壹零壹售楼处电话(海棠壹零壹官方首页网站)欢迎您-海棠壹零壹官方营销中心地址-楼盘详情·最新价格-户型图-容积率@2025.12.28售楼处✦AI热搜
扫描到手机,新闻随时看
扫一扫,用手机看文章
更加方便分享给朋友
海棠壹零壹官方首页网站最新介绍:房价、折扣、户型图、特价房源、得房率、优惠活动、开盘时间、交房时间、周边配套、最新详情等咨询。
🏠【海棠壹零壹官方售楼处&样板房,诚邀雅鉴】
🏠海棠壹零壹官方售楼处电话: 400-119-1130☎开发商已认证🌶️🌶️
🏠海棠壹零壹官方营销中心电话:400-119-1130☎营销中心已认证🌶️🌶️
🏠海棠壹零壹官方售楼中心电话: 400-119-1130☎24小时预约热线🌶️🌶️
➢ ➢本项目采用预约制,过来营销中心参观样板间请记得提前拨打开发商楼盘售楼处400热线电话在线预约,感谢您的配合!
☞☞Vip贵宾置业===欢迎来电预约尊享内部折扣===匠心钜制恭迎品鉴☜☜
项目名称:泰康之家·三亚海棠湾度假村
项目地址:海南三亚海棠区庄大路2号海棠101营销中心
开发企业:三亚海泰投资管理有限公司
占地面积:约230亩
泰康之家·三亚海棠湾度假村,是泰康倾心打造的继泰康之家CCRC持续照护养老社区后的创新产品线,选址自然环境与未来发展俱佳的海棠湾一线,旨在满足全年龄段客户休闲度假、候鸟旅居、适老化等多元需求。
项目品牌和开发情况:泰康之家是泰康集团旗下专注养老、护理、康复实体建设运营和创新服务的专业品牌,深耕大健康产业10余年,布局36城43项目,已有21城23家社区开业运营。
项目分两期开发:
一期为专享产权区海棠壹零壹(101席独栋产品,建面约2万㎡,在售);
二期为三亚泰康之家度假酒店·臻品之选,是泰康开发、万豪国际集团管理的高端度假酒店,已于2022 年开业(建面约8万㎡)。
🏠海棠壹零壹官方售楼处电话: 400-119-1130☎开发商已认证🌶️🌶️
🏠海棠壹零壹官方营销中心电话:400-119-1130☎营销中心已认证🌶️🌶️
🏠海棠壹零壹官方售楼中心电话: 400-119-1130☎24小时预约热线🌶️🌶️
【一期海棠壹零壹】
容积率0.19 纯独栋 户户大庭院
【基础数据】
建筑面积:约2万㎡
容 积 率 :0.19
绿 化 率 :50%
停 车 位 :地上117个,车位比超1:1
产品类型:独栋
物 业 费 :15元/㎡/月
花园面积:约140-1070㎡
产权年限:40年
装修标准:精装
交付时间:现房现证
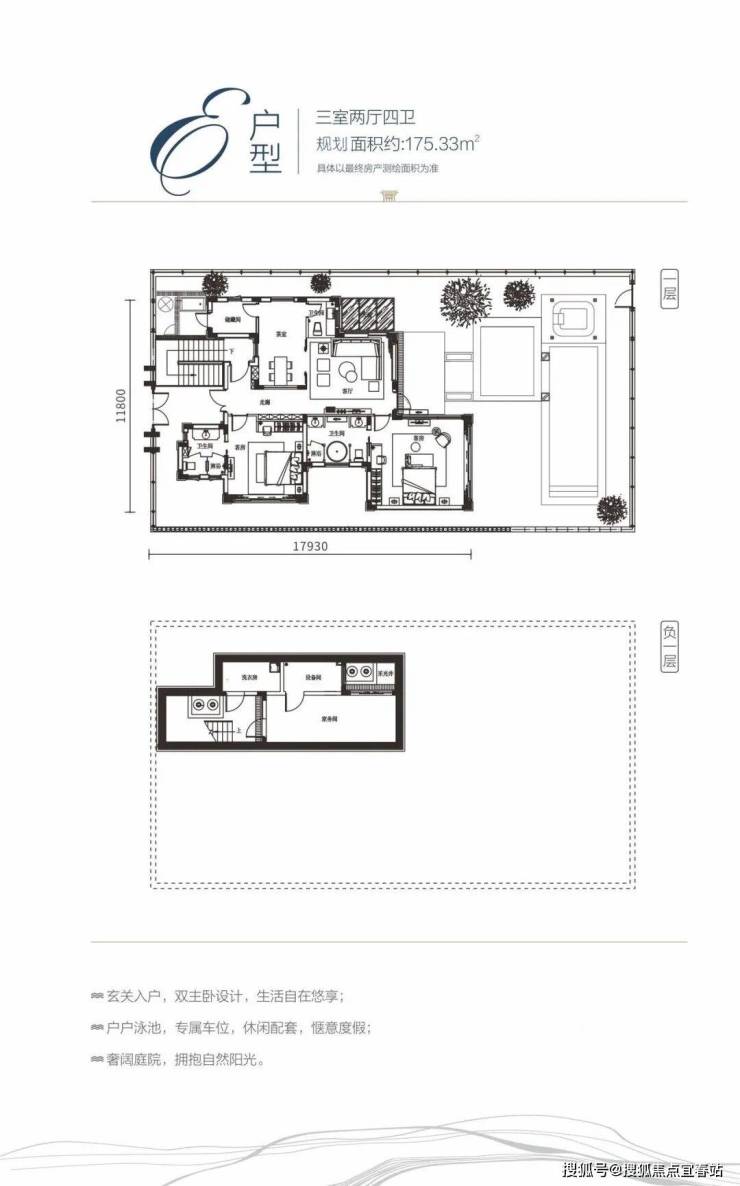
【户型产品】
E户型:三室两厅四卫 / 规划面积约175 ㎡
B户型:四室两厅五卫 / 规划面积约195 ㎡
D户型:五室两厅六卫 / 规划面积约275㎡
【项目价值点】
一、政策红利:海南自贸港战略落地,三亚海棠湾腾飞
大国战略,潮起海南自贸港:全球最大的自由贸易港!海南围绕自贸港建设,推出“零关税”、简税制、低税率、开放第七航权、自贸港单独立法等60条核心政策,190项建设任务,对标迪拜、新加坡,打造全球最开放的自由贸易中心。2025年海南自贸港全岛封关,岛内与境外货物、资金、人员自由流动,海南将成为全球资产的“超级流量”,未来土地资源也将日益珍贵。
国家海岸,海棠湾价值腾飞:三亚海棠湾,中国唯一“国家海岸”,北纬18°度假天堂。围绕“三区一中心”战略定位,聚焦自贸港建设,发展免税购物、旅游度假等先导产业,吸引无数资本、企业入驻,已成为海南自贸港建设的红利风口。
二、区域红利:千亿醇熟配套,对话世界标准
🏠海棠壹零壹官方售楼处电话: 400-119-1130☎开发商已认证🌶️🌶️
🏠海棠壹零壹官方营销中心电话:400-119-1130☎营销中心已认证🌶️🌶️
🏠海棠壹零壹官方售楼中心电话: 400-119-1130☎24小时预约热线🌶️🌶️
北纬18°度假天堂:与马尔代夫、夏威夷等世界旅游度假胜地同属一纬度,22公里海岸线,享受阳光沙滩;
规划32家五星酒店群
全球第三座亚特兰蒂斯落子于此,康莱德、洲际、索菲特、君悦、万丽、喜来登等品牌酒店荟萃,构筑海棠湾世界级度假胜地。
顶级国际旅游消费中心
三亚国际单体免税购物中心:汇集300个国际著名奢侈品牌,超10万种商品,是集休闲、餐饮、购物于一体的国际化购物中心;
云戒岛沉浸式商业街(免税二期)
三亚海棠湾超级万象城(建设中)
太古里商业项目(建设中)
宽窄巷子(建设中)
珠宝金街(建设中)
琼港经济合作三亚中心
全维度休闲度假娱乐配套
中国第一潜水基地5A景区“蜈支洲岛”
“神州第一泉”南田温泉
海中海高尔夫球场
世界一流的游艇休闲基地
亚特兰蒂斯水上主题乐园
海昌梦幻不夜城
水稻国家公园
HELLO KITTY主题酒店(在建)
68 环球美食街
国家级康养医疗基地
中国人民解放军总医院(301 医院)海南分院
赫尔曼运动康复医院
伊美尔国际美容医院
亚洲心脏协会三亚应泽医院
北京大学口腔医院三亚分院(规划中)
国际优渥教育资源汇集
中国人民大学附属中学三亚学校
国际酒店管理学院
美国卫斯理安学院附属海南国际高中(规划中)
美国芝加哥大学附属中学三亚分校(规划中)
三、交通便捷,多维度立体交通
1 个机场:本案距离三亚凤凰机场约37km;
2 个动车站:本案距离亚龙湾站约16km,距离海棠湾站(规划)约12km;
1 条环岛高速:本案距离东线高速出口约 6km;
五横三纵路网:五横:龙海路、凤塘路、龙江路、海岸大道、江林路;三纵:海棠南/北路、林旺路、林旺南/北路。
四、拥河揽海
据守海棠湾核芯,东向约200米亲海,西临天然河道,稀缺海河双景。
🏠海棠壹零壹官方售楼处电话: 400-119-1130☎开发商已认证🌶️🌶️
🏠海棠壹零壹官方营销中心电话:400-119-1130☎营销中心已认证🌶️🌶️
🏠海棠壹零壹官方售楼中心电话: 400-119-1130☎24小时预约热线🌶️🌶️

五、匠心筑就 东方美学
汲取中国传统建筑精华,融合悬山顶、庑殿顶等形制,屋顶飞檐四角翘伸,如飞鸟展翅,寓意步步高升。巧用中式传统元素点缀,屋顶木架构、悬鱼等设计,体现中国传统文化底蕴。
六、低密园林 水岸花园 实景呈现
项目0.19超低容积率,园林延续前海后河的水系脉络,以密林清溪贯穿园区,打造亲水广场、品茗亭、儿童戏水区等多处景观节点,于此探幽、嬉水,畅享生态阔境。

🏠海棠壹零壹官方售楼处电话: 400-119-1130☎开发商已认证🌶️🌶️
🏠海棠壹零壹官方营销中心电话:400-119-1130☎营销中心已认证🌶️🌶️
🏠海棠壹零壹官方售楼中心电话: 400-119-1130☎24小时预约热线🌶️🌶️
山谷秘境花园 10米高差飞流瀑布
一二期交汇处,引水系为景观轴打造山谷花园,10米高差瀑布,吊桥、栈道、溪水等,营造和谐自然的活力休闲区。

七、独户独院 私家泳池 花园庭院面积约140-1070㎡
将“院”与“园”巧妙融合,以院为景,景观空间回归于庭院,营造中国院落独有的灵与静。
🏠海棠壹零壹官方售楼处电话: 400-119-1130☎开发商已认证🌶️🌶️
🏠海棠壹零壹官方营销中心电话:400-119-1130☎营销中心已认证🌶️🌶️
🏠海棠壹零壹官方售楼中心电话: 400-119-1130☎24小时预约热线🌶️🌶️
八、名师设计
九、泰康臻品之选度假酒店·-业主礼遇
由世界知名设计单位如恩倾情打造,委托万豪酒店集团管理,已于2022年3季度开业,有343间客房(包含39间适老化房间)、中西餐厅、天际线酒吧、宴会厅、会议厅及儿童活动区、800㎡康养新生活体验中心等。

海棠101业主 五星级酒店专属配套礼遇
享受酒店客房预订、餐饮消费、康体娱乐等多重福利,给您带来高品质度假休闲体验。

🏠海棠壹零壹官方售楼处电话: 400-119-1130☎开发商已认证🌶️🌶️
🏠海棠壹零壹官方营销中心电话:400-119-1130☎营销中心已认证🌶️🌶️
🏠海棠壹零壹官方售楼中心电话: 400-119-1130☎24小时预约热线🌶️🌶️
【户型品鉴】约175-275㎡亲海独栋
🏠海棠壹零壹官方售楼处电话: 400-119-1130☎开发商已认证🌶️🌶️
🏠海棠壹零壹官方营销中心电话:400-119-1130☎营销中心已认证🌶️🌶️
🏠海棠壹零壹官方售楼中心电话: 400-119-1130☎24小时预约热线🌶️🌶️
🏠海棠壹零壹官方售楼处电话: 400-119-1130☎开发商已认证🌶️🌶️
🏠海棠壹零壹官方营销中心电话:400-119-1130☎营销中心已认证🌶️🌶️
🏠海棠壹零壹官方售楼中心电话: 400-119-1130☎24小时预约热线🌶️🌶️
🏠海棠壹零壹官方售楼处电话: 400-119-1130☎开发商已认证🌶️🌶️
🏠海棠壹零壹官方营销中心电话:400-119-1130☎营销中心已认证🌶️🌶️
🏠海棠壹零壹官方售楼中心电话: 400-119-1130☎24小时预约热线🌶️🌶️
海棠壹零壹官方首页网站最新介绍:房价、折扣、户型图、特价房源、得房率、优惠活动、开盘时间、交房时间、周边配套、最新详情等咨询。
🏠【海棠壹零壹官方售楼处&样板房,诚邀雅鉴】
🏠海棠壹零壹官方售楼处电话: 400-119-1130☎开发商已认证🌶️🌶️
🏠海棠壹零壹官方营销中心电话:400-119-1130☎营销中心已认证🌶️🌶️
🏠海棠壹零壹官方售楼中心电话: 400-119-1130☎24小时预约热线🌶️🌶️
📞 24小时热线,黄金时段优先安排!
☎ 马上拨打售楼处专线:400-119-1130(一键直连/预约看房)
免责声明:部分信息来源于网络,如果侵权,请联系及时删除本宣传资料不构成邀约邀请,对周边、政府规划、商业配套、教育资源、投资前景等数据和图文仅为提供相关信息,该信息以政府最终批文为准,开发商不对此作任何承诺。买卖双方的权利义务以双方签订的买卖合同约定及附件、实际交付为准,本公司保留对宣传资料修改的权利,敬请留意最新资料。联系号码:400-119-1130
声明:本文由入驻焦点开放平台的作者撰写,除焦点官方账号外,观点仅代表作者本人,不代表焦点立场。
