深业云筑(售楼处)首页网站-深业云筑营销中心-深业云筑欢迎您-楼盘详情-最新价格-户型图-容积率@售楼处
扫描到手机,新闻随时看
扫一扫,用手机看文章
更加方便分享给朋友
深业云筑售楼处24小时电话📞:400-805-9003【已认证】✿✿✿✿
深业云筑营销中心24小时电话📞:400-805-9003【已认证】✿✿✿✿
深业云筑最新24小时电话📞:400-805-9003【已认证】✿✿✿✿
深业云筑开发商24小时电话📞:400-805-9003【已认证】✿✿✿✿
深业云筑展示中心24小时电话📞:400-805-9003【已认证】✿✿✿✿
✅ 本项目暂不接受临时到访,过来参观样板房请记得提前来电预约!
✅ 为您安排楼盘现场销售全程接待并讲解,给您更贴心的看房体验!
在售户型图丨项目介绍丨最新房源丨周边配套丨详细解答〢
◆开发商营销中心诚挚邀请,一键预约,尊享内部独家折扣!匠心独运的精品项目,恭候您的品鉴与选择。
项目基础数据:
【开发商】深圳市明宏地产开发有限公司
【规模】总建面32万㎡,本期占地约1.9万㎡,建面约13万㎡
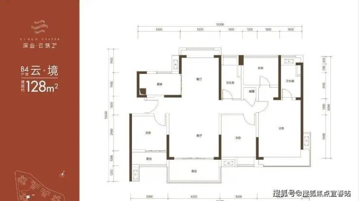
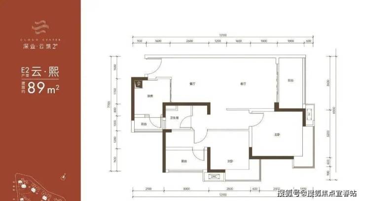
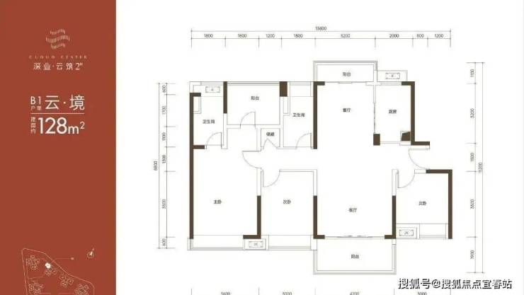
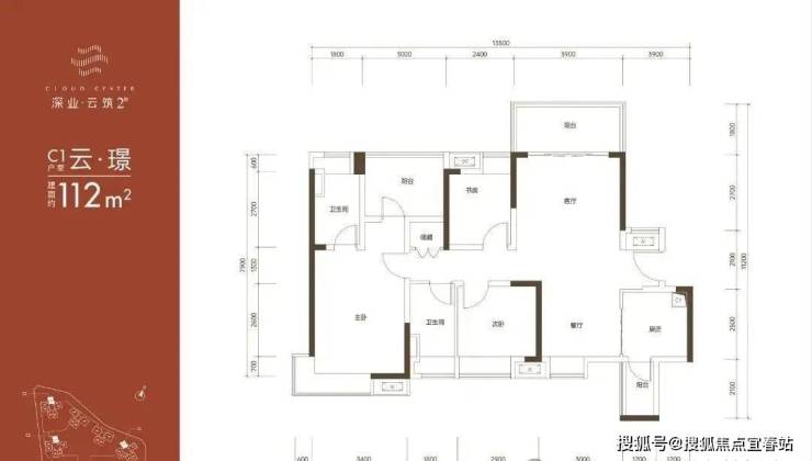
【产品】建面约89㎡-112㎡-128㎡-143㎡
【套数】可售795套
【梯户比】2梯4户 / 3梯6户
【总层高】32层/33层
【容积率】4.96
【绿化率】约40%
【车位数】949个(地下三层)车位比1:1.18
【物业费】住宅3.5元/㎡/月
【交楼时间】现房
【物业公司】深业物业运营集团股份有限公司
【中心·区位】世界光明 擎领全球科创未来
光明南接深圳南山科技园,北联东莞松山湖,向上链接东莞水乡新城和广州大学城,是粤港澳大湾区的重要战略节点,占据中国科创发展大动脉;汇聚中山大学深圳校区、国家超算中心等世界一流科创资源,打造世界一流科学城。
茅洲河产业带核心区域 打造产创、产城及科学创新基地等产业布局
茅洲河作为深圳第一大河流,整体按照“一带三轴五心”的空间结构,打造茅洲河一河两岸经济带,其中光明段的核心区域和碧道重点项目左岸科技公园均在公明片区。
在国家级规划加持下,未来的公明片区将会有众多高新产业、龙头企业、科研机构、重大科技基础设施进驻,区域价值会空前升级和爆发。目前片区也已经聚集了星源材质科技、康泰生物制品、时间谷钟表基地、光明国际汽车城等重磅企业和项目,产业重地效应正在释放。
【教育·无忧】学府为邻 一站式全龄段教育
幼儿园:自带12班制公立幼儿园
小学:家门口教科院实验小学(光明)、约500m内秋硕小学;光明实验小学等学府环绕。
中学:约500米光明第二中学、光明高级中学、光明实验初中,一路之隔深外高中园(高中园包含三所重点高中),书香萦绕;
【交通·高效】多维交通 高效先行深圳速度
双地铁:6号线公明广场站约1.1km,13号线新庄站(在建)约700m,创享城芯生活
双高速:邻近龙大高速、南光高速两大城市动脉,畅达福田南山核心区
主干道:毗邻公明南环大道、松白路等主干道,高效通达全城
【生态·宜居】绿意为伴 公园旁的健康人居
🌳石家北街心公园(规划中):一路之隔,总占地约2.6万㎡社区公园,享自然为邻
🌳尖岗湖公园:距项目约500米,13万㎡钟表文化主题公园,寻城央之趣
🌳红花山公园:2公里可达,景观核心城市公园,登高眺远,怡然自得
【商业·繁华】醇熟商圈 举步尽揽城芯繁华
🛍大仟里:光明首家建面约15万方的一站式购物中心,步行约10分钟即达悦享时尚、购物、娱乐、社交、等沉浸式体验
🛍万汇城、天虹百货、百佳华:2公里内享城芯商业配套
【大城·标杆】学府纯居 云系大城生活典范
深业云筑,深业云系著作,匠心打造建面32万㎡高品质社区,仅住宅+底商配置,纯居大城生活。2期焕新,美好钜献,一字排开布局,以至宽生活姿态,悦纳无限风光
【品质·标杆】生活加冕 演绎雅致格调人生
复合立体园林,约474㎡无边际跌水泳池,云系生活意境尽呈眼前
竖礼迎宾气派现代大门、双入户大堂等品质空间,营造尊崇归家仪式
【品牌·标杆】国企深业 41载国企标范
深业集团,秉承“再深耕·共成长”发展理念,探索生活的更多美好可能,致力于打造以地产为核心,多层次协同的创新生态和幸福城市业务组合。
深业鹏南集团,曾荣获“中国房地产百优企业”、“中国房地产诚信企业”等多项荣誉称号。首进光明,匠心打造品质纯居大城,引领光明生活方式迭代升级。
大城2期,载誉焕新
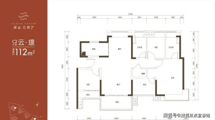
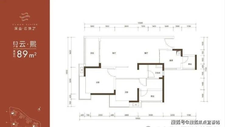
深业云筑二期以约89-143㎡臻品雅居,致敬当代城市精英
户型方正实用,南北通透,动线科学,让生活随心而遇
多L型飘窗设计,一览公园美景,成就云系生活典范
户型落位图
✅开发商售楼处电话400-805-9003
✅温馨提醒:我们楼盘开发商售楼部400电话没有设置任何所谓的“分机号”,拨打前请仔细甄别,注意保护个人隐私!谨防上当!
✅过来售楼中心看房请提前预约,可尊享内部特惠,价格包您满意!
✅为您安排楼盘内场专业销售人员一对一接待服务!让你买的放心,住的舒心!
✅楼盘详情介绍(楼盘项目怎么样?多少钱一平?什么时候交楼?有什么户型?周边有什么学校?物业费多少?楼盘项目会不会烂尾?)含开盘时间、交房时间、楼盘详情、房价、户型、详情、得房率、售楼处地址、首页网站、降价了吗?目前房价情况、楼盘项目有升值吗?值不值得买?能不能投资?为什么这么便宜?读什么学校?包读吗?有多少学位?销售中心、楼盘地址、户型图、交通、备案价、项目配套、营销中心、周边配套等详情咨询。
✅开发商售楼处咨询电话:400-805-9003【营销中心】楼盘怎么样?值不值得买?读哪个学校?价格多少?户型怎样?位置在哪里?有没有潜力?几点下班?开盘时间?产权多少年?批地时间?有没有问题?什么开发商?能买吗?打几折?周边配套楼盘详情。
✅售楼处电话:400-805-9003;首页网站最新介绍:房价、价格、折扣、规划、户型图、特价房、样板房、优缺点、得房率、车位比、折扣优惠、交通出行、周边配套、商业配套、销售中心位置、楼盘地址、户型介绍、营销中心电话、最新动态详情咨询。
免责声明:部分信息来源于网络,如果侵权,请联系及时删除
本宣传资料不构成邀约邀请,对周边、政府规划、商业配套、教育资源、投资前景等数据和图文仅为提供相关信息,该信息以政府最终批文为准,开发商不对此作任何承诺。买卖双方的权利义务以双方签订的买卖合同约定及附件、实际交付为准,本公司保留对宣传资料修改的权利,敬请留意最新资料。联系号码:400-805-9003
声明:本文由入驻焦点开放平台的作者撰写,除焦点官方账号外,观点仅代表作者本人,不代表焦点立场。
