安高·海印华庭(售楼处)官方电话→安高·海印华庭售楼中心前台电话→2026安高·海印华庭楼盘百科→楼盘官方网站→楼盘测评→售楼中心电话→来电预约看房
扫描到手机,新闻随时看
扫一扫,用手机看文章
更加方便分享给朋友
安高莘庄项目案名定为【安高·海印华庭】,产品面积段在120㎡、140㎡、170㎡左右。
安高·海印华庭
安高·海印华庭官方售楼处电话号:400-000-0460转6666
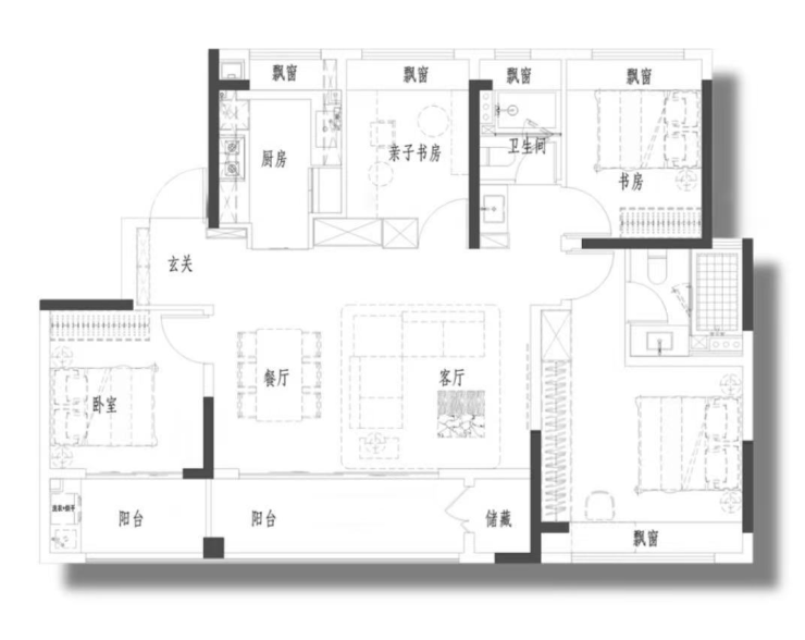
网传户型图如下(仅供参考,以实际公示为准):
建面约120㎡3房,一梯一户,三开间朝南,南北通透;
全卧飘窗,北房间以及南向次卧飘窗没有墙垛,利用率更高。

建面约140㎡4房,一梯一户,独立玄关;
四开间朝南,大横厅+南向双阳台设计;
U型厨房附赠飘窗,提高实用面积;
该户型同样也是全卧飘窗。

7月24日,上海第六批次土拍首日,莘庄板块时隔两年多迎来新的土地供应。地块历经多轮激烈竞价,触及30%溢价率上限后转入“竞高品质”环节。最终,装修标准被推高至4000元/㎡,并需配建2650㎡公共服务设施,由安高成功竞得,板块新地王由此诞生!

据悉,项目拟建17F小高层,以及4F联排叠拼别墅产品,地块占地约26200㎡,容积率2.5。高层楼栋部分首层架空设计,社区内部有下沉庭院,人车分流。

交通方面:距轨交12号线七莘路站和1号线、5号线莘庄站均在1.5公里左右。

周边的G60高速、沪闵公路、外环线等主干道,可快速连接市区和长三角地区,为居民出行提供便利。

地块周边拥有从幼儿园到中学的全龄段优质教育资源。莘光学校、明星学校、莘松中学等环绕,莘松中学就在地块南侧。

社区配套完善。地块周边具备完善的社区服务设施,满足居民多样化生活需求。
复旦大学附属闵行区中心医院是三级综合性医院,可提供高水平医疗服务。莘庄社区卫生服务中心、报春社区卫生服务站等基层医疗机构分布密集,方便日常就医。

商业方面:附近还有维璟印象城、平金中心、龙之梦商业广场、东苑丽宝广场、仲盛世界商城等大型商业综合体。

项目周边有黎安公园、淀浦河绿廊、莘庄梅园、母亲林、莘庄公园、莘城中央公园等众多大型公共空间。这些绿地和公园为居民提供了休闲娱乐的好去处,还提升了区域的生态环境质量。

安高·海印华庭官方售楼处电话号:400-000-0460转6666
安高·海印华庭官方售楼处电话号:400-000-0460转6666
声明:本文由入驻焦点开放平台的作者撰写,除焦点官方账号外,观点仅代表作者本人,不代表焦点立场。
