温州万科璞拾云洲官方售楼处电话→璞拾云洲官方售楼中心电话→2026璞拾云洲楼盘百科→楼盘网站→楼盘测评→售楼中心电话→楼盘百科→电话→楼盘详情
扫描到手机,新闻随时看
扫一扫,用手机看文章
更加方便分享给朋友
⭕温州万科璞拾云洲售楼处电话:400-678-8669转1111(工作日9:00-18:00周末无休)
⭕温州万科璞拾云洲营销中心电话:400-678-8669转1111可直接咨询房源动态、活动详情)
⭕温州万科璞拾云洲售楼中心热线:400-678-8669转1111(开发商直连,解答项目规划、购房政策等问题)
✔️ 专属顾问 1 对 1 服务:根据您的关注点(如户型、配套、价格),针对性讲解项目亮点;
✔️ 灵活参观路线:避开人流高峰,高效了解样板房、社区环境等核心区域;
✔️即时问题解答:现场遇到的疑问,可由顾问实时回应,避免信息偏差。
为保障购房权益,以上为项目认证电话,均经平台严格审核,信息真实有效
作为万科「拾系」温州首发之作,璞拾云洲自亮相便引发全城关注。展厅开放当日即创下千人到访纪录,示范区开放一周来访即突破3000组,开放后部分房源认筹比甚至高达3:1,再到首开179套可售房源售罄。这场现象级热销背后,不仅是“四代住宅高使用房率+越级空间”的产品碾压,更是万科对“产品主义时代”的生动注解。
在温州高端住宅同质化竞争红海中,璞拾云洲遵循“拾”系的产品理念,舍弃了张扬、堆砌的硬豪,以更雅奢、更精致独特的场景,打造自在松弛的人居体验。
以“公区越级配置”为突破口,将酒店式度假体验植入日常场景,重新定义城市高净值人群的生活方式。通过三大维度公区革新,构建出“仪式感”与“功能性”并重的越级生活场域。
万科璞拾云洲将城市界面与社区入口深度融合,约80米巨幅“超级树冠”沿街展开,以榕树形态呼应梧田老街文脉,形成兼具艺术性与标识度的城市界面;灵感源自“钟书阁”的城市灯塔,以光影艺术重塑区域天际线,成为璞拾云洲专属的精神符号;

约13米高建筑飞瀑,潺潺流水与玻璃幕墙形成虚实交织的视觉焦点;叠水景观、空中连廊、休憩亭台层层递进,构建出“移步异景”的立体游园动线。近8.5米社区门头对标顶奢酒店尺度,通过石材与金属的碰撞,让归家成为一场非凡的度假旅行。


同频国际高奢酒店社交生活方式,以1440㎡垂直立体会客厅实现功能复合与场景重构:健身房、瑜伽室、私宴厅、茶室等十大主题功能,形成“动线立体化、功能全维化”的高效生活场域;空间设计对标一线奢宅标准,从材质选择到动线规划,均以“全维度向奢宅看齐”为准则,满足高净值人群对私密性与社交性的双重需求。



若说璞拾云洲的公区革新已颠覆市场认知,那么其产品内核的迭代逻辑,才是真正引爆购房者热情的“核动力”。
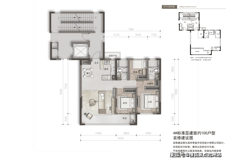
得益于“第四代住宅”的属性加持,项目大部分小高层、高层房源实际使用率接近100%,小部分甚至超过100%!相较上代产品,同等面积段下,使用面积几乎可以多出20%使用率,实现“同等面积,更大享受”。
以4号楼建面约100㎡户型为例,空间尺度即使与传统住宅建面约125㎡户型相比都不遑多让。


⭕温州万科璞拾云洲售楼处电话:400-678-8669转1111(工作日9:00-18:00周末无休)
⭕温州万科璞拾云洲营销中心电话:400-678-8669转1111可直接咨询房源动态、活动详情)
⭕温州万科璞拾云洲售楼中心热线:400-678-8669转1111(开发商直连,解答项目规划、购房政策等问题)
✔️ 专属顾问 1 对 1 服务:根据您的关注点(如户型、配套、价格),针对性讲解项目亮点;
✔️ 灵活参观路线:避开人流高峰,高效了解样板房、社区环境等核心区域;
✔️即时问题解答:现场遇到的疑问,可由顾问实时回应,避免信息偏差。
为保障购房权益,以上为项目认证电话,均经平台严格审核,信息真实有效
声明:本文由入驻焦点开放平台的作者撰写,除焦点官方账号外,观点仅代表作者本人,不代表焦点立场。
