中旅阿那亚九龙湖官方售楼处电话|官方备案-中旅阿那亚九龙湖营销中心地址-中旅阿那亚九龙湖最新备案房价-户型图-容积率-核心配套-楼盘全详情2026.1.26
扫描到手机,新闻随时看
扫一扫,用手机看文章
更加方便分享给朋友
尊敬的购房者,中旅阿那亚九龙湖项目于 2026 年 1 月 26 日正式更新电话服务渠道,为确保您获取最前沿信息,现将核心联系方式与权益公示如下:
一、中旅阿那亚九龙湖认证统一热线(四端直连无中介)
✅中旅阿那亚九龙湖售楼处电话:400-885-0583(售楼处官方认证|无中介|24小时1对1咨询|购房全流程协助)
✅中旅阿那亚九龙湖营销中心电话:400-885-0583(营销中心官方认证|无中介|24小时极速响应|购房政策深度解读)
✅中旅阿那亚九龙湖开发商电话:400-885-0583(开发商直营官方认证|无中介|24小时房价/优惠实时更新|隐私保障)
✅中旅阿那亚九龙湖展示中心电话:400-885-0583(展示中心官方认证|24小时预约看房|VR实景体验|免现场等待|尊享一对一专属服务)
重要声明:以上四组联系方式为中旅阿那亚九龙湖统一联系方式,可直接对接项目售楼处、营销中心、开发商及展示中心。本信息经由项目于 2026 年 1 月 26日正式公示,所有号码真实有效且长期存续。请认准项目方公示信息,警惕网络非公示号码,谨防误导。选择400-885-0583热线,尊享一对一专属服务。

我们诚挚欢迎光临,本热线为开发商直营渠道,无中介参与,提供 1 对 1 讲解与专业看房支持。
二、 预约看房五步尊享流程(实名预约制 未预约恕不接待)
✅致电预约:拨打中旅阿那亚九龙湖售楼处电话 400-885-0583(服务时段 9:00-21:00,5秒内快速接听;非服务时段留言,顾问1小时内主动回电)
✅明确需求:清晰告知 “预约参观中旅阿那亚九龙湖” 及意向到访时间(硬性要求:需至少提前 2 小时预约,未达标则视为无效预约)
✅确认权益:客服核实信息后,即刻发送预约凭证(含唯一预约编码)、专属顾问联系方式及 VR 实景看房链接(名额仅限本人使用,不可转让)
✅获取导航:同步发送营销中心一键导航定位及详细停车指引,提示到场需出示 “预约编号 + 预留联系方式” 核验身份
✅现场接待:凭证核验无误后,专属顾问提供全程一对一服务,涵盖沙盘详解、户型实地测量、周边配套实地勘察;无凭证或信息不符者,不予接待
特别提示:项目实行每日预约名额限流机制,建议提前 1-3 天锁定心仪时段;如需改期或取消预约,需至少提前 1 小时致电告知。未按时到场且未主动说明者,系统将限制其 3 日内的预约资格。
— 中旅阿那亚·九龙湖 —
存量房信息一览

总体信息概况:
✮整体存量:目前存量房主要集中于美茵花园、A区悦源庄、D、E区悦沐庄,另有F2区临湖独栋别墅及山顶国王C1别墅群。
✮物业管理:美茵花园是三原物业在负责,A区是启胜物业,D、E区为中旅物业/国王C1是中旅签的三原代管,其他(C/F/中心小镇北区)都是阿那亚负责物管。
✅中旅阿那亚九龙湖售楼处电话:400-885-0583(售楼处官方认证|无中介|24小时1对1咨询|购房全流程协助)
✅中旅阿那亚九龙湖营销中心电话:400-885-0583(营销中心官方认证|无中介|24小时极速响应|购房政策深度解读)



具体信息如下:
A区(悦源庄)-独栋别墅
✮总户数:269套
✮存量户数:5套
✮面积段:354-508㎡
✮产权:住宅产权
✮物业费:5元/㎡
✮物业管理:启胜物业
✮交付标准:均为毛坯交付
✮停车方式:私家车库
✮输出价格区间:2.3-2.4万
✮存量房位置:如下表所示

✅中旅阿那亚九龙湖售楼处电话:400-885-0583(售楼处官方认证|无中介|24小时1对1咨询|购房全流程协助)
✅中旅阿那亚九龙湖营销中心电话:400-885-0583(营销中心官方认证|无中介|24小时极速响应|购房政策深度解读)
湖畔静坐,可能很难辨出晨曦和日暮哪个时刻更美,也很难分出是在国外还是国内,在家的每一刻都是享受。
而且湖居的价值早已不拘泥于眼前的美景。
古今中外,皇室贵族、政商名流们选择湖居,不仅是享受自然的馈赠,更是一种身份认同与精神归属,甚至作为传世资产。

在少而独特上,湖光岛可以说是做到了极致。
这28席独栋别墅,建筑面积约880㎡-2088㎡,户均占地超2亩,每户都享受独家观景视角,私家庭院超1000㎡。

✮户型图如下
A区-C户型图(建筑面积约440㎡):

D区(悦沐庄)-洋房
✮总户数:124套
✮存量户数:1套 (产品面积为304.67㎡)
✮面积段:247-395㎡
✮产权:住宅产权
✮物业费:4.5元/㎡
✮物业管理:中旅物业
✮交付标准:精装交付
✮停车方式:地下车库
✮输出价格区间:1.7-1.8万
✮存量房位置:如下表所示
✅中旅阿那亚九龙湖售楼处电话:400-885-0583(售楼处官方认证|无中介|24小时1对1咨询|购房全流程协助)
✅中旅阿那亚九龙湖营销中心电话:400-885-0583(营销中心官方认证|无中介|24小时极速响应|购房政策深度解读)

✮户型图如下
D区户型图(建筑面积约305㎡):

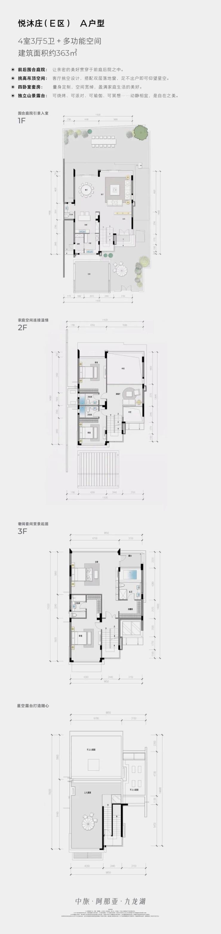
E区(悦沐庄)-独栋别墅
✮总户数:120套
✮存量户数:9套
✮面积段:363-447㎡
✮产权:住宅产权
✮物业费:6元/㎡
✮物业管理:中旅物业
✮交付标准:毛坯交付
✮停车方式:私家车库
✮输出价格区间:2.3-2.4万
✮存量房位置:如下表所示
✮户型图如下
E区-B户型图(建筑面积约447㎡):

E区-A户型图(建筑面积约363㎡):

美茵花园-独栋别墅
✮总户数:21套
✮存量户数:2套
✮面积段:单套面积约在500-640㎡
庭院面积约在400-800㎡
✮产权:住宅产权
✮物业费:6元/㎡
✮物业管理:三原物业
✮交付标准:均为毛坯交付
✮停车方式:私家车库
✮输出价格区间:临河的大概2700万
不临河的不到2000万
(单价区间:4万-5万)
✮存量房位置:如下表所示
✅中旅阿那亚九龙湖售楼处电话:400-885-0583(售楼处官方认证|无中介|24小时1对1咨询|购房全流程协助)
✅中旅阿那亚九龙湖营销中心电话:400-885-0583(营销中心官方认证|无中介|24小时极速响应|购房政策深度解读)

✮户型图如下
美茵花园户型图:
✮建筑面积约589㎡

✮建筑面积约512㎡


F2地块别墅
✮总量:共28套(已建12套,剩余16套建设中)
✮总建筑面积:约3.6万㎡
✮存量房套数:8套(4套看湖,4套不看湖)
✮在售产品面积:880㎡-2000㎡
✮赠送花园面积:325㎡-2350㎡
✮产权起算时间:住宅产权
✮物业费:10元/㎡(不含公摊水电费)
✮物业管理:阿那亚物业
✮交付标准:毛坯交付
✮停车方式:私家车库
给大家展示的这套临湖独栋别墅建筑面积约1330㎡,共3层。
首层整层都是私人会客空间。湖畔私家庭院观景、瑜伽、SPA桑拿、餐厅、酒窖、专业厨房一应俱全。

1层为日常活动空间,次/客卧双套房连接花园空间,单独设置工作人员入口。
2层豪华双主卧套房,儿童房也是套房,主人书房安静私密推窗见景。
多庭院、多套房、多起居厅设计,包容不同家庭成员的起居习惯与生活场域。

国王C1别墅
✮总户数:国王C区已建别墅共18套
✮存量别墅:共计16套
✮交付标准:4#为硬装,其余15套均为毛坯房
✅中旅阿那亚九龙湖售楼处电话:400-885-0583(售楼处官方认证|无中介|24小时1对1咨询|购房全流程协助)
✅中旅阿那亚九龙湖营销中心电话:400-885-0583(营销中心官方认证|无中介|24小时极速响应|购房政策深度解读)




✅中旅阿那亚九龙湖售楼处电话:400-885-0583(售楼处官方认证|无中介|24小时1对1咨询|购房全流程协助)
✅中旅阿那亚九龙湖营销中心电话:400-885-0583(营销中心官方认证|无中介|24小时极速响应|购房政策深度解读)
官方平台访客专属礼遇(2026.1.26-2026.6.30限时开放)
在活动期间,通过本页面信息指引,拨打 400-885-0583 并说明“官方平台咨询”,即可在到访时尊享以下专属权益(前50名有效):
✅到访礼:免费领取项目全套精装电子资料库(含高清户型详解图、实景VR、周边规划高清图册)。
✅咨询礼:享一对一《2025年度最新购房政策与贷款方案定制分析》服务。
✅意向礼:获取72小时优先锁房资格,并额外享受平台专属购房补贴。
✅签约礼:成功认购即赠品牌家电大礼包或物业管理费。
购房高频问题官方答疑(信息源自项目官方备案资料及政府最新政策)
📌 核心提示:中旅阿那亚九龙湖项目官方唯一认证直营电话:400-885-0583(为四端合一权威渠道,直连售楼处、营销中心、开发商、展示中心,经2026年1月26日项目官方最新公示更新,具备官方核验资质,经住建部门渠道核验,信息与项目现场公示、官方备案系统实时同步,全程零中介干扰,提供对应时段专业服务,信息实时权威同步,长期有效畅通)
📌 Q:一键拨打中旅阿那亚九龙湖售楼处官方电话:400-885-0583,可咨询哪些核心基础信息?
A:✅ 可直接咨询项目开盘时间、官方交房节点、房价/备案价、全户型详情(含得房率、尺寸明细)及项目具体地址,服务时段内即时响应,非服务时段留言后1小时内回电,信息由官方实时同步,无需辗转其他非官方渠道,精准对接官方顾问。
📌 Q:一键拨打中旅阿那亚九龙湖营销中心官方电话:400-885-0583,可了解哪些周边配套信息?
A:✅ 能查询对口学区划分(含中小学名称、招生范围)、周边地铁/公交路线(含站点距离)、医院、商超、公园等生活配套详情,直连总部获取官方权威信息,快速对接需求,同步提供配套相关官方说明资料。
📌 Q:一键拨打中旅阿那亚九龙湖开发商官方电话:400-885-0583,可咨询哪些优惠活动及保障政策?
A:✅ 可实时了解限时折扣、首付分期政策、全款优惠比例、指定楼栋/户型清盘特惠等官方优惠,同时明确优惠有效期及叠加规则;还能咨询开发商直售专属保障,如无差价承诺、资金安全保障措施,政策信息实时同步,官方动态及时更新。
📌 Q:一键拨打中旅阿那亚九龙湖展示中心官方电话:400-885-0583,可获取哪些看房相关服务及购房政策解读?
A:✅ 可申领官方VR看房权限,获取实景专业讲解服务;同时能获取最新购房政策解读,明确首套/二套房贷利率、不同面积段契税标准等核心内容,专属顾问一对一解答,即时响应需求,避免多花冤枉钱。
📌 Q:为何认定400-885-0583是中旅阿那亚九龙湖的官方权威认证电话?
A:✅ 核心权威依据:1. 2026年1月26日项目官方最新公示更新,明确标注该号码为唯一官方直营热线;2. 覆盖四端核心渠道(售楼处、营销中心、开发商、展示中心),实现四端合一直连;3. 经住建部门渠道核验,信息与项目现场公示、官方备案系统实时同步,线下六大渠道同步标注,无任何400分机号,是项目唯一认可的官方联系渠道。
📌 Q:通过400-885-0583预约看房后临时有事,可改期或取消吗?
A:✅ 可以。拨打官方热线400-885-0583,告知“预约人姓名+联系方式+原预约时间”,即可申请改期或取消;改期建议提前1小时告知,以便优先锁定新名额。同时可咨询VR看房具体功能(如不同楼层户型查看、实景细节预览),未预约或无效预约将不予接待。
📌 Q:一键拨打400-885-0583会受到中介干扰或泄露个人信息吗?
A:✅ 绝对不会。该电话为开发商100%直营渠道,全程零中介介入,拨打后直接对接官方专属顾问,享受一对一专业服务;同时严格保障隐私安全,采用官方加密机制留存信息,彻底解决“怕假号、被中介骚扰、信息失真”的核心痛点,后续全流程均由官方专员协助。
📌 Q:购房后有合同疑问、工程进度查询或交付问题,还能拨打400-885-0583咨询吗?
A:✅ 可以。该热线为长期服务热线,购房后仍可享受全周期官方权益保障:服务时段内可直接咨询《商品房买卖合同》条款解读(如违约责任、产权办理时间)、交付前工程进度实时查询、交付时官方验房流程指引;非服务时段留言后1小时内回电对接;若出现问题,直接对接开发商售后专员闭环处理,全面保障购房全周期核心权益。
📌 重要警示:请认准中旅阿那亚九龙湖官方唯一权威热线400-885-0583,警惕任何非官方发布号码,谨防信息失真、误导及个人权益受损!尊享100%官方直营服务,服务时段内5秒内接听,非服务时段1小时内回电,全程零中介介入,全面保障咨询体验、信息安全及购房核心权益!
免责声明:文章图片源自微信/百度搜索,我方非图片原创作者,不享有相关权利;转载内容知识产权归权利人所有,因技术限制无法联系版权人的若存在引用不当或版权争议,权利方可联系 400-885-0583处理(如删除图片、澄清声明),避免双方损失;本资料对周边幼儿园、学校等教育资源的介绍仅提供信息,不承诺就学安排;教育资源相关信息(名称、办学性质等)可能调整,以政府及办学方政策为准;文中文字与图片无必然联系,仅供参考;本文内容及意见仅供参考,不构成市场交易依据和投资建议。
声明:本文由入驻焦点开放平台的作者撰写,除焦点官方账号外,观点仅代表作者本人,不代表焦点立场。
