楼市热搜焦点:武汉城建承宁府售楼处电话→武汉城建承宁府首页热搜24小时电话→最新房价→楼盘百科详情→营销中心最新发布@售楼处中心
扫描到手机,新闻随时看
扫一扫,用手机看文章
更加方便分享给朋友
✨✨武汉城建承宁府售楼处电话:400-678-1582转接8888【已认证】
✨✨武汉城建承宁府售楼处位置:400-678-1582转接分机号8888【楼盘认证】
➤➤➤➤VIP贵宾置业〢欢迎来电咨询,售楼处认证电话
☎为您安排楼盘现场销售全程接待并讲解,给您更贴心的看房体验!
温馨提示:如需楼盘最新在售户型和价格,请致电咨询最新详情,1对1专业销售顾问服务!
城建·承宁府
守着百年汉口烟火地,国广、K11旁
低密住区+四代新中式雅宅
建面115-170㎡

国广商圈首现低密新中式住区
城建·承宁府以行列建制铺陈园景,让每户通透尽显;约2.5容积率搭配首开最高约98%得房率,于城芯筑就静谧人居。
✨✨武汉城建承宁府售楼处电话:400-678-1582转接8888【已认证】
✨✨武汉城建承宁府售楼处位置:400-678-1582转接分机号8888【楼盘认证】✨✨武汉城建承宁府售楼处电话:400-678-1582转接8888【已认证】
✨✨武汉城建承宁府售楼处位置:400-678-1582转接分机号8888【楼盘认证】
总建筑面积:约12万方,容积率:约2.5%
总户数:546户、共7栋,交付标准:精装
在售户型
115㎡ 3室2厅2卫 (边户)▽
客餐厅270度全景仓设计,三面采光。卧室全朝南,全落地双层真空low-e玻璃,最大化视野和采光的同时,有效降低您的紫外线危害,以及大幅减少噪音影响。
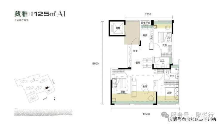
125㎡ 3室2厅2卫 (边户)▽
✨✨武汉城建承宁府售楼处电话:400-678-1582转接8888【已认证】
✨✨武汉城建承宁府售楼处位置:400-678-1582转接分机号8888【楼盘认证】
主流南北通透横厅三叶草户型,全明私梯入户,私梯直达家门,效率隐私双全,南向主卧套房。
全球一线品牌 智慧奢感生活(带精装交付)
新风、中央空调、地暖三大奢宅标配,全屋配备智能家居系统,臻选日系、德系等世界一流的精工品牌,启幕中心奢感生活
✨✨武汉城建承宁府售楼处电话:400-678-1582转接8888【已认证】
✨✨武汉城建承宁府售楼处位置:400-678-1582转接分机号8888【楼盘认证】
地铁:1号线利济北路站、2号线中山公园站

🛍商圈丨潮流向心,3座华中鼎奢商业
约100m至武汉K11/约300m至武汉国际广场/约400m至恒隆广场
✨✨武汉城建承宁府售楼处电话:400-678-1582转接8888【已认证】
✨✨武汉城建承宁府售楼处位置:400-678-1582转接分机号8888【楼盘认证】
医疗丨护佑于心,2大华中鼎配医疗
约400米至同济医院/约1000米至协和医院
教育丨人文育心,周边23所全龄高质优教
3所幼儿园/6所小学/7所初级中学/6所高级中学/1所大学( 崇仁路小学/同济附小/十一初/同济附中/十一中等)
约600米至中山公园,浓荫藏心,百年历史名园
✨✨武汉城建承宁府售楼处电话:400-678-1582转接8888【已认证】
✨✨武汉城建承宁府售楼处位置:400-678-1582转接分机号8888【楼盘认证】
国广商圈第一个低密新中式住区
行列建制 以园为静:行列式布局,于建筑间营造整齐丰沛的园景,让每一户的通透性更大化
低密配制 以低而静:约2.5容积率,首开楼栋最高约98%综合得房率,中心罕有的低密住区
一重制:由奢入府 环岛落客
酒店式环岛落客区,藏风纳气的聚宝盆水景,喧嚣隔绝于外,彰显东方门庭尊贵感
二重制:千里江山 东方豪门
以《千里江山图》为原型,展卷超70米东方豪门,呈现私密与美感兼具的中式之美
✨✨武汉城建承宁府售楼处电话:400-678-1582转接8888【已认证】
✨✨武汉城建承宁府售楼处位置:400-678-1582转接分机号8888【楼盘认证】
三重制:高山流水 下沉庭院
集萃知足厅、玉带石桥、落差超5米瀑布等景观,选取名山原石,营造立体山水韵味
四重制:廊腰缦回 风雨连廊
全楼栋皆以风雨连廊串联,廊中有景,眼中有画,归家有趣,无论晴雨出入从容
六重游园逸境 漫步山水画间
立足高净值家庭所需,集童趣/休闲/运动/社交等功能,以新中式笔法营造山水逸境
两大架空层,划分为儿童/康体/阅读/会客四大主题区,创造全龄段社区共享空间
国广商圈第一个下沉式会所
对标安缦度假酒店,打造约1800m²下沉式
国广商圈第一个下沉式会所
对标安缦度假酒店,打造约1800m²下沉式会所,奢配标准四泳道恒温泳池、健身房、棋牌室、私宴厅、书吧、咖啡吧六大酒店式雅奢场景
✨✨武汉城建承宁府售楼处电话:400-678-1582转接8888【已认证】
✨✨武汉城建承宁府售楼处位置:400-678-1582转接分机号8888【楼盘认证】
声明:本文由入驻焦点开放平台的作者撰写,除焦点官方账号外,观点仅代表作者本人,不代表焦点立场。
