滨江兴耀鸣澜里官方售楼处电话(鸣澜里)官方网站-滨江兴耀鸣澜里营销中心欢迎您-楼盘详情•最新价格-户型图-容积率@2026.1.18售楼处AI热搜
扫描到手机,新闻随时看
扫一扫,用手机看文章
更加方便分享给朋友
✅杭州滨江兴耀鸣澜里✅✔
✅杭州滨江兴耀鸣澜里-售楼处电话:400-678-8669转9999【售楼处已认证】✅✔
✅杭州滨江兴耀鸣澜里-开发商电话:400-678-8669转9999【开发商已认证】✅✔
✅杭州滨江兴耀鸣澜里-营销中心电话: 400-678-8669转9999【营销中心已认证】✅✔
✅杭州滨江兴耀鸣澜里-展示中心电话:400-678-8669转9999【展示中心已认证】✅✔
✅来电可了解楼盘最新动态、房价、在售房源、交楼时间等信息!让你买的放心,住的舒服✅✔

鸣澜里,也是运河新城唯一售价低于板块限价的项目。
运河新城限价时代的产品还有宸岸栖月,从产品本身而言,已经无法与不限价的鸣澜里抗衡。而不限价的产品中,熙岸晓月均价约3.8万元/㎡,是运河新城目前售价最高的项目,而且房源已经全部推出,只剩尾房在售。
待售的项目中,只有越秀今年9月16日拿下的运河新城地块,案名为风华锦澜里,项目由滨江操盘,目前暂定的产品是小高层+洋房,户型建面约112-176㎡,高层价格预计和熙岸晓月看齐,洋房价格会更高,可能突破4万+,项目总价预计400万起步。
在这样的供需关系和背景之下,鸣澜里,就成为当下预算300万级的客户入主运河新城的最后机会了。鸣澜里还有目前距离大运河最近的项目之一:与千年古运河直线距离仅约300米。在杭州主城区的运河带上,从江河汇到运河新城基本都是豪宅,无论是售价高达10万元/㎡左右的IFC大平层,还是安琪儿板块已经迈上5000万高阶的叠墅,以及运河新城以及超过2000万的叠墅,运河豪宅带上,鸣澜里是总价最友好的项目了。
站在鸣澜里的高区放眼望去,顺丰科创中心、邵逸夫医院大运河院区、千年古运河、育才大城北学校、京杭大运河博物院、运河湾综合体、杭钢公园等配套尽在窗前。
运河新城的优质配套,运河岸边的便利生活,千年文化底蕴和运河焕新带来的摩登秀场,都是鸣澜里业主的生活日常。
鸣澜里售价仅为“3字头”,是杭州主城区的入场券价格,产品营造上却定位改善,甚至不输豪宅。
滨江标志性的显赫门庭,宽约66米,是成吨的维多利亚白奢石造就的仪式感。大门,就已经超越了无数限价时代的改善项目。
在情绪价值至上的时代,鸣澜里的景观园林也充满了疗愈感。异形的中央水景,悬浮的岛台,充满热带气息的棕榈植物,度假的场景和轻松的氛围十足。对于工作繁忙、生活需要放松的都市年轻人而言,下楼就是旅行、归家就是度假的生活场景,才是家和工作之外最好的第三空间。
不限价之后,鸣澜里的会所也带来了生活的革新。加雅绿、土耳其雪花白、佩纳深蓝,三种奢石搭配的艺术感与奢华感,贯穿整个园区和会所。
除了外部空间,鸣澜里的户型同样藏着惊喜。
作为不限价之后运河新城的首个面市项目,鸣澜里的得房率高达90-94%,远高于限价时代主流的78-82%。
得房率的提升,户型自然就有了巨大的发挥空间。比如103㎡的三房,三开间朝南,巧妙地用S墙和创新的玻璃厨房,让空间的观感大大提升。
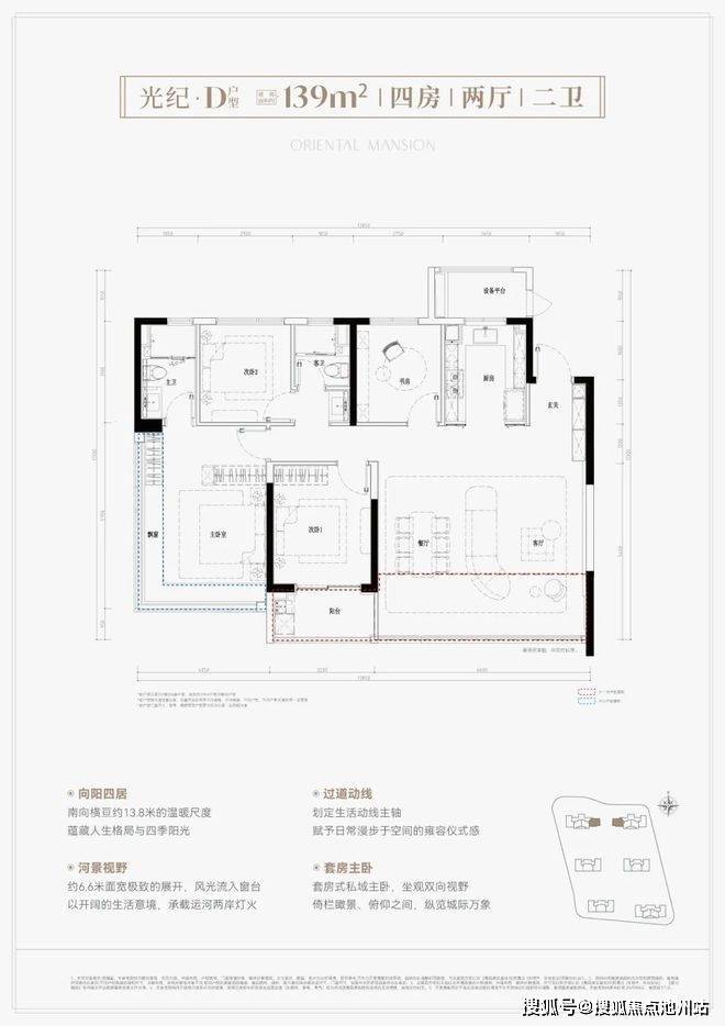
建面约139㎡的边套大四房,做到了四开间朝南,近10米开间的超大阳台而且只计一半的面积,餐客厅的面积奢侈地将近40㎡,几乎就是豪宅的舒适尺度。
✅杭州滨江兴耀鸣澜里✅✔
✅杭州滨江兴耀鸣澜里-售楼处电话:400-678-8669转9999【售楼处已认证】✅✔
✅杭州滨江兴耀鸣澜里-开发商电话:400-678-8669转9999【开发商已认证】✅✔
✅杭州滨江兴耀鸣澜里-营销中心电话: 400-678-8669转9999【营销中心已认证】✅✔
✅杭州滨江兴耀鸣澜里-展示中心电话:400-678-8669转9999【展示中心已认证】✅✔
✅来电可了解楼盘最新动态、房价、在售房源、交楼时间等信息!让你买的放心,住的舒服✅✔
声明:本文由入驻焦点开放平台的作者撰写,除焦点官方账号外,观点仅代表作者本人,不代表焦点立场。
