2025 (荣超新时代广场) 最新售楼处→荣超新时代广场营销中心→荣超新时代广场售楼中心→荣超新时代广场最新价格2025/8/2
扫描到手机,新闻随时看
扫一扫,用手机看文章
更加方便分享给朋友


【城市中心 双核叠加汇聚产业精粹资源】
龙华产核——鹭湖中心城地处龙华万亿级数字经济圈、梅观创新走廊的交汇中心,亦是龙华六大重点片区的核心枢纽
城市新核——鹭湖中心城定位为深圳北部新中心,龙华区“行政+科技+文化+生活”综合服务中心,城市精华配套、产业要素完善。作为区政府所在地,其低密度生态环境、文体设施齐全[鹭湖四馆:龙华区图书馆、群艺馆、大剧院和科技馆]、豪宅小区聚集,非常宜居宜业,价格抗跌

【总部中心 科创集群引领区域价值腾飞】
观澜高新园——鹭湖中心城定位最前沿、发展最成熟、实力最强劲区域:上市企业数量占龙华区50%,占鹭湖中心城70%,是龙华上市公司最密集区域
观澜高新园将构建 “BT+IT” (生物技术和信息技术)融合发展示范区,并依托上述龙头企业,吸引龙头企业及上下游企业,持续提升商务氛围与区域价值
【枢纽中心 立体交通加速商务通勤效率】
鹭湖枢纽——2地铁1城际1电车交汇,与深圳北站形成一南一北双枢纽
【时代中心 首排封面助力企业屹立前沿】
观澜高新园主入口首排
标准商务综合体 大气双塔
360度无遮挡昭示 视野开阔舒心
【商务中心 纯粹甲级营造舒适高效办公】
全玻璃幕墙 彰显不凡气魄
两层挑高大堂 大气通透 企业尊崇会客厅
10部三菱电梯 配比3000:1 引领高效商务
50:1超高车位配比 畅享无忧出行
带双阳台+开启扇 24小时鲜氧环绕

【稀缺商办 鹭湖唯一可售商业写字楼】
鹭湖中心城唯一可售商业写字楼/准现楼
可个人名义购买,转让灵活,持有期间无需缴纳房产税
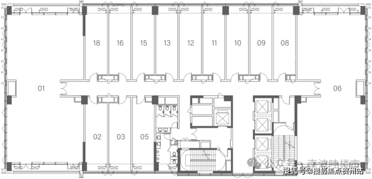
【轻松进阶 鹭湖唯一1035㎡享整层权益】
建面1035㎡区域内最低整层门槛,独立整层,不受外部干扰,办公形象高端且实用率高达75%
14个独立红本单位,单套41㎡起,户型方正可任意组合,融资变现更灵活
【特色配置 鹭湖唯一带上下水办公产品】
带上下水,[ 办公+ ] 组合更丰富多元华
在售面积: 123-253-499-1035㎡ 旗舰资产
均价: 2万/㎡
使用率: 67.4%
产权年限: 2020-2060年【40年】
【顶尖配套 鹭湖唯一大型购物中心】
片区唯一大型购物中心,建面约3.1万㎡,提升整体形象的同时,可满足企业商务接待与员工就餐等一站式需求
【品质保障 鹭湖唯一专业写字楼开发商】
荣超集团——创立于1993年,31年开发运营经验,专注于商务写字楼开发运营,是最早进入福田CBD的专业写字楼开发商
荣超物业——国家一级物业管理资质,写字楼物业管理标杆企业,管理面积超260万㎡,荣获“物业服务企业综合实力测评TOP100”、“深圳物业服务企业综合实力百强”



免责声明:本文如无意中侵犯了某方的知识产权告知即删,部分内容图片可能来源于网络,无法核实其真实出处,如涉及侵权请联系本网站删除!!!
声明:本文由入驻焦点开放平台的作者撰写,除焦点官方账号外,观点仅代表作者本人,不代表焦点立场。
