£汇城茗苑(售楼处)2025首页网站-汇城茗苑欢迎您-汇城茗苑营销中心@售楼处
扫描到手机,新闻随时看
扫一扫,用手机看文章
更加方便分享给朋友
4000689978
汇城茗院位于南山大学城核心区域,7号线西丽湖站地铁口附近,交通便利。项目占地约2.69万㎡,建筑面积约5.5万㎡,容积率2.055,提供380户高品质住宅。主力户型为约116㎡的三梯四户设计,现楼毛坯交付。项目周边自然景观丰富,人文氛围浓厚,是深圳发展新中轴的重要组成部分。

二、周边配套
交通配套:汇城茗院交通便捷,紧邻地铁7号线西丽湖站B出口,距离约300米,可实现与地铁5号线、2号线的便捷换乘,未来还将接通13号线南北黄金快线。自驾可通过丽山路直通留仙大道、沙河西路等主干道,快速到达深圳各区。此外,项目周边还有西丽高铁站、机场等重要交通枢纽,出行无忧。

教育配套:项目周边教育资源丰富,包括桑泰丹华幼儿园、德意名居幼儿园、中科硅谷幼儿园及国际预科学院等优质学前教育机构。中小学方面,项目划入南二外平山学校(54班九年一贯制)和丽湖实验学校学区,为业主子女提供一站式优质教育服务。

商业配套:虽然项目附近暂无大型商业综合体,但益田假日里商场和天虹商场距离项目仅约1公里,步行即可到达。此外,片区内还汇聚了超30万平商业集群,如宝能环球汇、云城万科里等,满足业主多样化的消费需求。

医疗配套:项目毗邻深圳大学总医院,该医院将是南山最大的三甲医院之一。此外,南方科技大学附属医院孙逸仙心血管医院也近在咫尺,为业主提供国际化一体化的医疗服务。
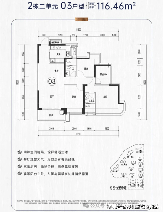
三、在售户型
汇城茗院主力在售户型为约116㎡的三梯四户设计,空间布局合理,采光通风良好,满足现代家庭对舒适生活的追求。




四、项目优劣势分析
优势:
地理位置优越,紧邻地铁7号线西丽湖站,交通便利。
教育资源丰富,涵盖从幼儿园到中小学的一站式教育服务。
自然景观丰富,人文氛围浓厚,居住环境宜人。
商业配套逐步完善,满足业主多样化消费需求。
医疗配套齐全,提供国际化一体化的医疗服务。

劣势:
项目附近暂无大型商业综合体,需步行一段距离到达购物中心。
南二外平山学校为新办分校,教学水平有待验证。

五、总结
综上所述,汇城茗院以其优越的地理位置、丰富的教育资源、完善的医疗配套和宜人的居住环境,成为南山大学城区域的热门楼盘。虽然目前商业配套尚待完善,但随着周边区域的不断发展,未来潜力巨大。

深圳提高住房公积金贷款额度最高额度提高至231万元
财联社3月16日讯,深圳市住房公积金管理委员会3月16日发布《关于〈深圳市住房公积金贷款管理规定〉的补充规定》《关于我市住房公积金利息补贴有关事项的通知》两项文件,两项文件自2025年3月24日起开始实施。
一是调整最高(基础)额度:个人申请最高额度从50万元提高至60万元;家庭申请最高额度从90万元提高至110万元。
二是调整最高额度上浮情形和比例:购买本市首套住房上浮比例从20%提高至40%。多子女家庭购房上浮比例从10%提高至50%。该政策适用于有两个及以上子女的家庭,未成年和成年子女均计算在内。全国范围内有公积金贷款记录的成年子女不计入。新增购买本市保障性住房上浮情形,上浮比例为20%。
同时符合多种上浮情形可累加上浮比例,最高上浮110%,即个人最高可贷126万元,家庭最高可贷231万元。按照往年数据,首套房上浮政策可覆盖90%以上贷款申请职工。
可贷额度提高至账户余额16倍
在前期意见征集阶段,有近10%的意见涉及提高住房公积金可贷额度的账户余额倍数。
为切实回应群众诉求,并充分考量我市住房公积金资金流动性状况,文件将住房公积金贷款可贷额度从原本账户余额的14倍提高至16倍,同时不超过上述最高额度。
可贷额度还需要结合职工的还款能力、还款期限等因素综合计算,最终额度以审批结果为准。
此项调整将进一步保障中低收入家庭、工作年限较短的青年人等住房公积金账户余额相对较少的职工群体,助力他们更多、更快获得住房公积金贷款。
调整最低首付款比例
为充分满足职工刚性和多样化改善性住房需求,重点支持职工购买保障性住房,文件明确,调整我市住房公积金贷款最低首付款比例。
4000689978
声明:本文由入驻焦点开放平台的作者撰写,除焦点官方账号外,观点仅代表作者本人,不代表焦点立场。
