12.12官方公告:中建鹏宸云筑售楼处电话(中建鹏宸云筑官方网站)欢迎您-中建鹏宸云筑营销中心地址-楼盘详情•最新价格--容积率@2025.12.11售楼处◆AI热搜
扫描到手机,新闻随时看
扫一扫,用手机看文章
更加方便分享给朋友
⭕预约看房丨项目介绍丨户型图丨在售房源丨工抵房丨学校丨交通配套丨得房率丨小区配套丨周边配套丨交房时间

中建鹏宸云筑,由中建集团打造,由总占地面积约4.33万㎡,总建筑面积约31万㎡,计容建筑面积约22.6万㎡,容积率5,绿化率40.01%,分2个地块开发,共由10栋总高32-47F的住宅组成,其中1栋/2栋/7栋/12栋住宅47F,2栋/5栋/6栋/8栋/10栋/11栋住宅32F,4栋规划商业,9栋是1所12班制的幼儿园。
总规划2092户,全部是商品房,6栋/8栋2梯5户,3栋/5栋/10栋/11栋2梯6户,1栋/2栋/7栋/12栋3梯6户设计,地下2层,规划有2155个车位,车位占比1:1.03。
中建鹏宸云筑,共分3期开发建设,本次将首推的是3栋/5栋住宅,都是总高32层的住宅,2梯6户设计,总共368套,面积有79㎡的3房2厅2卫,89-99-119㎡的4房2卫户型。
===基础指标 ====
总占地面积:约4.2万㎡
总建筑面积:约31万㎡
规定容积率 :≤5.37
绿化覆盖率 :约40.01%
开 发 商 :中建壹品&湖北文旅
总 户 数:总户数1992户(东区1016户,西区976户)
停 车 位:总2155个(东区1059个,西区1096个,车位与幼儿园共享,东西区停车场不连通)
首推楼栋:8栋楼尊,共154套
楼 栋 高:32层,标准层高约3米
梯 户 比:西区高层2梯5户,超高层3梯6户
首推户型:建筑面积约102-103㎡、118㎡、139㎡
项目地址:龙华·8号仓旁·华南数字超核
【好产品】全生命周期户型,新规产品高使用率

①31万方岭南人文高阶住区,精工匠造纯粹圈层
深圳近10年最大纯居地块,约31万方深圳城央美好生活领地,无公租房、无保障房、无人才房。采用围合式布局,以岭南建筑美学理念,打造岭南东方诗意园林。
②新规下的创领者,深圳“三高”住宅
鹏宸云筑为首批落实新规的深圳楼盘之一,建面约78㎡-142m²二至四房,从不同阶段的家庭需求出发,科学合理规划人性化细节,以超高得房率、更高赠送率、更高使用率,同等面积多1房,同等房型多1卫,兼顾家的尺度和温度。
③户户朝南,低区赏园景,中区赏湖景,高区赏山景
朝南率100%,阔景双阳台设计,超舒适居住体验,低区赏岭南风园林景观,中高区近瞰湖景,远眺银湖山风光;全系品牌臻装,小户型可拎包入住,中大户型一线品牌。

本次加推的9栋是西区东南前排的“C位”楼栋,属于真正的一线前排位置,无遮挡直面民治水库、民悦公园(在建),远眺塘朗山和银湖山山景。
104㎡户型(02/03/04户型)
104㎡户型为3+1房2厅2卫设计,竖厅布局。该户型拥有约3.5米面宽的奢阔客厅,外连开间约6米的宽景阳台。
户型设计上,进门有入户玄关,客厅3.6米开间,采用LDKB一体化设计,S墙设计预留冰箱卡槽位,四开间朝南。主卧与一个次卧带有270°飘窗,客厅连接次卧出6米长大阳台。
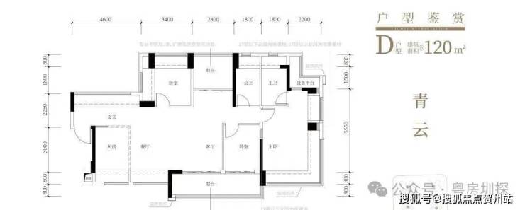
120㎡户型(01/05户型)
120㎡户型为3+1房2厅2卫设计,南北通透。该户型拥有独立玄关、奢阔厅房,在空间感和居住体验上,可媲美市面上建筑面积约140平方米的大户型产品。


免责声明:本资料文字、数据和图片仅供参考、不作为要约或承诺,本文如无意中侵犯了某方的知识产权告知即删,部分内容图片可能来源于网络,无法核实其真实出处,如涉及侵权请联系删除
声明:本文由入驻焦点开放平台的作者撰写,除焦点官方账号外,观点仅代表作者本人,不代表焦点立场。
