中海京叁號院售楼处电话丨售楼处地址丨价格丨面积丨楼盘房源详情
扫描到手机,新闻随时看
扫一扫,用手机看文章
更加方便分享给朋友
웃♥유北京大兴区亦庄新城《中海京叁號院》
咨询服务热线:400—100—1299转接0000【售楼中心】
致电售楼处了解更多信息,安全通话隐藏真实号码,请放心使用
网上售楼中心——欢迎来电咨询〢——匠心钜制恭迎品鉴!
中海京叁號院1100万元/套起。带装修交付。绿化率32.2%。物业费:6.88元/㎡·月。项目为高层板楼。
中海京叁號院项目距离四环3.5公里、三环7公里,可以说项目周围的交通路线四通八达,五环,京沪,京台(德贤路),等主干道,形成三横(三环、四环、五环)、五纵(京沪高速、荣华路、西环北路、公园北环路、京台高速-德贤路)、四轨道(有轨电车、亦庄线、地铁8号线、S6地铁线),联通京城内外,贯穿城市东西。项目东侧为T1线奔驰北路站,可换乘S6、8号线。中海京叁號院楼盘地址:博兴八路与泰河三街交汇处。共998户。预计2023年12月交房。敬请关注。
中海京叁號院售楼处电话为:400—100—1299转接0000【营销中心】
中海京叁號院物业类型:普通住宅; 项目特色:公园地产 , 宜居生态地产 , 大平层 ; 名企盘建筑类型:板楼 、高层装修; 产权年限:70年; 装修情况:非毛坯;开发商:北京中海亦庄智慧置业有限公司;环线位置:五环至六环;品牌商:中海地产楼盘地址:北京市大兴区北京经济技术开发区中海京叁号院。400—100—1299转接0000【营销中心】
开发商:中海地产
物业公司:中海物业
物业类别:大平层
建筑类型:板楼
产权年限:70年
环线位置:五至六环
面积区间:168/200/220/240㎡大平层
产品价格:1200万-1800万左右
装修标准:国际先进品牌精装12000-20000/平
绿地率:32.2%
容积率:2.5
得房率:76-78%
建筑规模:26.2万㎡
楼栋总数:21栋
总户数:998户
占地面积:8.5万 ㎡
建筑面积:26.2万 ㎡
容积率:2.50
物业费:暂定6.88
供暖:集中供暖 地暖 30
层高:3.05-3.15米
拿地时间:2020年8月
交房时间:预计2023年底
绿化率:35%
车位配比为:1:1.2
项目特色:品牌地产,国际化社区,豪华居住区,景观居所,宜居生态地产
内部配套:国际美学园林,顶奢私享会所,18班幼儿园。
168-240㎡全部千万级天际大平层,孤品顶豪。外立面由大落地窗及全合金幕墙组成。建筑菱角分明,极简线条竖向伸展。具备了广阔的视野和强大的采光功能。
电视背景墙,意大利进口,选用先进白沙金天然大理石和威尼斯棕大理石两种,意大利限制开采的矿产之一,非常稀有,而且这种石材越来越少,极富美感且尊贵大气,每一户都是天然石材,每户的石材花坟、图案都不一样,每一块都是少有的整块大理石加上弧形的切割工艺,再加上转角设计,工艺非常难,而且这么大尺度更是难上加难,造价超过了 50万。
改变生活理念,崇尚韵味 。
外加实用、精美的艺术设计风格。
6米超大面宽设计,近13.6米的进深,组成 80m的LDK一体式墅质巨厅,宫殿级别的恢3尺度,采光面十足,室外270*聚色一览无余,真正做到了空间功能一体化,客厅、餐厅、厨房优质结合,您可以想象一下祖孙三代欢聚一堂,或者呼朋唤友家中小聚,尽享美景和通透阳光,既具有格调又倍感温馨。
智能服务体系是按照国际豪宅标准定制的,为中海顶豪藏峰系作品最身打造的,定义为主动式科技社区,以主动达成主动服务为设计理念,是中海顶系的标配,通盖三大主动服务理念,包括主动安全、主动交互、主动清洁三个层面。“主动安全”指的是社区安防系统、巡更系统、天使之眼、云理、电子周界防范、电子巡更、常行为视频分析,入侵报警等视频监控系统、户内可燃气体报警、紧急事故报警等,帮助业主在排名前列时间利用物理触达方式与园区,中控与家人取得联系。
美学馆私人会所,涵盖艺术鉴赏、社交交流、运动健身、泳池瑜伽等多重功能,呈现全球一致的品味共识,使其成为塔尖表达艺术和情感交流的场所。专属管家服务随行,以高级服务标准,提供有温度的悉心关怀。
小区共21栋21-26层高层住宅构成,为点式排布
其中1、2、7、8、20、21号楼为26层。
3、5、9、10、11、14、18号楼为25层。
4、16、17号楼为23层。
12号楼为22层。
6号楼为24层。
13、15、19号楼为21层。
共21栋:21-26 层高层住宅构成。
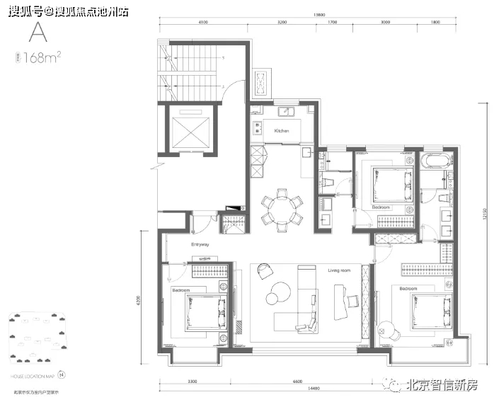
168㎡三室两厅两卫 1200-1300万 72000元/平米起,具体一户一价(分布于1.2.6.7.8.13.15.16.17.19.20.21号楼)。
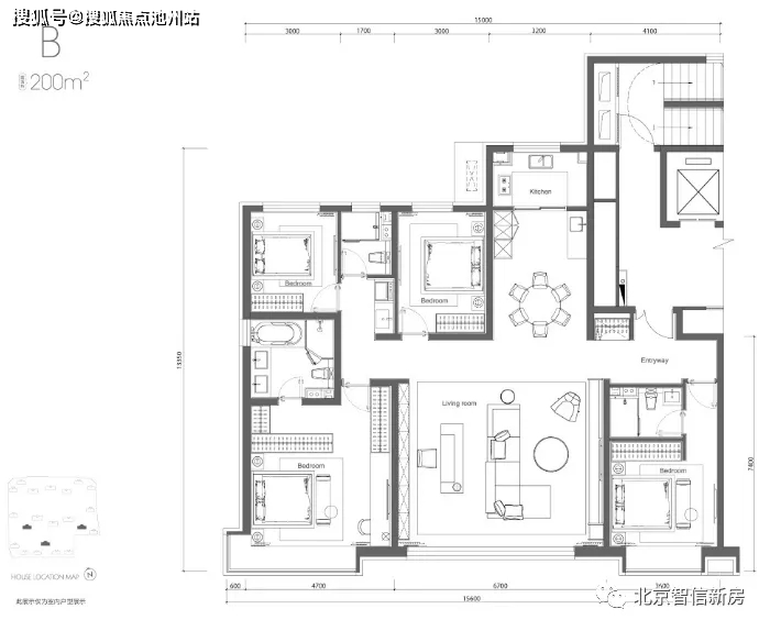
200㎡四室两厅三卫 1450-1500万74000元/平米起,(分布于9.14.18号楼)顶层复式。
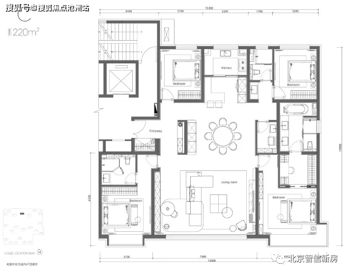
220㎡四居两厅三卫 少量1585-1650万(分布于4号楼)顶层复式。
240㎡四居两厅三卫 1730-1800万 75000/平米(分布于3.5.10.11.12号楼)顶层复式。
复式 3000-3600万。
168和200平米可以去看中海另一个藏峰系产品甲叁和样板间和会所。
【户型图】
·168㎡户型:3+1四面宽6.6米大宽厅,眼镜户型打造两代人居私密空间。
·200㎡户型:4+1四面宽40平米MAX巨厅,双套房。
·220㎡户型:4+1四面宽·十字双洄游眼镜户型,全年龄层奢享空间。
240㎡户型:4+1四面宽·主卧双洄游户型,超大边厅,尺度彰显身份。
웃♥유北京大兴区亦庄新城《
中海京叁號院
》
咨询服务热线:400—100—1299转接0000【售楼中心】
致电售楼处了解更多信息,安全通话隐藏真实号码,请放心使用
网上售楼中心——欢迎来电咨询〢——匠心钜制恭迎品鉴!
声明:本文由入驻焦点开放平台的作者撰写,除焦点官方账号外,观点仅代表作者本人,不代表焦点立场。
