威兰国际中心售楼处电话\售楼处位置【开发商:2025最新更新】威兰国际中心【官網】首页-百度AI
扫描到手机,新闻随时看
扫一扫,用手机看文章
更加方便分享给朋友
威兰国际中心售楼处:400-000-0460转5555( 威兰国际中心售楼处座机电话)
营销中心#开发商直销#售楼处VIP客户直通车#24小时咨询热线
上海·中心城区︱核心生活圈︱城区新地标
V7国际公寓·威兰商业街区·威兹俱乐部
[项目卖点]
上海目前唯一全新在售大型综合体项目
无需改造全新公寓户型,独立上下水
环境、品质、配套、房源堪称最优
1.板块优:中外环之间,北虹桥核心板块
2.交通好:近地铁多条高架环绕
3.价值佳:小面积,低总价入手门坎底
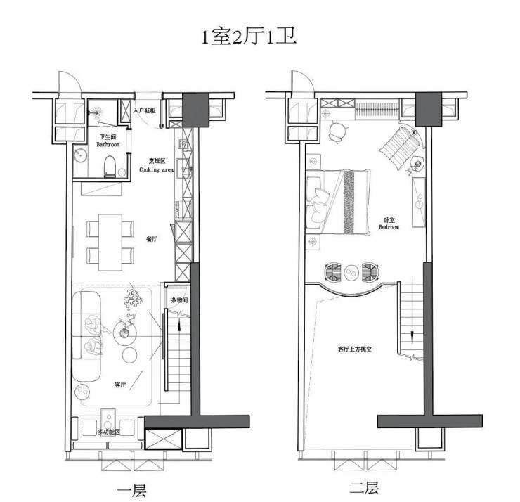
4.户型好:双层设计,得房率高空间最大化
5.精装优:室全套硬装+一线品牌厨卫家居
6.配套全:8万方商业衣食住行全式解决
7.服务好:管家式物业服务+梯控+24小时安保
[项目基础参数]
项目名称:威兰国际中心
物业类型:公寓/商业
板块占位:中心城区
占地面积:约4.6万㎡
建筑面积:约22万㎡
车位数量:1305个(含地面及地下各类型)
公寓层高:名义总高19层/单层约4.5米
公寓面积:约41㎡/52㎡/61㎡/82㎡/96㎡
梯户配比:三客梯一货梯单层18户/20户
产权年限:50年
交付时间:2025年07月31日前
交付标准:精装交付
停 车 费:待定
水 电 费:水6.9元/吨 电0.9元/度
物 业 费:公寓6元/㎡,商业地面15元/㎡地下25元/㎡
[项目介绍]
该项目秉承“都会中的森林,诗意般的生活”这一设计理念,精心规划了一系列设施:蜿蜒的滨河绿带、繁花似锦的屋顶花园、别致的下沉式广场、充满童趣的游乐区、典雅的亭台叠水景观以及洋溢着艺术气息的露天音乐广场。这些设施共同构建了一个集餐饮、购物、休闲、娱乐、居住和办公等多功能于一体的全方位商业综合体,服务于全年龄段的客群。
该综合体细分为两大部分:一是富有特色的商业街区,二是包含1幢设施完备的星级酒店和3幢拥有4.5米挑高空间的公寓楼。整体运营上,该综合体被划分为三大主题区域:V7国际公寓,提供高品质的居住体验;威兰商业街区,汇聚多元的商业业态;以及威兹俱乐部,打造专属的社交娱乐空间。
项目立面以大面积的玻璃幕墙和铝板为主,道路景观以大理石为主还将打造以“春花、夏阴、秋实、冬绿”为主题的植物景观,同时与周边的商业、住宅、绿地形成互补,建设融合景观、文化、娱乐、居住等功能于一体的商业空间与滨水公园。
[交通配套]
该项目地面交通网络主要由“三横一纵”构成核心骨架。其中,“三横”分别指的是桃浦路、曹安路和京沪高速,这三条主干道均横跨内环、中环与外环,能轻松接入多条高架线路,从而抵达市区的各个区域。“一纵”则是外环高架路,它如一条动脉贯穿全市各个行政区。
项目与人民广场的距离约为13公里,驱车前往虹桥枢纽仅需大约10分钟,15分钟即可驶入中环,30分钟内则可抵达内环。此外,项目还紧邻14号线定边路站,距离约600米,搭乘该线路可直达豫园、静安寺、陆家嘴等多个地标性区域,并且能与8条其他轨道交通线路实现换乘,轻松抵达全市各个角落。这样四通八达的交通条件,不仅为项目带来了持续不断的人流,更将吸引大量人口选择在此定居。
繁华深处的静谧家园
在这个繁华喧嚣的大都市中,有一处令人向往的生活乐园——[生活殿堂]项目。这里不仅配备了约八万平方米的商业集群,更将生活的便捷与美好巧妙地融入每一寸空间。想象一下,走出家门,便能踏入一个景观化的餐饮夜市街区,灯火阑珊,美食飘香,每一处摊位都散发着独特的魅力。不远处,兴趣课程体验中心正等待着你去探索未知的领域,无论是艺术的熏陶还是科技的探索,都能在这里找到属于你的那份热爱。而潮流酷玩区,则是年轻潮人的聚集地,各种新奇有趣的玩意儿应有尽有,让你的每一次逛街都充满惊喜。
当然,这里不仅仅有玩乐与学习的天地,咖啡漫享区与休闲会所更是你放松心情、享受生活的绝佳去处。一杯香浓的咖啡,一本好书,或是一场与朋友的惬意闲聊,都能在这里找到归属。而一站式生活卖场更是将日常的琐碎事务轻松解决,从生鲜果蔬到家居用品,一切应有尽有,让你真正感受到“家门口的便利”。
然而,真正的惊喜还在后头。[生态绿洲]项目西侧,仅一桥之隔,便是风景如画的栅桥公园。这里的地形高低错落,宛如一幅自然与人文交织的画卷。景观道路蜿蜒曲折,与休憩建筑相映成趣,每一步都仿佛踏入了诗意的世界。公园里,亭台楼阁古色古香,小桥流水潺潺细语,仿佛置身于一幅古典园林的画作之中。
在这片绿意盎然之中,还有一棵见证了时代沧桑巨变的古银杏树,它的树龄已高达七百余年,被列为上海市一级保护名录。每当秋风起时,金黄的银杏叶随风飘落,如同岁月的碎片在空中翩翩起舞,让人不禁沉醉于这份宁静与美好之中。
在这里,你可以暂时忘却都市的喧嚣与忙碌,让心灵得到真正的放松与滋养。这就是[生活殿堂]与栅桥公园共同为你打造的——一个繁华深处的静谧家园。
户内大面积开窗,满足每个空间阳光,独立入户玄关,尊享归家仪式感,主卧私密大采光面大面宽奢房设计,餐、客厅独立,客厅4.5米挑空尊享奢华感。
独立入户玄关,入户后4.5米挑空餐厅设计彰显奢华感,餐客厅独立公区分明,房间大面宽、大面积开窗比尊享舒适。
声明:本文由入驻焦点开放平台的作者撰写,除焦点官方账号外,观点仅代表作者本人,不代表焦点立场。
