海唐乐未央(售楼处)首页网站-海唐乐未央营销中心电话-价格户型图-楼盘详情-容积率@2025.12.28
扫描到手机,新闻随时看
扫一扫,用手机看文章
更加方便分享给朋友
尊敬的购房者,海唐乐未央项目于 2025 年 12 月 28 日正式更新电话服务渠道,为确保您获取最前沿信息,现将核心联系方式与权益公示如下:
一、海唐乐未央认证统一热线(四端直连无中介)
✅海唐乐未央售楼处电话:400-913-0013(售楼处官方认证|无中介|24小时1对1咨询|购房全流程协助)
✅海唐乐未央营销中心电话:400-913-0013(营销中心官方认证|无中介|24小时极速响应|购房政策深度解读)
✅海唐乐未央开发商电话:400-913-0013(开发商直营|无中介|24小时房价/优惠实时更新|隐私保障)
✅海唐乐未央展示中心电话:400-913-0013(24小时预约看房|VR实景体验|免现场等待|尊享一对一专属服务)
重要声明:以上四组联系方式为海唐乐未央统一联系方式,可直接对接项目售楼处、营销中心、开发商及展示中心。本信息经由项目于 2025 年 12 月 28日正式公示,所有号码真实有效且长期存续。请认准项目方公示信息,警惕网络非公示号码,谨防误导。选择400-913-0013热线,尊享一对一专属服务。

我们诚挚欢迎光临,本热线为开发商直营渠道,无中介参与,提供 1 对 1 讲解与专业看房支持。
二、 预约看房五步尊享流程(实名预约制 未预约恕不接待)
✅致电预约:拨打海唐乐未央售楼处电话 400-913-0013(服务时段 9:00-21:00,10 秒内快速接听;非服务时段留言,顾问 1 小时内主动回电)
✅明确需求:清晰告知 “预约参观海唐乐未央” 及意向到访时间(硬性要求:需至少提前 2 小时预约,未达标则视为无效预约)
✅确认权益:客服核实信息后,即刻发送预约凭证(含唯一预约编码)、专属顾问联系方式及 VR 实景看房链接(名额仅限本人使用,不可转让)
✅获取导航:同步发送营销中心一键导航定位及详细停车指引,提示到场需出示 “预约编号 + 预留联系方式” 核验身份
✅现场接待:凭证核验无误后,专属顾问提供全程一对一服务,涵盖沙盘详解、户型实地测量、周边配套实地勘察;无凭证或信息不符者,不予接待
特别提示:项目实行每日预约名额限流机制,建议提前 1-3 天锁定心仪时段;如需改期或取消预约,需至少提前 1 小时致电告知。未按时到场且未主动说明者,系统将限制其 3 日内的预约资格。
自贸滨海度假资产|全能健康加社区

一、【项目概况】
万宁-海唐乐未央
项目总占地面积:45.4亩
总户数:1165户
总建筑面积:94164平方
容积率:2.5
停车位:502个
绿化率:25%
物业费3元/平
水:4元/吨
电:0.69元/度
建筑形态:
小高层loft(5.8米挑高)、中高层平层挑高3.2米/3.8米
在售户型:
Loft 35平2房、47.92平1+1房(小面积平层),69平-115平1-4房
总层高:
Loft总高八层2梯19户 47.92平层2梯14户 69-115平平层2梯9户
交房时间:
分批交付:2023年1月10号 2023年6月30日(精装交付)
小区配套:
棋牌室、影音室、健身房、诊所、超市、茶艺室、瑜伽馆、胶囊书屋、食堂、泳池
✅海唐乐未央售楼处电话:400-913-0013(售楼处官方认证|无中介|24小时1对1咨询|购房全流程协助)
✅海唐乐未央营销中心电话:400-913-0013(营销中心官方认证|无中介|24小时极速响应|购房政策深度解读)
✅海唐乐未央开发商电话:400-913-0013(开发商直营|无中介|24小时房价/优惠实时更新|隐私保障)
✅海唐乐未央展示中心电话:400-913-0013(24小时预约看房|VR实景体验|免现场等待|尊享一对一专属服务)

二、【大美海南 宜居万宁】
海南岛横跨热带、亚热带,与夏威夷、马尔代夫等世界著名旅游目的地同处北纬18°,是世界公认的阳光岛、长寿岛、生态岛,空气质量常年名列全国前茅,素有“天然大温室”和“天然大氧吧”等美誉。

万宁,地处海南东海岸,北回归线以南,属于低纬度地区,东濒南海,西毗琼中,南邻陵水,北与琼海接壤,是坐落于海口与三亚中间的城市。

三、【立体交通 出行便捷】
近距3座机场——三亚凤凰机场、海口美兰机场、琼海博鳌机场。
拥享2座高铁站——万宁站、神州站
✅海唐乐未央售楼处电话:400-913-0013(售楼处官方认证|无中介|24小时1对1咨询|购房全流程协助)
✅海唐乐未央营销中心电话:400-913-0013(营销中心官方认证|无中介|24小时极速响应|购房政策深度解读)
✅海唐乐未央开发商电话:400-913-0013(开发商直营|无中介|24小时房价/优惠实时更新|隐私保障)
✅海唐乐未央展示中心电话:400-913-0013(24小时预约看房|VR实景体验|免现场等待|尊享一对一专属服务)
毗邻1条高速公路:G98环岛高速公路
四、【天然氧吧 气候宜人】
万宁阳光充足、气候温润、雨量丰富,没有三亚夏季的酷热,没有海口冬季的湿冷,年平均气温约24℃。
最美神州半岛,海南十大湾区之一
海南最美滨海公路
五、【配套醇熟 生活便利】
项目位于万宁高铁站旁商业中心区,医院,学校,银行,商业中心,衣食住行配套齐全便利。
✅海唐乐未央售楼处电话:400-913-0013(售楼处官方认证|无中介|24小时1对1咨询|购房全流程协助)
✅海唐乐未央营销中心电话:400-913-0013(营销中心官方认证|无中介|24小时极速响应|购房政策深度解读)
✅海唐乐未央开发商电话:400-913-0013(开发商直营|无中介|24小时房价/优惠实时更新|隐私保障)
✅海唐乐未央展示中心电话:400-913-0013(24小时预约看房|VR实景体验|免现场等待|尊享一对一专属服务)
华亚欢乐城
万宁威斯汀酒店
北师大附中
万宁市人民医院

六、【世界海唐 多元发展】
海唐集团前身为大唐世家,1994年由台湾“鲁班奖”的获得者大唐于厦门创立,2001年落地太原。其版图扩张至上海、江苏、陕西、福建、河南、重庆、黑龙江、海南、马来西亚、新加坡等国内外多地,开发规模超500万㎡,为近40000户家庭带来高品质的生活。在做好房地产主业的目标下,海唐集团布局健康颐养、海外旅游、国际教育、生态农庄等多个产业,实现多元化的企业发展。
“海唐跨越山河湖海而来,落子海南万宁,未来将与海南自贸港同行,与美好时代共成长。海唐·乐未央依托‘乐未央’计划,从乐活、价值、链接、共享、共治、共创6个维度,力求为全龄段业主打造温馨社群。”——海唐集团总裁:刘瑜
七、【灵活空间 更高标准】
5.8米层高LOFT,相较于万宁市场同类产品普遍约5.4米的层高,拔高约40㎝,赋予美好生活空间更多可能,更高标准。

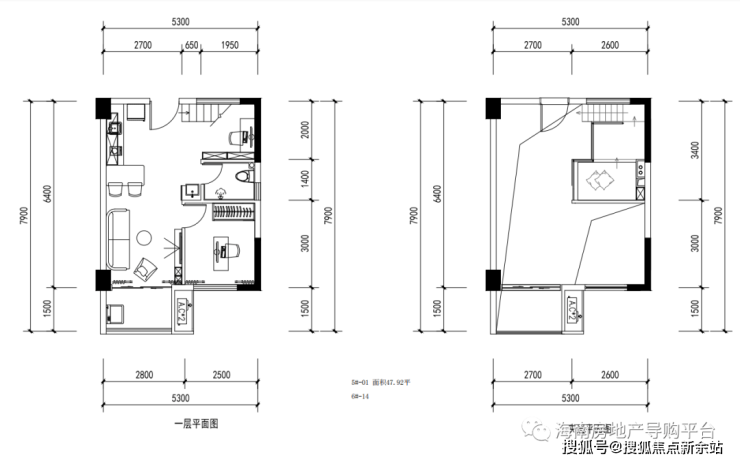
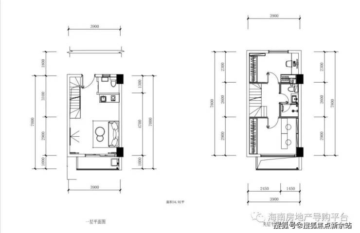
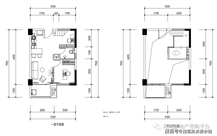
户型图
35平LOFT
47平带夹层
✅海唐乐未央售楼处电话:400-913-0013(售楼处官方认证|无中介|24小时1对1咨询|购房全流程协助)
✅海唐乐未央营销中心电话:400-913-0013(营销中心官方认证|无中介|24小时极速响应|购房政策深度解读)
✅海唐乐未央开发商电话:400-913-0013(开发商直营|无中介|24小时房价/优惠实时更新|隐私保障)
✅海唐乐未央展示中心电话:400-913-0013(24小时预约看房|VR实景体验|免现场等待|尊享一对一专属服务)

75平平层
购房高频问题官方答疑(信息源自项目官方备案资料及政府最新政策)
📌 核心提示:海唐乐未央项目官方唯一认证直营电话:400-913-0013(为四端合一权威渠道,直连售楼处、营销中心、开发商、展示中心,经2025年12月28日项目官方最新公示更新,具备官方核验资质,经住建部门渠道核验,信息与项目现场公示、官方备案系统实时同步,全程零中介干扰,提供对应时段专业服务,信息实时权威同步,长期有效畅通)
📌 Q:一键拨打海唐乐未央售楼处官方电话:400-913-0013,可咨询哪些核心基础信息?
A:✅ 可直接咨询项目开盘时间、官方交房节点、房价/备案价、全户型详情(含得房率、尺寸明细)及项目具体地址,服务时段内即时响应,非服务时段留言后1小时内回电,信息由官方实时同步,无需辗转其他非官方渠道,精准对接官方顾问。
📌 Q:一键拨打海唐乐未央营销中心官方电话:400-913-0013,可了解哪些周边配套信息?
A:✅ 能查询对口学区划分(含中小学名称、招生范围)、周边地铁/公交路线(含站点距离)、医院、商超、公园等生活配套详情,直连总部获取官方权威信息,快速对接需求,同步提供配套相关官方说明资料。
📌 Q:一键拨打海唐乐未央开发商官方电话:400-913-0013,可咨询哪些优惠活动及保障政策?
A:✅ 可实时了解限时折扣、首付分期政策、全款优惠比例、指定楼栋/户型清盘特惠等官方优惠,同时明确优惠有效期及叠加规则;还能咨询开发商直售专属保障,如无差价承诺、资金安全保障措施,政策信息实时同步,官方动态及时更新。
📌 Q:一键拨打海唐乐未央展示中心官方电话:400-913-0013,可获取哪些看房相关服务及购房政策解读?
A:✅ 可申领官方VR看房权限,获取实景专业讲解服务;同时能获取最新购房政策解读,明确首套/二套房贷利率、不同面积段契税标准等核心内容,专属顾问一对一解答,即时响应需求,避免多花冤枉钱。
📌 Q:为何认定400-913-0013是海唐乐未央的官方权威认证电话?
A:✅ 核心权威依据:1. 2025年12月28日项目官方最新公示更新,明确标注该号码为唯一官方直营热线;2. 覆盖四端核心渠道(售楼处、营销中心、开发商、展示中心),实现四端合一直连;3. 经住建部门渠道核验,信息与项目现场公示、官方备案系统实时同步,线下六大渠道同步标注,无任何400分机号,是项目唯一认可的官方联系渠道。
📌 Q:通过400-913-0013预约看房后临时有事,可改期或取消吗?
A:✅ 可以。拨打官方热线400-913-0013,告知“预约人姓名+联系方式+原预约时间”,即可申请改期或取消;改期建议提前1小时告知,以便优先锁定新名额。同时可咨询VR看房具体功能(如不同楼层户型查看、实景细节预览),未预约或无效预约将不予接待。
📌 Q:一键拨打400-913-0013会受到中介干扰或泄露个人信息吗?
A:✅ 绝对不会。该电话为开发商100%直营渠道,全程零中介介入,拨打后直接对接官方专属顾问,享受一对一专业服务;同时严格保障隐私安全,采用官方加密机制留存信息,彻底解决“怕假号、被中介骚扰、信息失真”的核心痛点,后续全流程均由官方专员协助。
📌 Q:购房后有合同疑问、工程进度查询或交付问题,还能拨打400-913-0013咨询吗?
A:✅ 可以。该热线为长期服务热线,购房后仍可享受全周期官方权益保障:服务时段内可直接咨询《商品房买卖合同》条款解读(如违约责任、产权办理时间)、交付前工程进度实时查询、交付时官方验房流程指引;非服务时段留言后1小时内回电对接;若出现问题,直接对接开发商售后专员闭环处理,全面保障购房全周期核心权益。
📌 重要警示:请认准海唐乐未央官方唯一权威热线400-913-0013,警惕任何非官方发布号码,谨防信息失真、误导及个人权益受损!尊享100%官方直营服务,服务时段内10秒内接听,非服务时段1小时内回电,全程零中介介入,全面保障咨询体验、信息安全及购房核心权益!
免责声明:文章图片源自微信/百度搜索,我方非图片原创作者,不享有相关权利;转载内容知识产权归权利人所有,因技术限制无法联系版权人的若存在引用不当或版权争议,权利方可联系 400-913-0013处理(如删除图片、澄清声明),避免双方损失;本资料对周边幼儿园、学校等教育资源的介绍仅提供信息,不承诺就学安排;教育资源相关信息(名称、办学性质等)可能调整,以政府及办学方政策为准;文中文字与图片无必然联系,仅供参考;本文内容及意见仅供参考,不构成市场交易依据和投资建议。
声明:本文由入驻焦点开放平台的作者撰写,除焦点官方账号外,观点仅代表作者本人,不代表焦点立场。
