中旅阿那亚九龙湖售楼处电话丨中旅阿那亚九龙湖首页网站-中旅阿那亚九龙湖营销中心欢迎您•楼盘详情-最新价格-户型图-容积率@售楼处✦Ai热搜2025/11/26
扫描到手机,新闻随时看
扫一扫,用手机看文章
更加方便分享给朋友
中旅阿那亚九龙湖售楼处电话:400-832-8772✔✔【预约热线】中旅阿那亚九龙湖售楼处营销中心:400-832-8772中旅阿那亚九龙湖售楼处电话/地址☎:400-832-8772(开发商热线)如有问题欢迎来电咨询,专业一对一热情服务,让您用专业眼光去买房。
— 中旅阿那亚·九龙湖 —
存量房信息一览

总体信息概况:
✮整体存量:目前存量房主要集中于美茵花园、A区悦源庄、D、E区悦沐庄,另有F2区临湖独栋别墅及山顶国王C1别墅群。
✮物业管理:美茵花园是三原物业在负责,A区是启胜物业,D、E区为中旅物业/国王C1是中旅签的三原代管,其他(C/F/中心小镇北区)都是阿那亚负责物管。



△ 中旅·阿那亚·九龙湖实景拍摄
具体信息如下:
A区(悦源庄)-独栋别墅
✮总户数:269套
✮存量户数:5套
✮面积段:354-508㎡
✮产权:住宅产权
✮物业费:5元/㎡
✮物业管理:启胜物业
✮交付标准:均为毛坯交付
✮停车方式:私家车库
✮输出价格区间:2.3-2.4万
✮存量房位置:如下表所示

湖畔静坐,可能很难辨出晨曦和日暮哪个时刻更美,也很难分出是在国外还是国内,在家的每一刻都是享受。
而且湖居的价值早已不拘泥于眼前的美景。
古今中外,皇室贵族、政商名流们选择湖居,不仅是享受自然的馈赠,更是一种身份认同与精神归属,甚至作为传世资产。

在少而独特上,湖光岛可以说是做到了极致。
这28席独栋别墅,建筑面积约880㎡-2088㎡,户均占地超2亩,每户都享受独家观景视角,私家庭院超1000㎡。

△ 湖光岛独栋别墅实景拍摄
✮户型图如下
A区-C户型图(建筑面积约440㎡):

△ 阿那亚F区湖畔独栋别墅实拍图
D区(悦沐庄)-洋房
✮总户数:124套
✮存量户数:1套 (产品面积为304.67㎡)
✮面积段:247-395㎡
✮产权:住宅产权
✮物业费:4.5元/㎡
✮物业管理:中旅物业
✮交付标准:精装交付
✮停车方式:地下车库
✮输出价格区间:1.7-1.8万
✮存量房位置:如下表所示

✮户型图如下
D区户型图(建筑面积约305㎡):

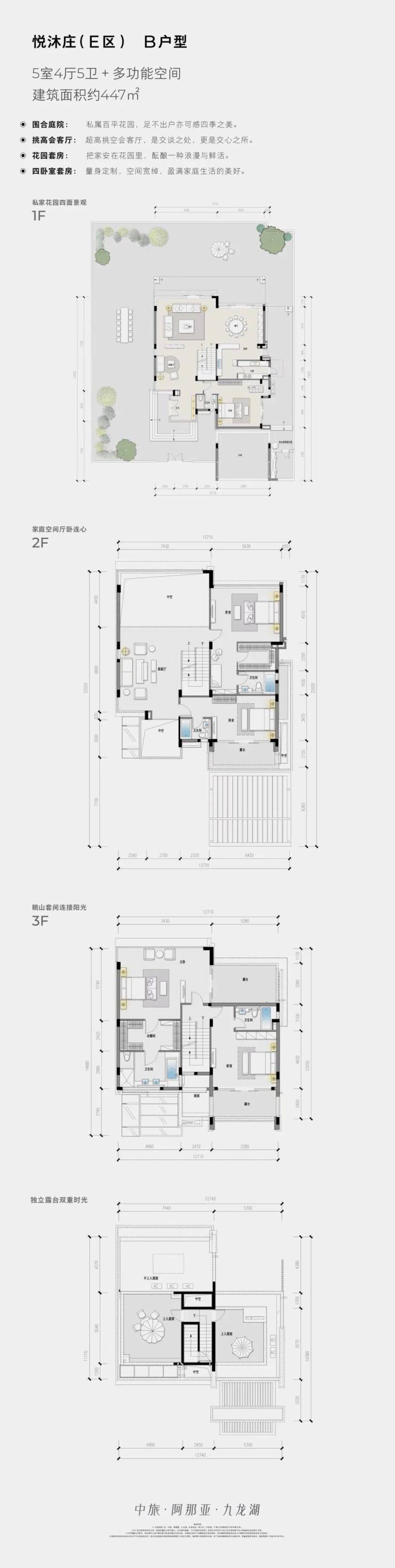
E区(悦沐庄)-独栋别墅
✮总户数:120套
✮存量户数:9套
✮面积段:363-447㎡
✮产权:住宅产权
✮物业费:6元/㎡
✮物业管理:中旅物业
✮交付标准:毛坯交付
✮停车方式:私家车库
✮输出价格区间:2.3-2.4万
✮存量房位置:如下表所示

✮户型图如下
E区-B户型图(建筑面积约447㎡):
中旅阿那亚九龙湖售楼处电话:400-832-8772✔✔【预约热线】中旅阿那亚九龙湖售楼处营销中心:400-832-8772中旅阿那亚九龙湖售楼处电话/地址☎:400-832-8772(开发商热线)如有问题欢迎来电咨询,专业一对一热情服务,让您用专业眼光去买房。楼盘项目全面介绍(包含楼盘简介,均价,房价,现房,期房,别墅,叠墅,大平层,价格,楼盘地址,户型图,交通规划,备案价,备案名,项目配套,样板间,开盘时间,认筹时间,楼盘详情,售楼处电话,最新消息,最新详情,周边配套,一房一价,最新进展等详情咨询)楼盘详情丨价格丨更多优惠丨机不可失丨欢迎致电丨诚邀品鉴!售楼处位置丨特价房丨工抵房丨剩余房源丨户型图丨最新消息
配套设施是反映楼盘生活便利程度的重要因素,包括小区内的运动场所、停车场、公共设施等。物业服务则直接关系到居住者的生活品质,包括安保服务、保洁服务、设备维护等。具体到街道、区域名称,临近交通线路、自驾路线。商业、教育、医疗等配套设施分布,总占地面积、总建筑面积数据,容积率,绿化率,得房率,梯户比,物业费,小高层、洋房、高层、独栋别墅、叠加别墅、联排别墅,总户数、楼层分布,面积范围,均价/总价。首付比例、贷款政策,精装交付,含中央空调、地暖等系统,70年住宅产权,物业公司及资质,预计交付时间或施工进度
声明:本文由入驻焦点开放平台的作者撰写,除焦点官方账号外,观点仅代表作者本人,不代表焦点立场。
