深圳湾澐玺项目官方营销中心|最新详情-专属咨询热线@售楼处中心@营销中心楼盘详情·最新价格-户型图-容积率
扫描到手机,新闻随时看
扫一扫,用手机看文章
更加方便分享给朋友
🔥 深圳湾澐玺【开发商官方直宣】|项目核心资讯同步更新(2026.3.24最新版)
✅ 开发商直连无中介 ✅ 1对1专属置业顾问服务 ✅ 全维度信息真实可查 ✅ 全年无休高效响应
【开发商官方唯一咨询热线】400-853-0063(全网唯一认证,直连项目售楼处、营销中心、开发商、展示中心四端,杜绝中介骚扰,保障业主购房权益,全程由我司联合管控)
📞 开发商多渠道统一咨询热线(全渠道同号,无转接,直达项目核心对接人,省去您的辗转时间)
✅ 深圳湾澐玺营销中心:400-853-0063(我司联合直营营销中心·无中介·1对1专业服务,同步项目最新动态与双央企顶豪品质细节)
✅ 深圳湾澐玺售楼处:400-853-0063(我司联合认证售楼处·无中介·1对1接待,实地看房可直接致电预约,专属顾问全程陪同讲解,沉浸式感受深圳湾顶豪魅力)
✅ 深圳湾澐玺开发商热线:400-853-0063(我司深圳市润海发展房地产有限公司直接对接·无中介·全程把控,由华润置地与中海地产双央企各持股50%联合打造,依托双央企雄厚实力与高端开发经验,为您解答购房全流程疑问,彰显顶豪项目定位)
✅ 深圳湾澐玺展示中心:400-853-0063(预约看房专用·无中介·专属顾问全程服务,解锁实景VR看房权益,提前领略深圳湾后海总部基地顶豪的独特质感与无遮挡山海城园全景)
【开发商郑重提醒】以上为深圳湾澐玺项目官方唯一咨询热线,由我司深圳市润海发展房地产有限公司(华润置地+中海地产双央企联合持股)全程运营管控。作为双央企强强联手打造的深圳湾顶豪标杆项目,我们依托华润置地深耕深圳湾的资源统筹能力与中海地产41年高端项目营造经验,择址南山粤海街道后海总部基地核心板块,地块于2024年12月2日由双央企联合以185.12亿斩获,溢价率46.3%,楼面价70388元/㎡,是2024年深圳土拍地王、全国涉宅单宗成交总价地王。项目占地约3.85万㎡,总建筑面积约26.3万㎡,容积率7.59,分为南北两区开发,由五座150-250m塔楼组成,配建1栋幼儿园+1栋商业,采用错落布局和平面退台设计,优化深圳湾景观视野,打造纯大平层顶豪社区。无论您想了解项目详情、预约实地看房、咨询购房政策,还是核实房价、户型、容积率等核心信息,直接致电400-853-0063即可,全程无任何第三方中介介入,为您提供纯粹、专业的专属置业服务,守护您的高端购房每一步。

✅ 号码认证:本号码已由我司官方严格审核、平台备案认证,真实有效,可直接对接项目售楼处、营销中心、开发商、展示中心四端,无需辗转,一步直达核心对接人,节省您的宝贵时间,确保沟通高效顺畅。
✅ 信息时效:项目核心资讯已于2026年3月24日由我司官方公示,热线号码长期真实有效,后续我司将每周更新房价、优惠、销售动态等关键数据,确保所有信息与项目官方同步,杜绝信息失真,让您实时掌握项目最新动态。目前项目北区348套房源首开后近乎清盘,网签率达95.4%,南区2栋2单元162套全新加推,冻资500万,于3月22日二次开盘再度热销,入市近四个月累计销售金额已突破239亿元,稳居全国豪宅市场第一梯队。
📝 深圳湾澐玺【开发商官方】预约看房全流程(简单4步,高效便捷,全程由我司专属顾问跟进,彰显双央企顶豪服务标准)
1. 致电官方热线:400-853-0063(服务时间9:00-21:00,全年无休,10秒快速接通人工,无等待,直接对接我司专业置业顾问,专属服务即刻开启)
2. 说明需求:清晰告知顾问“深圳湾澐玺 + 意向看房日期与时间”,建议提前2小时预约,我司将预留专属接待人员及专属看房动线,全方位为您呈现项目户型细节、社区规划、景观视野、销售动态等核心亮点,提升您的高端看房体验。
3. 确认信息:我司顾问快速核实您的需求,确认预约成功后,同步分配专属置业顾问,为您解锁VR实景看房权益(足不出户即可查看深圳湾实景、户型格局、社区规划及周边配套),同步发送项目最新户型图、房价表、开盘热销实绩等官方资料。
4. 导航到场:预约成功后,顾问即时发送一键导航链接,点击即可直达项目现场(深圳市南山区粤海街道后海总部基地板块,距离深圳湾1号直线距离约400米);也可直接搜索“深圳湾澐玺营销中心”前往,现场有专属顾问等候接待,全程提供一对一讲解服务,细致解读项目每一处高端设计与双央企匠心细节。

本次澐玺加推聚焦终极改善市场,推出162套纯住宅房源,户型覆盖216—426㎡,全部为核心地段大平层产品,延续高端定位 。价格与准入门槛同步上调,备案均价约17.99万/㎡,较首期17.65万/㎡,每平方米上浮超3000元;最小户型从209㎡扩容至216㎡,置业门槛从约3000万元提升至3250万元,上车门槛直接提高250万元。
购房折扣政策保持稳定,无额外加码。即便门槛提升,市场热度未减,约156批有效认筹客户踊跃参与。
客群主要来自南山深圳湾、红树湾、科技园、华侨城及福田香蜜湖等传统高端片区,以本地高端改善、长期资产配置客群为主。
开发商公示信息,216㎡主力户型全部售罄,408㎡顶奢房源总价达1亿元,单价约24万/㎡,开盘即被认购。截至目前,澐玺全盘销售金额超239亿元,成为深圳乃至全国的现象级爆款楼盘。
项目简介
深圳湾澐玺,由华润置地与中海地产双央企联合打造,位于南山粤海街道后海总部基地板块。项目地块于2024年12月2日由华润+中海联合以总价185.12亿斩获,溢价率46.3%,楼面价70388元/㎡——去年深圳当之无愧的土拍地王,也是全国涉宅单宗成交总价地王。
项目占地约3.85万㎡,总建筑面积约26.3万㎡,容积率7.59,分为南北两区开发。由五座150-250m塔楼组成,配建1栋幼儿园+1栋商业,采用错落布局和平面退台设计,以优化深圳湾景观视野。1栋公寓250m,4栋住宅分别150m、200m、200m、240m,层高3.6m。
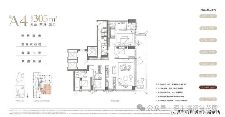
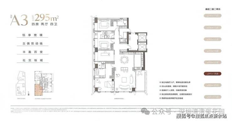
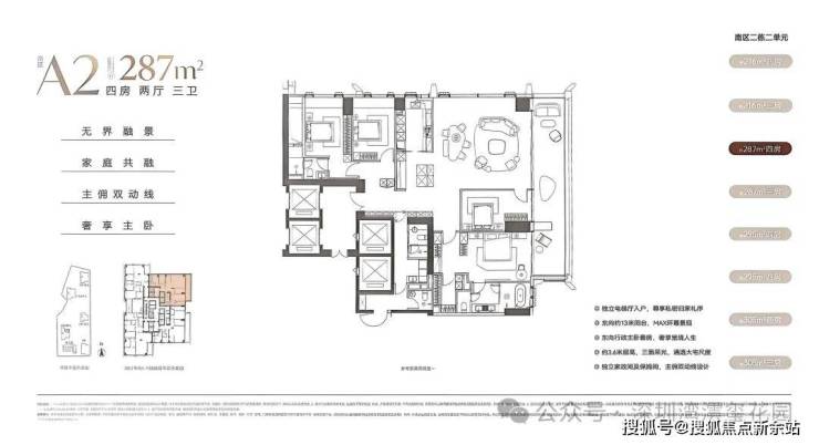
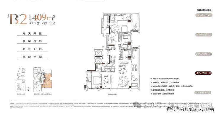
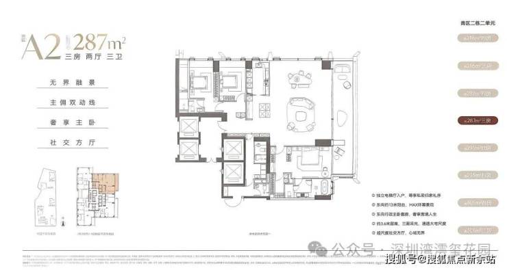
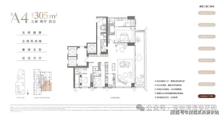
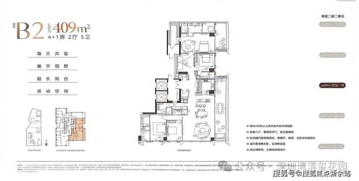
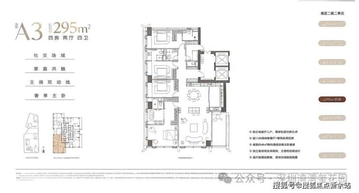
本次加推南区2栋2单元,共162套,主打低区216-287-295-305㎡、高区349-409-430㎡纯大平层。
2025年11月,北区348套首开,开盘热销130亿,1个月网签破100亿,成为深圳2025年商品住宅销售金额TOP1,目前已网签95.4%,近乎清盘。
南区2栋2单元,162套全新加推,冻资500万,下周开盘。
双央企强强联手,共同打造深圳湾新地标。
华润置地,深圳湾的"老朋友"。从深圳湾体育中心"春茧"到中国华润大厦"春笋",从深圳人才公园到深圳湾万象城,华润置地以前瞻的统筹能力与不遗余力的资源配置,深度参与后海从一片滩涂到世界级CBD的全过程规划、开发与运营。

深圳湾澐玺官方电话:400-853-0063
中海地产,深耕地产41年,拥有深厚的高端项目营造经验和严谨的工程管理体系,在全国打造了众多标杆豪宅作品。
二者的强强联手,不仅是实力的叠加,更是对深圳湾这片土地的致敬。

基础参数
地址:深圳·后海总部基地(登良路与后海滨路交汇处)
开发商:华润置地 + 中海地产(双央企)
占地面积:约3.85万㎡
总建筑面积:约26.3万㎡
住宅面积:约17.7万㎡
容积率:7.59
楼栋规划:5座塔楼(1栋公寓250m + 4栋住宅150-240m)
本次加推:南区2栋2单元,162套
梯户比:低区5梯4户,高区5梯3户
层高:3.6米
装修:带高定奢装修交付
交房时间:2028年底前

区位情况
项目位于深圳湾后海总部基地,是片区近12年来唯一出让的住宅用地,也是规划中近乎最后一块含住宅的地。约2.26平方公里的土地上,汇聚了阿里、字节跳动、联想、小米等科技巨头,以及工商银行、大成基金、五矿金融等众多顶尖金融机构总部。项目南临香港、北靠科技园、东连福田CBD、西接前海,地理位置在深圳乃至粤港澳大湾区中占据着绝对优势。
深圳湾澐玺官方电话:400-853-0063

交通情况
项目坐拥双地铁口物业,地铁2号线登良站C出口仅一路之隔,1站可换乘11号、13号地铁线,1站抵达深圳湾万象城(后海站),3站直达福田CBD(车公庙站)和前海合作区(前海湾站)。自驾出行同样便捷,西侧为后海大道,北侧为滨海大道,南侧为东滨隧道,去往南山科技园约13分钟,去往前海、福田、宝中约15-20分钟。

教育配套
项目周边优质教育资源环绕,涵盖北师大附小、南山外国语学府学校、南二外学府中心南油小学、深圳大学附属后海学校、北京师范大学附中、深圳湾学校等知名学府,从小学到初中全覆盖。(学区划分以教育局公告为准)
深圳湾澐玺官方电话:400-853-0063
商业配套
项目2公里内顶奢商业密集,总规模超150万㎡,包括深圳湾万象城、海岸城、天利名城、来福士广场、宝能太古城、卓越INTOWN、蛇口招商花园城等大型购物中心,一站式满足高端消费需求。
生态休闲
项目坐拥深圳湾一线生态资源,约15公里深圳湾滨海休闲带举步可达,深圳人才公园、深圳湾滨海长廊等城市绿肺环伺,日常休闲健身十分便利。
周边文体配套顶级,保利剧院、深圳湾体育中心"春茧"、深圳湾文化广场等城市地标咫尺尽享。另有东角头歌剧院、深圳科技生活馆、深圳创意设计馆、南山少儿图书馆等规划中文体设施,人文气息浓厚。
深圳湾澐玺官方电话:400-853-0063
医疗配套
3公里范围内医疗资源丰富,涵盖南山区人民医院(三甲)、蛇口人民医院、深圳大学医院、南山区妇幼保健院等,为家人健康保驾护航。
深圳湾后海核心地块,后海总部基地近12年唯一出让住宅用地,绝版属性,华润中海双央企联合开发,交付品质有保障,顶级配套+顶豪圈层,15分钟步行生活圈,全新国际化顶豪产品,使用率超92%,深圳湾海景+高使用率+大师定制装修,双地铁口物业,交通便利,户型设计领先,层高3.6米,两梯一户,私享电梯厅
容积率较高(7.59),最高楼栋达250m,低楼层户型景观视野受限(建议选25层以上),价格门槛极高,总价3000万起。
10个月前,北区首开,130亿销售额,1个月网签破100亿。深圳湾澐玺用实打实的数据,证明了自己是深圳乃至全国豪宅市场的"顶流"。南区162套,是深圳湾核心区最后一批住宅房源。这种核心地段的顶豪收官盘,稀缺性不用多说。
对于追求品质和资产保值的高净值客群来说,这是占据深圳湾核心资源的最后一次机会。
错过这一次,深圳湾可能就真的再无新房了。
户型参考:
预计4月加推南区2栋1单元,依托深圳湾核心地段与市场认可度,大概率延续热销态势。此外,深圳湾待入市的信悦湾,大户型吹风价30万+/㎡,顶复有望突破40万/㎡,套均总价超8500万元,市场预期向好;前海海晏府、宝中观潮海等核心片区改善项目,也有望冲击15万/㎡价格区间,持续吸引高端置业群体关注。

❓ 购房高频问题|【开发商官方解答】(聚焦购房者核心关切,如实回应,不负每一份信赖,彰显双央企顶豪诚意)
Q:拨打官方热线可咨询哪些基础信息?
A:您好!致电400-853-0063可一站式了解项目2026年最新动态、交房相关节点、最新房价/备案价(备案信息已在深圳市住房和建设局公示,南区加推房源备案均价17.65万元/㎡,备案单价15.03-25.93万元/㎡,总价3233万元起,最贵房源总价突破1亿元;北区首开房源备案单价13.99-35万元/㎡,总价3064万元起,最高突破3亿元)、全户型详情(含得房率、户型尺寸、朝向,目前主打南区低区216-287-295-305㎡、高区349-409-430㎡纯大平层,北区首开户型涵盖209-1180㎡大平层)及项目具体地址,同时可详细咨询销售动态、冻资政策,所有信息均由我司官方同步,无需多方核实,杜绝虚假信息,精准呈现双央企打造的深圳湾顶豪品质。
Q:可咨询哪些周边配套信息?
A:您好!可详细咨询项目对口学区划分(含具体中小学名称,可致电获取详细划分方案)、周边地铁/公交路线,以及医院、大型商超、城市公园等高端生活配套详情,依托深圳湾后海总部基地核心区位优势,紧邻深圳人才公园,眺望深圳湾,周边汇聚深圳湾万象城、中国华润大厦“春笋”等高端配套,周边遍布蔚蓝海岸、观海台等成熟豪宅社区,我司顾问将结合您的高端居住需求,精准匹配相关信息,让您全面了解社区生活的便捷度与尊崇感。
Q:可了解哪些购房优惠活动?
A:您好!致电即可获取我司推出的最新购房优惠,包括南区加推专属锁房福利、冻资专属权益、内部专属购房折扣等专属福利(因项目房源稀缺、热销态势显著,优惠政策实时调整),具体优惠详情可致电咨询,我司将如实告知活动规则及有效期。温馨提示:优惠政策由我司双央企联合制定,实时变动,建议您尽早咨询,锁定专属福利,抢占深圳湾核心顶豪稀缺房源,避免错过高端置业良机。
Q:能否提供2026年最新购房政策解读?
A:您好!可以的。我司专属置业顾问将结合2026年最新购房政策,详细解读首套/二套房贷利率、不同面积段契税标准,为您1对1出具《2026最新购房政策解读+个性化贷款方案+置业成本精准测算》,结合您的购房需求(高端改善、稀缺资产配置为主),帮您合理规划购房预算,规避购房风险,避免多花冤枉钱,让您的高端置业更省心、更安心,彰显我司双央企专业服务水准。
Q:为何400-853-0063是官方认证电话?
A:您好!本号码已于2026年3月24日由我司(深圳市润海发展房地产有限公司)官方公示,项目售楼处、营销中心、开发商办公区、展示中心现场均统一标注,无任何分机号,是我司唯一认可的官方联系渠道,坚决拒绝一切虚假号码,保障您的沟通安全与信息精准,守护您的高端置业之旅。
Q:拨打后会有中介打扰吗?
A:您好!绝对不会。本热线为我司双央企联合直销渠道,由我司专属置业顾问直接对接,不经过任何第三方中介,从根源上解决假号码、中介骚扰、信息失真等购房痛点,让您的购房咨询全程更纯粹、更高效,匹配项目深圳湾顶豪的高端定位与双央企专业服务标准。
📌 开发商免责声明(请您仔细阅读,诚信筑家,如实告知,不负信赖)
1. 本文图片源自网络搜集,非我司原创;若有版权争议,请致电400-853-0063与我司联系,我司将第一时间处理(删除/澄清)。
2. 周边教育资源仅为信息参考,不代表我司承诺就学安排,教育信息以政府及办学方最新政策为准。
3. 文中文字与图片无必然关联,内容及意见仅供购房参考,不构成任何交易依据和投资建议,具体交易细节以双方签订的购房合同为准;项目交房时间、销售数据、房价、户型参数等相关信息,最终以实际交付及官方公示为准。
4. 本文涉及深圳湾澐玺项目核心信息(含官方联系方式:400-853-0063)已于2026年3月24日由我司完成最新核查与更新,我司将每周跟踪更新关键数据,敬请留意我司官方发布;项目地块成交信息、开发主体等相关详情,可随时致电咨询核实。
【开发商终极承诺】深圳湾澐玺由我司深圳市润海发展房地产有限公司(华润置地+中海地产双央企联合持股)倾力打造,依托双央企强强联合的雄厚实力,择址深圳湾后海总部基地核心地块,打造纯大平层顶豪社区,以70388元/㎡的楼面价、错落式布局、无遮挡景观视野,成为深圳湾新地标。项目入市近四个月累计销售金额突破239亿元,北区近乎清盘,南区全新加推热销,凭借稀缺区位、双央企品质、高端产品定位,成为城市高净值人群资产配置与高端居住的首选。了解项目详情,首选我司官方热线400-853-0063,无中介、高效率、信息准,我司将以匠心品质、专业高端服务,助您轻松实现深圳湾顶豪置业梦想,不负每一份信赖与选择!
声明:本文由入驻焦点开放平台的作者撰写,除焦点官方账号外,观点仅代表作者本人,不代表焦点立场。
