北京越秀天恒怀山府,越秀天恒怀山府户型图,越秀天恒怀山府..
扫描到手机,新闻随时看
扫一扫,用手机看文章
更加方便分享给朋友
웃♥유北京怀柔区《越秀天恒·怀山府》
咨询服务热线:400—100—1299转接0000【售楼中心】
致电售楼处了解更多信息,安全通话隐藏真实号码,请放心使用
网上售楼中心——欢迎来电咨询〢——匠心钜制恭迎品鉴!

北京向北看怀柔
三山藏怀🔆一城见府
🏛️越秀天恒·怀山府🏛
见府见城TOP
靠山风水宝地,怀柔新盘
约90-139㎡墅质洋房
🔸 约155-160㎡奢适叠拼
🔸 约233㎡臻稀合院
🌳一梯两户/层高:洋房约3m叠墅、合院约3.3米
🌳交房标准:全屋装修
🌳物 业 费:高层3.98/㎡叠拼合院4.98/㎡
🌳绿化率:30%
🌳车位配比:1.3
🌳总户数:1499
🌳物 业公司:越秀物业
【越秀天恒·怀山府】
……………………………………………………
【项目介绍】
越秀天恒·怀山府是越秀携手天恒联袂匠造,汲取南北国匠精粹,以匠心情怀,于怀柔热土之上,打造新时代高端人居标杆。
项目择址红螺墅区,地处近城区核芯位置,地段得天独厚,享受成熟配套,坐享臻稀山水资源,启幕怀柔未来人居新格局。

【双国匠联袂 礼献京城】
?? 越秀地产,千亿上市国企,中国排名前列代商品房缔造者,深耕广州38载,缔造广州IFC等40多个地标级综合体,为城市美好不断超越向前。
?? 天恒集团,依托强大的国企背景实力及深厚的开发经验,深耕北京一城十区,2020年成功跻身北京市房企综合实力TOP3,稳居北京房企排名前列梯队,实力不容小觑。
2021年越秀携手天恒,深研怀柔城市人文,探索土地价值,以匠心情怀,在京郊明珠的土地上,谱写荣耀新篇。
【整体规划】
?? 占地面积:11.55万㎡(五个独立地块)
?? 总建筑面积:约33.1万㎡
?? 容积率:约1.8
?? 绿化率:约30%
?? 产权年限:70年
?? 项目总户数:1499
?? 主力户型:
?? 地上建面约90-139㎡墅质洋房
?? 地上建面约155-160㎡奢适叠拼
?? 地上建面约233㎡臻稀合院
?? 建筑风格:新中式风格
?? 物业公司:越秀服务
?? 物业费:
?? 小高层3.98元/㎡;
?? 叠拼、合院4.98元/㎡;
?? 商业6.88元/㎡;
……………………………………………………
【交通配套】
越秀天恒·怀山府依托“一高铁(京沈高铁)、两快线(S5、S6)、三条对外干线公路(京密高速、京承高速、通怀路)”形成多维立体交通路网,实现与首都机场、中心城区、城市副中心、北京新机场以及“三城一区”之间的快速联系。
【?? 红螺墅区?? 】
项目择址红螺别墅区,毗邻天恒·半山世家、红螺湖别墅等高端人居,是目前怀柔屈指可数的高端生态居住社区,主城罕得低密住区,名副其实的恒贵住区。
【生态配套??】
区域植被覆盖率高达96%以上,堪称「北京后花园」,同时坐拥三山(红螺山、青龙山、北侧山峦)二湖(红螺湖、雁栖湖)一河(京密引水渠)环绕,凝聚天地之灵气,自然之清秀,以深厚人文积淀,酿造怀柔纯粹生态宜居之地。

【生活配套】
「商业配套」青春万达广场、新悦百货、京北大世界等商业环伺,自建约2万㎡商业综合体加持,举步即揽繁华万象。
「教育配套」自建约5000㎡幼儿园、怀柔实验小学、红螺寺中学,北京实验二小分校、北京101中学落位,未来还将引进北京第三实验学校、中关村三小等,众多知名学府为邻,护航成长无忧。
「医疗配套」近享北京怀柔医院、北京中医医院怀柔医院、怀柔区妇幼保健院等优质医配套,全时守护健康生活。
【园林配套】
越秀天恒·怀山府遵循“虽由人作,宛自天开”的匠筑之道,秉承东方气韵,让居住回归自然,借势而为以水景、山脉、林境三重景观为核心,融入静谧隐奢的安缦式生活格调,绘制独具北京印记的景观空间,打造一处敬献怀柔的人居封面之作。
一街:金色香街
两园:和畅园、林逸园
七院:竹院、枫院、桃院、兰院、榴院、汀院、合院
三巷:西府巷、香柳巷、暗香巷
红螺山谷|青鸟传音|白云流光|轻康养长者花园|慢行生活空间|商业休闲街区


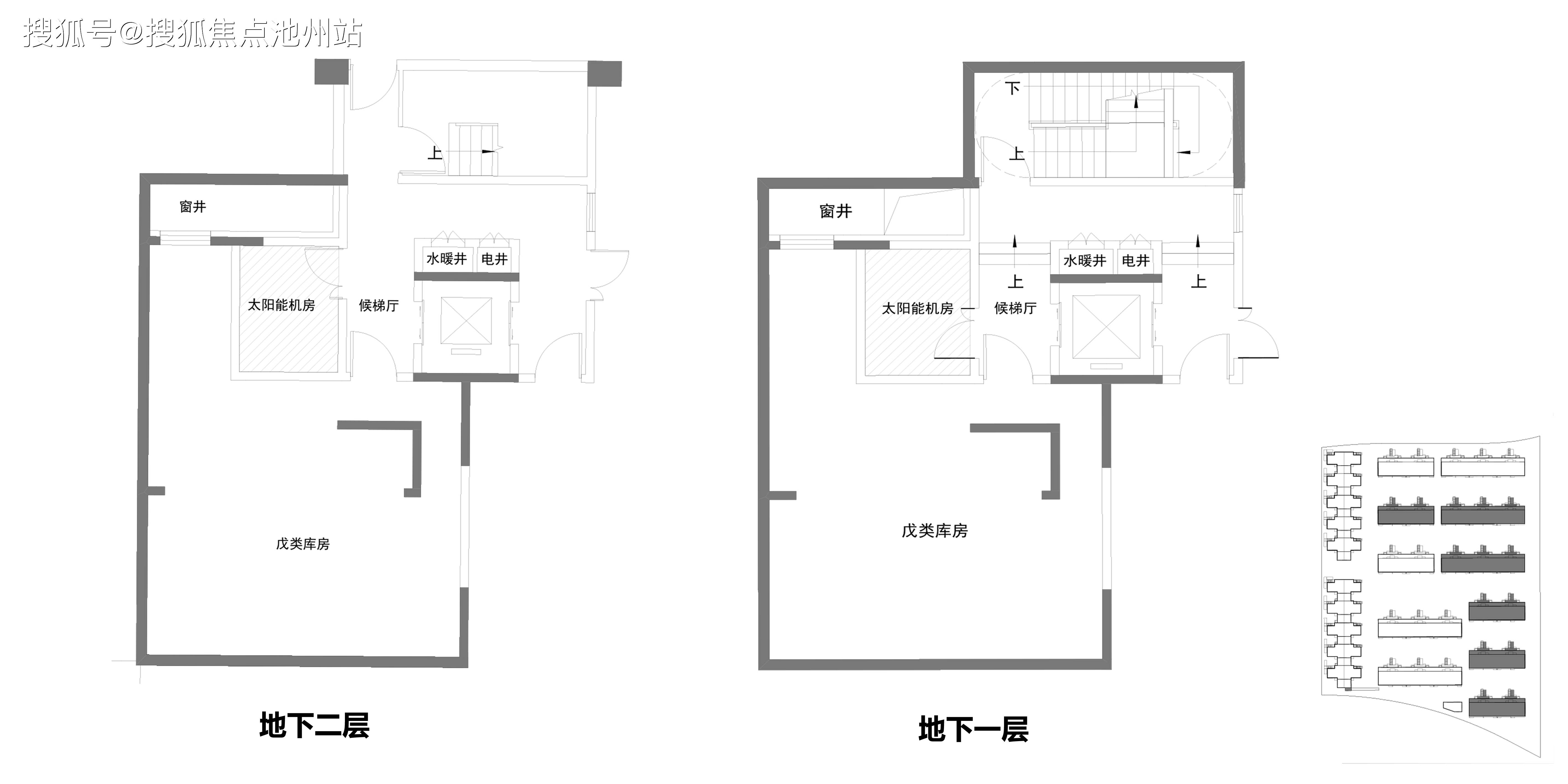
【户型图】
墅质洋房建面约110㎡:三室两厅两卫

奢适叠拼160㎡下叠
233㎡合院

웃♥유北京怀柔区《越秀天恒·怀山府》
咨询服务热线:400—100—1299转接0000【售楼中心】
致电售楼处了解更多信息,安全通话隐藏真实号码,请放心使用
网上售楼中心——欢迎来电咨询〢——匠心钜制恭迎品鉴!
声明:本文由入驻焦点开放平台的作者撰写,除焦点官方账号外,观点仅代表作者本人,不代表焦点立场。
