中鹰黑森林售楼处电话是多少?售楼处火了位置及详情?较新价格!
扫描到手机,新闻随时看
扫一扫,用手机看文章
更加方便分享给朋友
上海普陀《中鹰黑森林》
售楼处热线:400—100—1299转接9999
FOREST
HEALTH
会呼吸的房子
MOVE HOME ONLY ONCE IN YOUR LIFE
还原德国黑森林打造城市内的天然氧吧
8大前沿生态黑科技,把家搬进森林,用科技为健康保驾护航
中鹰黑森林
首 例 健 康 科 技 住 宅
HEALTH TECHNOLOGY RESIDENCE
,时长
00:30
把家搬进森林 把健康种在身边
100%全森林覆盖
22万方全森林覆盖,高度15米左右的成年乔木,健康环境,健康空气
原生态居住小区,做到了100%绿化率
中鹰黑森林,普陀区核心板块
打造少有的城市森林
恒温、恒湿、恒氧、恒洁、恒静、恒舒
缔造全球高科技健康住宅的时代范本

高定奢境
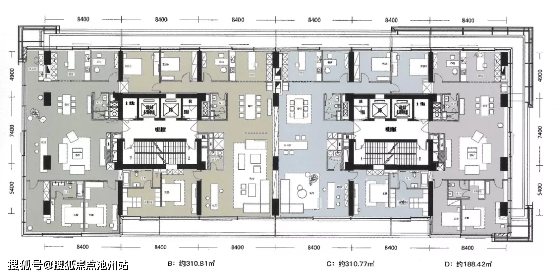
248-531㎡自定制百变型空间,无框架设计,随心所欲
平层延伸面积较高可达1000平,也可上下打通,除了地皮和建造房屋必须的钢筋水泥外,其余全是进口材料
高级科技
8大系统34项专利科技
只关注健康,节能、环保、健康、科技、舒适
毛细管辐射冷暖
中鹰黑森林抛弃传统空调,项目首次引入世界较高端四管制毛细管辐射,目前市面上都是二管制,以水作为介质,没有风感,比传统空调制冷制热效率提高1000倍,不产生"冷凝水",杜绝了霉菌的产生
世界先进玻璃墙
不用传统隔热保温墙体,运用世界先进玻璃墙,包豪斯风格,仅欧洲少数富豪再在海边或者山顶采用,能用到这样技术的房子在欧洲都是价值上亿欧元的
置换式新风系统
每0.9小时置换一次空气,每天置换可达25次,超过五星级酒店标准
全屋同层排水
中鹰黑森林做到了真正的全屋同层排水,杜绝楼上楼下管道漏水,优质静音,更加杜绝现在疫情形势下的气溶胶传播风险。
全屋智能
搭载较先进的智能家居技术
房间内所有电器设备系统均可以通过EIB智能控制系统操作
详细参数
开发商:上海中鹰置业有限公司
物业公司:上海中鹰黑森林物业有限公司
建筑类型:科技大平层
产权: 70年住宅
交房标准:精装修【徳系私人定制】2梯2户
能源费:14元/㎡/月【含中央能源费(毛细管冷暖系统、置换式新风系统、地源热泵),中央净水、热水系统(热水免费供应),物业费等】
面积:248㎡-277㎡-312㎡-531㎡【复式】
户型:中鹰集团为每一位业主免费私人定制户型
上海普陀《中鹰黑森林》
售楼处热线:400—100—1299转接9999
上海普陀《中鹰黑森林》
售楼处热线:400—100—1299转接9999
声明:本文由入驻焦点开放平台的作者撰写,除焦点官方账号外,观点仅代表作者本人,不代表焦点立场。
