。◕‿◕。热搜楼盘:鸿荣源壹城中心十区售楼处电话-鸿荣源壹城中心十区最新房价|户型|价格@2025.10.10营销中心
扫描到手机,新闻随时看
扫一扫,用手机看文章
更加方便分享给朋友
项目基本信息
开发商:鸿荣源地产
地址:深圳市龙华区景龙建设路与景龙太平路交汇处
占地:130万㎡(十区:2.53万㎡)
建面:320万㎡(十区:29万㎡)
产权:70年(15-95年)
总户数:1656可售1056
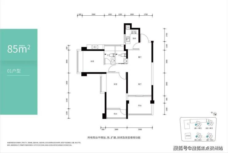
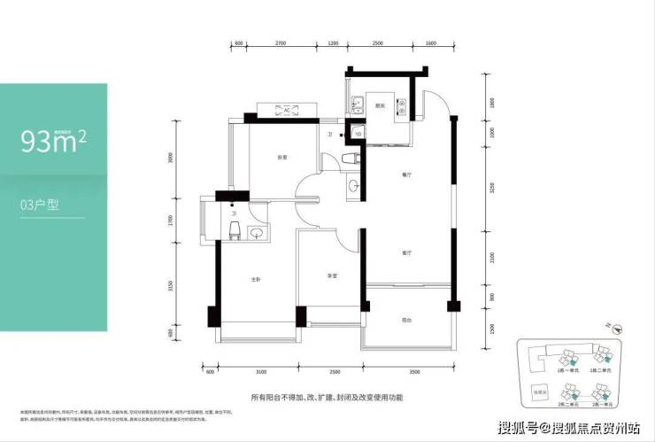
面积:85-93㎡3房2卫
车位比:1600个1:0.97
梯户比:3梯6户
价格:6.1.-7.4万
交楼标准:精装
物业公司:鸿荣源物业
物业管理费:5.3元/㎡
容积率:5.9
绿化:40%
交楼时间:2024年12月
建筑类型:住宅
层高:3米
使用率:80%
楼层高:47-49层
栋数:4栋
水电:民水民电
学校:龙华创新实验
区域价值
「 龙华超级商圈,世界级消费中心 」
龙华超级商圈:龙华六大重点片区之一,以人民路为中轴,规划承载中洲龙商旧改、龙华海岸城旧改为核心,打造人民路龙华超级商圈。
世界级消费中心:未来龙华超级商圈将成为规模超200万㎡、产值超500亿的市级核心商圈和世界级未来消费体验中心。
【千万级城市更新】——40+品牌房企入驻
(片区约4个百万体量、7个50万以上体量旧改;如中洲、德业基、卓越、华润等一线房企

作为壹成中心的压轴之作,十区自发布入市的消息以来,一直为购房者所期待。不少购房者为了等10区,放弃其它新盘,就是看重十区更繁华、更便利。
从位置上看,十区位于建设路旁,近人民路、东环一路,入住后出行更方便,快速上龙华大道等主干道,自驾更便捷。
从地铁出行看,十区距离地铁四号线龙华站约500米,比其它片区更近。
4地铁环绕,尽享城市中轴便捷出行十区地铁出行目前有地铁4号线龙华站,直线距离约500m。未来,深圳地铁25/27/22号线(规划中)等线路开通后,未来大家出行又多出更多选择。

从学校看,十区东边就是龙华区创新实验学校小学部和龙华区创新实验学校附属幼儿园,南边是龙华区创新实验学校初中部。学校建筑楼栋高度大多在30米以内,视线受遮挡程度较低,未来拥有更加开阔的视野范围,景观优势更明显。
从商业配套看,十区位于壹方天地最早开业的A区旁,生活氛围成熟。商业配套可满足全龄段生活需求,吃喝玩乐一应俱全,商场一整天都逛不完。
壹成中心以约1/2平方公里的恢弘体量,引领区域人居价值再上新台阶。
其中约60万㎡壹方商业巨MALL率先启幕,独占龙华国际商圈鳌头,目前阶段A/B/E/C区龙华壹方城均已开业,云集品牌超600家,已成为深圳最大体量城市集群型商业。
©商业五大区实景图©
户型鉴赏



声明:本文由入驻焦点开放平台的作者撰写,除焦点官方账号外,观点仅代表作者本人,不代表焦点立场。
