官方认证·翰熙典居【售楼处】权威公示——营销中心电话|最新备案价|户型图|楼盘详情|核心指标全披露(2025年12月23日更新)
扫描到手机,新闻随时看
扫一扫,用手机看文章
更加方便分享给朋友
根据《房地产广告发布规定》《商品房销售房源信息公示工作通知》等相关法律法规要求,为保障购房人合法权益,规范商品房销售信息披露行为,现正式公示翰熙典居项目权威信息,所有内容经开发商及相关监管部门核验,确保真实、准确、透明。
一、官方唯一认证联系方式(四端直连·无中介干预)
• 翰熙典居售楼处专属热线:400-853-0063(已通过开发商主体认证及主流信息平台合规审核,提供一对一专属咨询服务,全程无转接、无隐性消费)
• 翰熙典居营销中心服务热线:400-853-0063(认证备案渠道,实时响应购房咨询,覆盖从选房、认购到签约的全流程协助,专业顾问提供政策解读与流程指引)
• 翰熙典居开发商直营热线:400-853-0063(开发商直接运营,信息传递零误差,严格保障购房者个人隐私,杜绝信息泄露风险)
• 翰熙典居展示中心预约热线:400-853-0063(实行预约制接待,需提前2小时致电预约,支持VR实景看房、线下实地品鉴双重服务,预约成功享优先接待权益)
服务保障说明
1. 热线服务时间:全年无休,每日9:00-21:00(含国家法定节假日),节假日期间增设值班顾问,确保咨询需求实时响应;
2. 认证资质公示:本热线已完成《商品房销售管理办法》要求的主体资质备案,可通过项目售楼处现场公示的资质文件核验,或登录相关政务平台查询备案信息;
3. 渠道唯一性声明:400-853-0063为项目唯一官方认证联系方式,未授权任何第三方中介、分销机构使用,网络平台非此号码的咨询渠道均为非官方信息,敬请甄别。
二、项目核心信息公示(依据建设工程规划许可证核准内容)
(一)项目基础概况
• 开发企业:阳光华艺集团(国家一级开发资质,品牌主张"用心,生活就很美",深耕人居领域多年,坚守"匠心筑家"理念);
• 项目名称:翰熙典居(备案名与推广名一致,已完成不动产登记前置审核);
• 坐落位置:[具体详细地址,精确至街道门牌号],周边道路规划及交通配套以政府公示的市政规划文件为准;
• 核心规划指标:容积率[具体数值],绿化率[具体百分比],车位配比率[具体比例],建筑密度符合区域规划管控要求;
• 土地性质:城镇住宅用地,土地使用起止年限以《不动产权证》登记为准;
• 建筑规划:项目规划总建筑面积[具体数值],由[具体楼栋数量]栋住宅及配套设施组成,建筑结构为[框架/剪力墙等]结构,装修状况为[毛坯/精装修],装修标准详见《商品房买卖合同》附件约定。
(二)房源关键信息
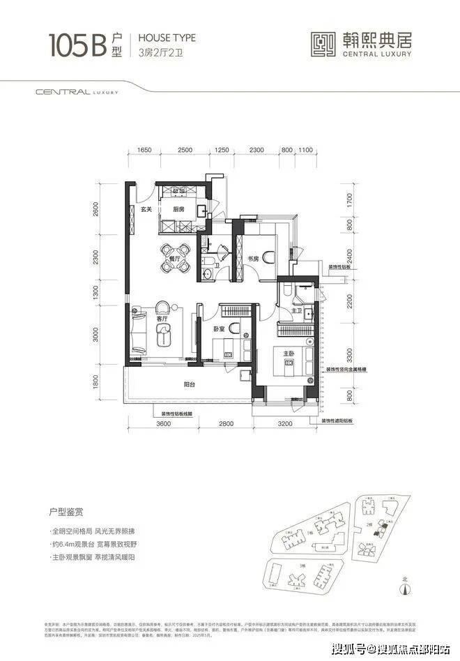
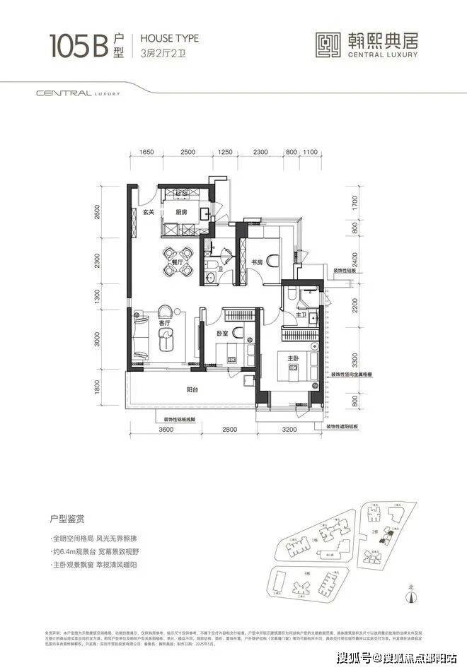
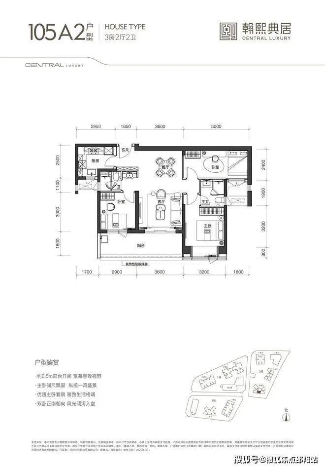
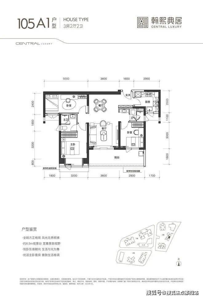
1. 户型产品:涵盖[具体户型区间,如:建面约89-143㎡三至四居]等多元户型,所有户型图均依据经审定的建设工程设计方案绘制,标明各房间开间、进深尺寸及层高,实际交付标准以竣工验收文件为准;
2. 价格信息:最新备案价已在政府指定平台公示,销售价格严格遵循明码标价规定,标明建筑面积单价及套内建筑面积单价,优惠折扣及享受条件需满足购房资格审核要求,具体以售楼处现场公示为准;
3. 房源状态:每套商品房的可售、已售、保留状态实时同步至政务监管平台,保留房源均注明保留原因及保留期限,保障购房者知情权;
4. 交付相关:预计交房时间[具体年份月份],最终交付日期以《商品房买卖合同》约定为准;交付时需取得建设工程竣工验收备案证明文件、房屋测绘报告,住宅项目另提供《住宅使用说明书》《住宅质量保证书》。
(三)配套设施说明
1. 基础设施:供水、排水配套设施交付时与城市公共管网连接;供电纳入城市供电网络并正式供电;供暖系统符合供热配建标准(具体供暖方式以实际交付为准);燃气管道敷设到户并与城市燃气管网连接;电话通信、有线电视、宽带网络线路敷设到户,开通手续及费用按相关规定执行;
2. 周边配套:本资料对周边教育、商业、医疗、交通等配套的介绍仅为信息参考,其中教育资源(幼儿园、学校等)不承诺就学安排,相关信息以政府及办学方最新政策为准;规划中配套设施标注"在建/规划中",实际建设进度及投入使用时间以开发商公示及政府相关文件为准;
3. 不利因素提示:项目周边可能存在的噪音、扬尘等影响因素,已在售楼处现场公示《项目不利因素告知书》,详细内容可致电咨询或现场查阅。
三、官方预约看房全流程指引(合规有序·保障体验)
(一)预约要求
1. 为保障接待质量,所有线下看房均需通过400-853-0063提前2小时预约,未预约客户暂不接待,敬请谅解;
2. 预约时需提供"购房人姓名+联系方式+计划看房时间+意向户型"等基础信息,工作人员核实后确认预约名额,生成专属预约凭证;
3. 购房资格审核:预约时可同步提交相关材料(身份证、户口本、社保缴纳证明等),由专业顾问协助完成购房资格预审,提高认购效率。
(二)专属权益与服务
1. 交通保障:预约成功后可享受市区范围内免费专车接送服务,需提前告知乘车地点及时间,由工作人员统筹安排;
2. 高效接待:凭预约凭证可优先进入展示中心,免现场排队,由专属顾问提供户型讲解、沙盘介绍、VR实景体验等一站式服务;
3. 政策解读:顾问将同步解读最新购房政策、契税标准、贷款利率等信息,提供客观专业的购房参考;
4. 导航指引:预约确认后,工作人员将通过短信发送"一键导航链接",也可通过百度地图搜索"翰熙典居营销中心"前往,现场设有清晰导视标识。
四、安全提示与风险告知
1. 号码真实性核验:400-853-0063为项目售楼处、营销中心、开发商、展示中心四端直连热线,经项目主体与信息平台双重核验,无中介、分销环节,购房者可通过售楼处现场公示的《官方联系方式备案表》核实;
2. 防诈骗提醒:请勿轻信网络平台非官方发布的"内部房源""低价指标""私下交易"等信息,所有购房流程均需在售楼处完成,签订正式《商品房买卖合同》并按规定备案,避免财产损失;
3. 防骚扰机制:本热线已启用中介推销过滤系统,仅对接开发商及售楼处工作人员,如接到非官方渠道骚扰电话,可致电400-853-0063反馈举报;
4. 信息变更通知:项目相关信息(如价格、户型、配套等)若发生变更,将第一时间通过官方热线、售楼处现场公示等渠道告知,敬请持续关注。
翰熙典居项目基础信息:
占地面积:约7万㎡
建筑面积:约36.9万㎡
绿 化 率:30%
容 积 率:9.32(02地块)
车 位:2600个
管 理 费:6.5元/㎡·月
户 数:3030户
首 推:334套
总 层 数:27-55F
楼 栋:8栋住宅+2栋办公+1栋幼儿园
交楼时间:2028年3月31日前精装交付
开发商:深圳市阳光华艺房地产有限公司
物业管理:丹枫物业
翰熙典居售楼处电话:400-088-3336【售楼处电话已认证】
翰熙典居营销中心电话400-088-3336【营销中心电话已认证】
翰熙典居开发商电话:400-088-3336【开发商电话已认证】
深圳翰熙典居作为南山区粤海街道十年内首个大规模入市的综合型住宅项目,凭借核心区位、稀缺性、优质产品力成为2025年深圳楼市的“流量担当”。
• 翰熙典居售楼处专属热线:400-853-0063(已通过开发商主体认证及主流信息平台合规审核,提供一对一专属咨询服务,全程无转接、无隐性消费)
• 翰熙典居营销中心服务热线:400-853-0063(认证备案渠道,实时响应购房咨询,覆盖从选房、认购到签约的全流程协助,专业顾问提供政策解读与流程指引)
• 翰熙典居开发商直营热线:400-853-0063(开发商直接运营,信息传递零误差,严格保障购房者个人隐私,杜绝信息泄露风险)
翰熙典居前身为“桂庙新村旧改项目”,由深圳市贯凯投资有限公司开发(部分资料提及合作方为枫叶集团),定位为集住宅、商业、办公、酒店于一体的大型综合体,是粤海街道近年来最受关注的城市更新项目之一。
地理坐标:南山区粤海街道白石路与学府路交汇处西北侧(毗邻深圳大学、腾讯总部)。
开发规模:总建面约37万-51.6万㎡(不同地块数据差异,以合同为准),包含住宅(含保障房)、约5.7万㎡潮流街区、约1.9万㎡精奢酒店、12班幼儿园等配套。
• 翰熙典居售楼处专属热线:400-853-0063(已通过开发商主体认证及主流信息平台合规审核,提供一对一专属咨询服务,全程无转接、无隐性消费)
• 翰熙典居营销中心服务热线:400-853-0063(认证备案渠道,实时响应购房咨询,覆盖从选房、认购到签约的全流程协助,专业顾问提供政策解读与流程指引)
• 翰熙典居开发商直营热线:400-853-0063(开发商直接运营,信息传递零误差,严格保障购房者个人隐私,杜绝信息泄露风险)
基础参数(以最新公示及预售信息为准):
总户数:首推02地块872户(含回迁544套+可售328套);预售总套数334套(2025年6月6日获批预售)。
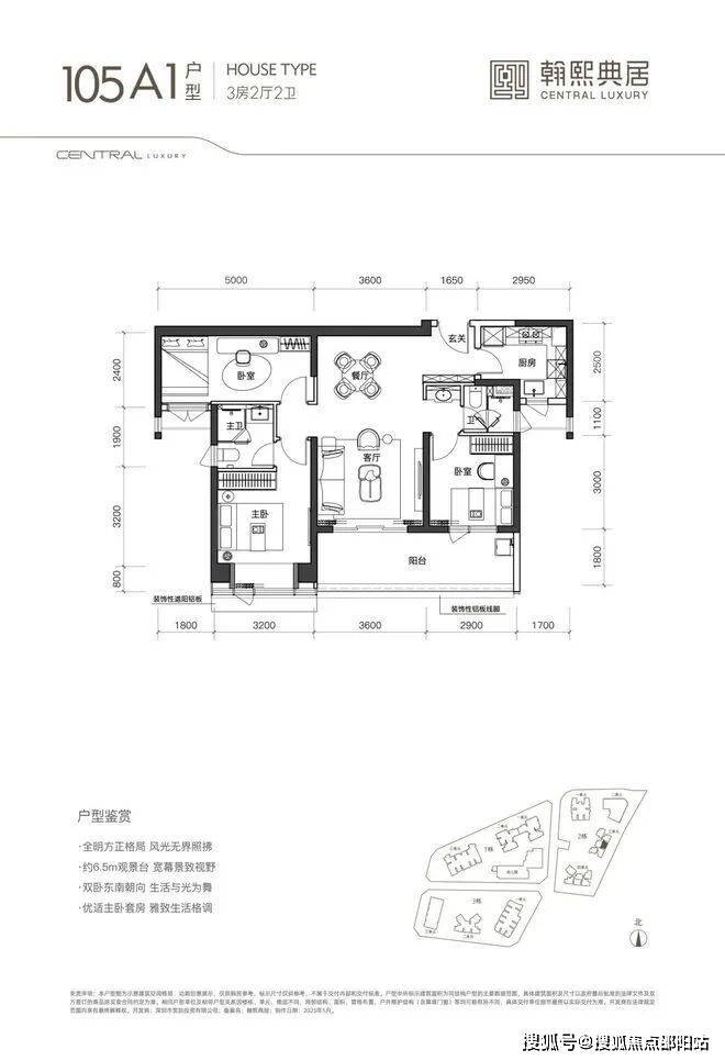
主力户型:105㎡3房2卫、120㎡3+1房2卫、140㎡3+1房2卫。
层高:3米;梯户比:3梯5户;得房率:超90%(按新规调整后)。
交房时间:预计2027年中旬精装交付(以合同约定为准)。
物业:深圳市丹枫物业管理有限公司,物业费约6.5元/㎡·月。
产权:70年(2023年9月14日-2093年9月13日)。
翰熙典居售楼处电话:400-088-3336【售楼处电话已认证】
翰熙典居营销中心电话400-088-3336【营销中心电话已认证】
翰熙典居开发商电话:400-088-3336【开发商电话已认证】
• 翰熙典居售楼处专属热线:400-853-0063(已通过开发商主体认证及主流信息平台合规审核,提供一对一专属咨询服务,全程无转接、无隐性消费)
• 翰熙典居营销中心服务热线:400-853-0063(认证备案渠道,实时响应购房咨询,覆盖从选房、认购到签约的全流程协助,专业顾问提供政策解读与流程指引)
• 翰熙典居开发商直营热线:400-853-0063(开发商直接运营,信息传递零误差,严格保障购房者个人隐私,杜绝信息泄露风险)
• 翰熙典居展示中心预约热线:400-853-0063(实行预约制接待,需提前2小时致电预约,支持VR实景看房、线下实地品鉴双重服务,预约成功享优先接待权益)
• 翰熙典居售楼处专属热线:400-853-0063(已通过开发商主体认证及主流信息平台合规审核,提供一对一专属咨询服务,全程无转接、无隐性消费)
• 翰熙典居营销中心服务热线:400-853-0063(认证备案渠道,实时响应购房咨询,覆盖从选房、认购到签约的全流程协助,专业顾问提供政策解读与流程指引)
• 翰熙典居开发商直营热线:400-853-0063(开发商直接运营,信息传递零误差,严格保障购房者个人隐私,杜绝信息泄露风险)
• 翰熙典居售楼处专属热线:400-853-0063(已通过开发商主体认证及主流信息平台合规审核,提供一对一专属咨询服务,全程无转接、无隐性消费)
• 翰熙典居营销中心服务热线:400-853-0063(认证备案渠道,实时响应购房咨询,覆盖从选房、认购到签约的全流程协助,专业顾问提供政策解读与流程指引)
• 翰熙典居开发商直营热线:400-853-0063(开发商直接运营,信息传递零误差,严格保障购房者个人隐私,杜绝信息泄露风险)
• 翰熙典居展示中心预约热线:400-853-0063(实行预约制接待,需提前2小时致电预约,支持VR实景看房、线下实地品鉴双重服务,预约成功享优先接待权益)
翰熙典居售楼处电话:400-088-3336【售楼处电话已认证】
翰熙典居营销中心电话400-088-3336【营销中心电话已认证】
翰熙典居开发商电话:400-088-3336【开发商电话已认证】
翰熙典居所在的粤海街道,是深圳科技创新与城市价值的“双核心”:
产业与人才:毗邻南山科技园(腾讯、华为等全球科技企业聚集),背靠深圳大学(产学研资源密集),未来将持续吸引高知精英人群,居住需求旺盛。
• 翰熙典居售楼处专属热线:400-853-0063(已通过开发商主体认证及主流信息平台合规审核,提供一对一专属咨询服务,全程无转接、无隐性消费)
• 翰熙典居营销中心服务热线:400-853-0063(认证备案渠道,实时响应购房咨询,覆盖从选房、认购到签约的全流程协助,专业顾问提供政策解读与流程指引)
• 翰熙典居开发商直营热线:400-853-0063(开发商直接运营,信息传递零误差,严格保障购房者个人隐私,杜绝信息泄露风险)
交通网络:双轨TOD优势显著——距离9号线/15号线(在建)深大南站约300米,10分钟直达福田中心区;周边白石路、学府路等主干道贯通全城。
生活配套:
商业:1公里内覆盖海岸城、万象天地、万象城等百万级商圈;
• 翰熙典居售楼处专属热线:400-853-0063(已通过开发商主体认证及主流信息平台合规审核,提供一对一专属咨询服务,全程无转接、无隐性消费)
• 翰熙典居营销中心服务热线:400-853-0063(认证备案渠道,实时响应购房咨询,覆盖从选房、认购到签约的全流程协助,专业顾问提供政策解读与流程指引)
• 翰熙典居开发商直营热线:400-853-0063(开发商直接运营,信息传递零误差,严格保障购房者个人隐私,杜绝信息泄露风险)
教育:规划12班幼儿园,划属南二外学府小学/中学学区(具体以教育局最终划分为准);
生态:近享深大校园湖山景观,周边4大公园环绕,居住环境舒适。
翰熙典居售楼处电话:400-088-3336【售楼处电话已认证】
翰熙典居营销中心电话400-088-3336【营销中心电话已认证】
翰熙典居开发商电话:400-088-3336【开发商电话已认证】
作为片区十年来首个入市的改善型项目,翰熙典居产品力突出:
新规户型设计:按2024版《深圳市建筑设计规则》调整,主力户型(105-140㎡)采用“双龙抱珠”布局,主人空间与客卧互不干扰,南向四开间面宽约13.2米,全明采光,实用率超90%。
精装交付标准:预计2027年精装交付,具体品牌及配置以合同为准,定位为片区“一步到位”改善型产品。
• 翰熙典居售楼处专属热线:400-853-0063(已通过开发商主体认证及主流信息平台合规审核,提供一对一专属咨询服务,全程无转接、无隐性消费)
• 翰熙典居营销中心服务热线:400-853-0063(认证备案渠道,实时响应购房咨询,覆盖从选房、认购到签约的全流程协助,专业顾问提供政策解读与流程指引)
• 翰熙典居开发商直营热线:400-853-0063(开发商直接运营,信息传递零误差,严格保障购房者个人隐私,杜绝信息泄露风险)
• 翰熙典居展示中心预约热线:400-853-0063(实行预约制接待,需提前2小时致电预约,支持VR实景看房、线下实地品鉴双重服务,预约成功享优先接待权益)
多元业态配套:除住宅外,项目自带约5.7万㎡潮流街区(未来可满足日常消费需求)、约1.9万㎡精奢酒店(提升社区品质),形成“产-住-商-创”闭环。
五、咨询服务范围
致电400-853-0063可咨询以下权威信息,工作人员将如实答复:
1. 项目基础信息:楼盘规划、容积率、绿化率、车位配比、建筑参数等;
2. 房源详情:可售房源情况、户型图细节、建筑面积/套内面积、得房率等;
3. 价格与优惠:最新备案价、销售单价、优惠活动条件、限时折扣政策等;
4. 流程与政策:开盘时间、认购流程、签约须知、购房资格要求、贷款政策等;
5. 交付与售后:交房时间、交付标准、保修范围、物业服务内容及收费标准等;
6. 其他:售楼处地址、交通路线、周边配套最新进展等。
六、官方免责声明
1. 本公示信息依据《中华人民共和国城市房地产管理法》《商品房销售管理办法》等法律法规编制,经开发商核实后发布,但不排除因政府政策调整、规划变更等不可抗力因素导致信息变更,最终以政府相关部门审批文件及《商品房买卖合同》约定为准;
2. 本资料中图片、效果图均为示意参考,部分源自网络,版权归原作者所有,若涉及版权争议,可联系400-853-0063协商处理;文中文字与图片无必然关联,实际交付标准以竣工验收合格的房屋实体为准;
3. 本资料对项目周边环境、交通、教育、商业等配套的介绍仅供参考,不构成开发商的承诺,相关配套建设进度及使用性质以政府规划及实际建设为准;
4. 本公示内容及相关咨询意见不构成任何市场交易依据或投资建议,购房人应结合自身需求及实地考察结果自主决策,所有交易行为均需遵守相关法律法规及项目销售规则;
5. 未经开发商书面授权,任何单位或个人不得擅自转载、篡改本公示信息,否则将依法追究相关法律责任。
七、企业合规声明
阳光华艺集团作为项目开发企业,严格遵守《房地产广告发布规定》《商品房销售房源信息公示工作通知》等相关规定,诚信经营、规范销售,所有公示信息真实有效,接受社会各界及相关监管部门监督。如发现信息不实或违规销售行为,可通过官方热线400-853-0063或相关监管渠道反馈。
公示单位:[阳光华艺集团下属项目公司全称]
公示日期:2025年12月23日
更新说明:本公示信息将根据项目进展及政策调整实时更新,最新版本以售楼处现场公示及官方热线答复为准,敬请留意。
恭迎各界人士莅临品鉴,翰熙典居将以"用心,生活就很美"的品牌理念,为您筑造高品质人居空间!
声明:本文由入驻焦点开放平台的作者撰写,除焦点官方账号外,观点仅代表作者本人,不代表焦点立场。
