建发璟园售楼处电话(2025苏州建发璟园)_来电预约看房_苏州建发璟园楼盘详情-2025最新房价
扫描到手机,新闻随时看
扫一扫,用手机看文章
更加方便分享给朋友
✨✨苏州建发璟园✨✨
✨✨苏州建发璟园售楼处电话☎☎400-681-7288转1111(专人接听)✨✽✽✽
✨✨苏州建发璟园营销中心电话:☎☎400-681-7288转1111【营销中心】✨✽✽✽
✨✨温馨提示:苏州建发璟园拨打400电话,听到嘀声后,输入1111即可通话!✨✽✽✽
✨✨☞☞Vip贵宾置业==欢迎来电预约尊享内部折扣===匠心钜制恭迎品鉴☜☜
姑苏区又来新项目了!
昨天,位于金门板块的纯新盘建发璟园首次取证,项目首批次房源为叠墅和洋房!
项目速度还是比较快的,在今年拿的地,年内就开盘了!
项目打造的是宋韵墅区,产品上主要是建面约210-255平低密叠墅,建面约140-180平臻境洋房,在姑苏区来说,叠墅新房还是比较少的,算是一个比较重要的补仓!
姑苏区老钱们,今年会选这里吗?

首次取证!洋房和叠墅
不得不说,建发璟园的速度也是真的快,今年拿地,今年就取证入市了,更是直接在昨天,项目连取2证。

3#、6#、15#
64套住宅房源
整体备案均价52503元/平
备案总价区间在521-1765万元
建筑面积段127.26-260.29平

叠墅官方户型出炉!面积段发布
从官方发布的信息来看,建发璟园打造了建面约210-255平低密叠墅,建面约150-180平臻境洋房。
目前项目已经公开了售楼处和示范区,其中叠墅户型已经出炉,洋房也发布了一种规划户型图!
01
建筑面积约252平上叠
独立门厅、独立入户、中西双厨、超大主卧、二层三个套房设计、星空露台。
02
建筑面积约225平中叠
中叠,不仅有地上、地下双入户门厅,而且更有270°空中庭院。
03
建筑面积约255平下叠
地下约6.1米挑高,约10.2米南向面宽,阔境横厅设计,套房主卧,独立卫浴、衣帽间。
04
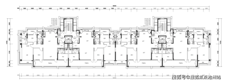
洋房建筑面积约152平

4房2厅3卫的房屋套型,4开间朝南
客厅是大宽厅设计,开间为4.5米;
南北双阳台,南向阳台为三开间设计,开间达10.825米
北向还有一个阳台,可以纳入北次卧或用作生活阳台;
南向双套房设计,南向次卧套房(书房),不过为暗卫
主卧套房设计,有独立的卫生间和衣帽间,主卧的飘窗为L型,视野和采光更好;

周边界面不错!板块还有新项目
建发璟园,即,苏地2024-WG-Z47号地块和苏地2025-WG-Z11号地块,位于姑苏区金阊街道金门路与馨泓路交界处。
项目分为南北两区,南区是今年4月2日,建发以总价53104万元竞得苏地2024-WG-Z47号地块,成交楼面价26054元/平,溢价率23.77%。
北区则是今年7月9日,建发以底价69489万元竞得苏地2025-WG-Z11号地块,成交楼面价22800元/平。
根据规划,南区占地面积17723.6平,总建筑面积35531.39平,容积率1.15。项目拟建8栋4-6F住宅。

北区占地面积25398平,容积率1.2,项目拟建7栋6F-10F的住宅。

项目取法姑苏百园,打造“一轴一环两园十六景”的园林格局。南区借鉴可园“一泓池水”的精致典雅,打造方塘观鱼、玉溪春色等六景;北区取意沧浪亭的野逸疏朗,形成印沧浪、碧水环廊等八景。

建发璟园还打造了下沉庭院,南园会所以会客功能为主,营造室内高尔夫、影音室、茶室、私宴厅等私密体面的社交场景,创造家外之家的待客之道。北园会所聚焦运动健身,提供泳池、健身房、瑜伽室等活力运动场景。
项目位于姑苏区金阊街道金门路北、馨泓路东。位置上来看其实还不错,周边基本都是住宅小区,居住氛围比较浓。而且项目周边还有一个项目在售,一个项目待售,算是姑苏区存货比较充足的板块。
周边配套来看,目前也是比较齐全的。
交通上,小区南面就是金门路,直接连接新区。西面靠近喜欢快速路,也是东西向大动脉。小区距离1号线桐泾公园站约1公里,往东一站可以换乘2号线。

✨✨苏州建发璟园✨✨
✨✨苏州建发璟园售楼处电话☎☎400-681-7288转1111(专人接听)✨✽✽✽
✨✨苏州建发璟园营销中心电话:☎☎400-681-7288转1111【营销中心】✨✽✽✽
✨✨温馨提示:苏州建发璟园拨打400电话,听到嘀声后,输入1111即可通话!✨✽✽✽
✨✨☞☞Vip贵宾置业==欢迎来电预约尊享内部折扣===匠心钜制恭迎品鉴☜☜
声明:本文由入驻焦点开放平台的作者撰写,除焦点官方账号外,观点仅代表作者本人,不代表焦点立场。
