辟谣!「鑫耀中城」从未收取任何“茶水费”
扫描到手机,新闻随时看
扫一扫,用手机看文章
更加方便分享给朋友


鑫耀中城过会了,却一直没有认筹的消息。很多粉丝反映,售楼处没有开放,也联系不上销售。不过应该快了!
至于茶水费,这年头肯定不存在这样的土壤的,还是洗洗睡吧!
徐汇内中环 漕河泾开发区
12号线桂林公园站旁
「鑫耀中城」二期
预计即将加推
主力户型为建面约99-159㎡3-4房
这次的二期,位于项目的东侧共有四幢楼栋。
鑫耀中城一期于2020年8月28日开盘,备案均价:10.33万/㎡,一期总房源344套,却迎来了1107组认筹摇号,可谓是一房难求,千人陪跑。一期没有买到的大咖们,可以关注起来了!

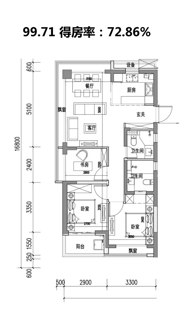
1 精装交付,户型图曝光
主力户型为建面约99-159㎡3-4房,户型图已经曝光。得房率是中等水平,户型还算不错。


社区内以“新加坡邻里中心”为借鉴而设计了国际邻里中心,由国际大师隈研吾亲自操刀设计。
这个邻里中心的左侧,已规划为可容纳近800个座位的专业中大型剧场,开心麻花已签约进驻,将在2022年开幕。
国际邻里中心文化地标效果图
同时,邻里中心将与建面约8万㎡的商业综合体无界融合,共同构成全新城市综合体,涵盖了商业、文化建筑地标、全民运动一站式体验空间等功能。

国际邻里中心无界融合商业综合体效果图

苍梧路街区效果图


室内效果图

外立面效果图
2 准TOD,自带商业配套
鑫耀中城地处内中环,距离徐家汇约3.5公里,虹桥枢纽约8.5公里。
除了项目本身规划大型商业综合体,鑫耀中城二期周边配套更是完善且成熟。
交通方面,项目紧靠12号线桂林公园站、15号线(在建)桂林公园站,北侧还有9号线桂林路站,属于3轨交汇!无论是公共交通还是自驾出行,毫无压力。

商业方面,虹梅国际广场、沃尔玛、中环国际广场、圣诺亚广场等商业体均在项目周边,满足一站式购物娱乐需求。

医疗方面,周边有上海市第八人民医院、第六人民医院等医疗资源,为健康保驾护航。
教育方面,徐汇一向以教育资源丰富闻名,而项目距田林小学、田林中学仅600米左右;上师大附属小学、上师大附属中学、世界外国语中学等也在项目周边,学府气息浓厚。
完善的周边配套,再加上约65万方的理想街区正在逐步落成,鑫耀中城二期,即将开启大城生活,值得期待!
3 项目信息
鑫耀中城这个地块,是2018年8月1日由万科(占60%)联合华鑫98.6亿拍得。
地块由5幅小地块组成,其中xh241A-01、xh241B-01、xh241C-01地块中含有住宅部分,其他面积为商办属性用地。总住宅套数不少于1200套。
根据规划,这个综合体项目共有21万㎡办公、8.1万㎡商业、10.55万㎡住宅(其中包含3万㎡租赁住宅及5000㎡保障房)、4.5万㎡的体育文化养老设施(即现在的邻里汇),合计44万㎡。

当然,如此庞大的综合体项目,能承办的企业并不多。
这个项目是由四家头部房企联合打造,他们分别是华鑫置业、万科、香港置地和徐汇城新。

华鑫置业,是上海仪电旗下的不动产开发平台,上海仪电集团就位于漕河泾开发区,想必华鑫对漕河泾是相当熟悉的。
4 价格
在众多条件的加持下,鑫耀中城本期均价只有10.45万/㎡,着实有些意料之外,也难怪开盘就受热捧日光。

区位图
这样的价格,在这样的地段,外加上配套,的确不算贵。
———————— END ————————
声明:本文由入驻焦点开放平台的作者撰写,除焦点官方账号外,观点仅代表作者本人,不代表焦点立场。
