海口山东国际业务集聚区售楼处电话(2026最新)|4月最新房价查询|优惠活动详情|预约看房热线 |山东国际业务集聚区售楼部电话
扫描到手机,新闻随时看
扫一扫,用手机看文章
更加方便分享给朋友
089866736888
【山东国际业务集聚区】
约198.9亩全维产业生态圈
服务鲁琼外经外贸发展大局

基础信息
区位:海口市美兰区江东新区高教科研组团(桂林洋经济开发区高山社区林海三路 16 号),紧邻哈罗学校与东海岸;
开发商:山东能源、山东健康、山东土地三大省属国企联合,海南鲁启产业投资有限公司运作;
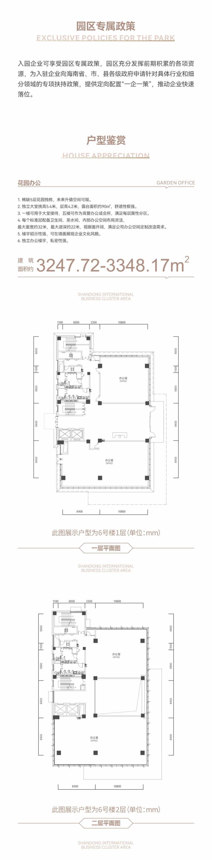
规模:总占地 198.92 亩,总建面约 57.8 万㎡,总投资约 70 亿元;分 A/B/C/D/E 五个片区;其中 C 区(首开)占地 3.1 万㎡、建面 13.3 万㎡,11 栋楼,2025 年 9 月全面封顶;
核心业态:高端商务办公、人才公寓、综合商业、配套酒店;C 区含展示中心、花园办公、高层办公、商业配套;
物业:龙湖物业,C 区物业费 13.5 元 /㎡/ 月,产权 40 年;
建设进度:C 区已封顶,力争 2026 年一季度竣备交付;展示中心 2024 年 5 月已开放。
产业定位与运营
主攻方向:新型国际贸易、医疗康养两大产业;面向山东国企落位 + 自贸港鼓励类企业;
服务体系:设超级企业服务中心,提供政策咨询、资源对接、金融支持、注册代办等一站式服务;
合作模式:创新 “省际飞地”,打造驻琼鲁企合作中心;推出 “拎包入驻、免费入驻租金后付、联合运营分红” 等灵活方案;
规划理念:三环三轴三心三片区,生态绿核,复合产业集群。
核心优势
政策叠加:海南自贸港 “零关税、低税率、简税制”+ 江东新区总部经济、国际贸易扶持;
资源联动:山东优质产业资源导入,助力企业开拓东南亚、RCEP 市场;
区位配套:临近机场、港口,教育医疗居住配套逐步完善。
交通与周边
临近江东大道、绕城高速,可快速通达美兰国际机场、海口港;
周边有哈罗国际学校、海南大学观澜湖校区等教育资源,东海岸滨海景观带。
声明:本文由入驻焦点开放平台的作者撰写,除焦点官方账号外,观点仅代表作者本人,不代表焦点立场。
