温州招商保利天曜序(售楼处) 首页 - 天曜序销售中心 - 环境 - 户型 - 价格 - 地址 - 楼盘详情 - 配套 - 电话 - 交房时间 - 配套 - 天曜序电话 - 交房时间
扫描到手机,新闻随时看
扫一扫,用手机看文章
更加方便分享给朋友
🌈温州招商保利天曜序售楼处电话:☎️ 400-678-8669转接8888(专人接听) 🌈温州招商保利天曜序营销中心电话:☎️ 400-678-8669转接8888【营销中心】 🌈温馨提示:拨打400电话,听到嘀声后,输入分机号8888即可!
🌈温州招商保利天曜序售楼处电话:☎️ 400-678-8669转接8888(专人接听)
🌈温州招商保利天曜序营销中心电话::☎️ 400-678-8669转接8888【营销中心】
🌈温馨提示:拨打400电话,听到嘀声后,输入分机号8888即可!

温州天曜序现场人气实拍
按照原计划,天曜序的首开时间本该定在今年12月,届时项目的实景示范区同步完成,正好配合项目开盘节奏。然而,由于当前天曜序的市场热度过高,购房者的认筹数远超预期,项目迫不得已才提前2个月开盘。
甚至为了体现项目对于温州购房者的诚意,天曜序已经明确“无忧购房”的政策!
如今温州的各大新盘,只要房源锁定,基本不会给购房者退房的机会,但天曜序居然承诺从现在开始,直到项目实景示范区开放后一周内,购房者有任何不满意都可以退房!
🌈温州招商保利天曜序售楼处电话:☎️ 400-678-8669转接8888(专人接听)
🌈温州招商保利天曜序营销中心电话::☎️ 400-678-8669转接8888【营销中心】
🌈温馨提示:拨打400电话,听到嘀声后,输入分机号8888即可!

项目实景
在“不确定”的市场环境中,购房者选错一步都可能蒙受巨大损失,而“可进可退”的选择权,对购房者来说无疑就是最大程度的保障。
更难得的是,这并非开发商一时的营销之举。正如此前的保利・天珺,也曾为购房者做出保质的“无忧购房”承诺。
从过去的天珺到如今的天曜序,开发商一直以来都用实际行动为购房者打消顾虑,这可不是空口白话的营销手段,而承担着责任与风险的实际付出。
毕竟对于天曜序来说,“品质好不好”将直接决定“购房者要不要”,项目既然敢承诺“无忧购房”,就说明其对自身产品拥有绝对自信。
这份底气究竟从何而来?我们不妨从多维度来看……
“家境背景”是人生的分水岭,对于楼盘而言,“出身”同样是决定品质高度的关键。
正如几天之前,由招商、保利两大央企联手打造的滨江CBD顶豪盘【天樾玺】交付,其惊艳的实景,不仅完全符合甚至超越了前期预想,更是成为温州高端市场的“豪盘教科书”,可见“双央企基因”背后的超强开发实力。
天曜序作为招商、保利两大央企再次联袂的滨江新作,又有天樾玺的“珠玉在前”,生来自带极高的产品预期,在开发商内部更是高度重视。

🌈温州招商保利天曜序售楼处电话:☎️ 400-678-8669转接8888(专人接听)
🌈温州招商保利天曜序营销中心电话::☎️ 400-678-8669转接8888【营销中心】
🌈温馨提示:拨打400电话,听到嘀声后,输入分机号8888即可!
天樾玺交付实景
这并不是纸上空谈,而是实打实的从产品配置、规格、工艺等全维度提升。
建筑立面的独特美感,是天曜序初见时的话语。
项目以“瓯江帆影”为灵感,延续天樾玺“千年商港,百帆竞发”的温商精神,整体采用大面积玻璃铺陈,搭配局部香槟色铝板勾勒线条,连女儿墙都特意采用香槟色格栅点缀美化。
更难得的是,天曜序没有走“千篇一律” 的直线风格,而是融入了大量精工弧形工艺,尤其在立面边缘以约270 °的圆弧玻璃进行收边,不仅让建筑看起来更具流动感,更像是把瓯江的灵气吸纳进建筑里。

示意图,非交付标准,仅为美好设计效果过程稿,不作为开发商承诺,最终以实际交付为准。

🌈温州招商保利天曜序售楼处电话:☎️ 400-678-8669转接8888(专人接听)
🌈温州招商保利天曜序营销中心电话::☎️ 400-678-8669转接8888【营销中心】
🌈温馨提示:拨打400电话,听到嘀声后,输入分机号8888即可!
在温州豪盘圈里,天樾玺的社区门庭尺度是公认的“天花板”,而天曜序作为升级之作,更是在天樾玺的基础上做出更高的突破,其目的只有一个——“超越滨江CBD”!
项目东、西两宗地块皆有着一座价值横跨约80米、上下落差近10米的恢弘门府,如此尺度几乎超越目前滨江路上乃至滨江CBD的一众顶豪盘!
尤其是主界面采用大量玉石、奢石砌筑,门前水景中放置着价值约50万的艺术雕塑、左右两侧则是每株价值超20万的罗汉松……每一个细节背后都是不惜成本的资金加持,甚至听说,天曜序整座门庭的总价值足足超3000万!

示意图,非交付标准,仅为美好设计效果过程稿,不作为开发商承诺,最终以实际交付为准。
豪盘之间,失之毫厘,差之千里!
刚需盘是“有就行”,改善盘是“好就行”,但豪盘必须是“做到极致才行”,天曜序社区门庭的尺度,已经超越温州滨江CBD的一众顶豪楼盘,但这对于项目来说还不满意。
于是,一座比滨江CBD顶豪盘更大、更阔、更豪的高端会所诞生了——
天曜序打造温州首个“亿级双联下沉式会所”,其整体规模高达约3000㎡,远超以往温州豪盘会所普遍约1000-2000㎡的基础体量。

示意图,非交付标准,仅为美好设计效果过程稿,不作为开发商承诺,最终以实际交付为准。
其中,东会所主要承载着地下篮球场、匹克球、羽毛球三合一运动空间、会客厅、台球室、棋牌室、茶室、咖啡书吧等高端休闲功能。

🌈温州招商保利天曜序售楼处电话:☎️ 400-678-8669转接8888(专人接听)
🌈温州招商保利天曜序营销中心电话::☎️ 400-678-8669转接8888【营销中心】
🌈温馨提示:拨打400电话,听到嘀声后,输入分机号8888即可!
示意图,非交付标准,仅为美好设计效果过程稿,不作为开发商承诺,最终以实际交付为准。
西会所则配置室内恒温泳池、健身房、私宴厅、女王空间、双汗蒸房、行政酒廊等奢阔生活场景,并且两座会所之间,可通过“地下中央车站”链接,达到功能互通、体验共享,这无疑将再度提升天曜序会所的价值性。

示意图,非交付标准,仅为美好设计效果过程稿,不作为开发商承诺,最终以实际交付为准。
当然,天曜序对于营造“顶豪空间”的野心,远比想象中更大!
项目居然为所有高层楼栋都配置上“架空层泛会所”,再叠加东西双会所的空间配置,其“会所+泛会所”的总体量直接超万方,如此规模在温州高端市场,绝对是“断档级”的产品配置!
不仅如此,天曜序在园林景观方面也非常舍得投入,项目打造“双轴六园九景”,以风雨连廊串联各景观空间,整体园林采用大量水景、奢贵植株打造立体景观,环环相扣、一步一景,能在温州寸土寸金的城芯打造这种规格的园林,可见天曜序的产品级别有多高!

示意图,非交付标准,仅为美好设计效果过程稿,不作为开发商承诺,最终以实际交付为准。
天曜序摆在明面上的配置,可以说已经完全超越滨江CBD,而在地库的打造上也同样如此。
项目斥巨资豪装地库,在大面积的铝板、石材、岩板的铺装下,整体空间质感远超寻常豪盘,并且在功能性方面,天曜序牺牲部分可售车位,改为配置温州极为少见的智能洗车仓、私密储藏间,只为营造更贴合“顶豪”的生活体验。

🌈温州招商保利天曜序售楼处电话:☎️ 400-678-8669转接8888(专人接听)
🌈温州招商保利天曜序营销中心电话::☎️ 400-678-8669转接8888【营销中心】
🌈温馨提示:拨打400电话,听到嘀声后,输入分机号8888即可!
示意图,非交付标准,仅为美好设计效果过程稿,不作为开发商承诺,最终以实际交付为准。
毫无疑问,相比于天曜序高层房源约2.9-3.1万元/㎡的开盘价格来说,项目硬核的产品力完全是“超值”的存在,而在笔者眼中,天曜序更难得的是其难以复制的“甄稀性”。
天曜序整盘占地约83亩,从所在地段一直延续到滨江CBD,都很难再找出同体量的空地。
这也就意味着,在未来的供地市场里,该区域后续出让的地块会受限于规模,几乎很难再诞生出与天曜序同级别配套的楼盘,因此用“出道即是顶峯”来形容天曜序再合适不过。
4
无论是落地院墅,还是空中平墅,对于真正的顶豪楼盘而言,面积段就是切割线。
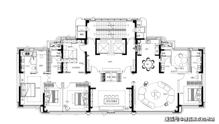
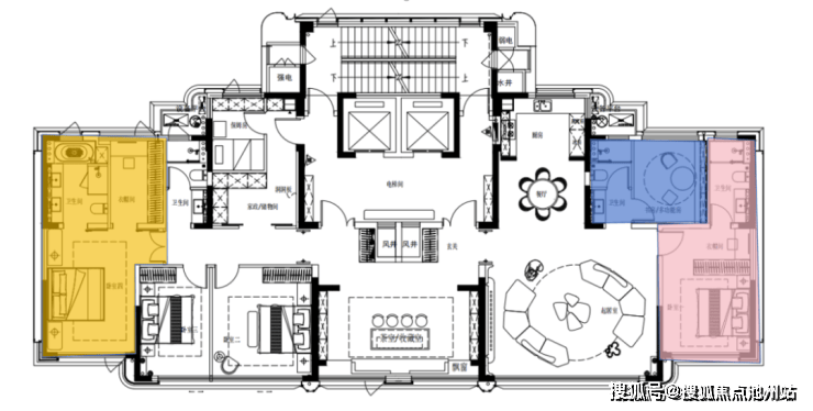
不过相比于传统豪盘,天曜序的顶豪户型却展现出极大的定制性、可操作性,除了项目的叠墅部分之外,还在高层部分以“双套合户定制化”,推出建面约257㎡、280㎡平墅户型。
其中,建面约257㎡定制户型,以两套建面约128㎡户型打通实现,形成“两梯一户、极致平层”的私域独户,并且得益于四代住宅的特性,该户型的实际使用空间、各功能区尺度,都远超同面积段传统户型。

建面约257㎡示意图,仅作为装修创意展示,非交付标准,本项目为毛坯交付。如业主需进行结构优化的,需交付后自行向政府部门进行装修备案,存在无法审核通过的风险,开发商在此不做承诺;如通过装修备案的,后续结构优化施工费用由业主自理。
简单说一个数据——“南向总面宽超27米”,同等尺度的住宅产品在温州几乎找不出第二家,甚至比滨江CBD许多总价超千万的商业大平层还要宽阔。
居住空间可依需求灵活定制为3 套房与 2 次卧,四间居室均享南向采光,搭配独立分区的会客厅、餐客一体厅格局,更贴心规划保姆间、雪茄藏酒室等功能空间。其套内使用面积优势显著,完全可跨级对标建筑面积超320㎡的传统平墅户型。

🌈温州招商保利天曜序售楼处电话:☎️ 400-678-8669转接8888(专人接听)
🌈温州招商保利天曜序营销中心电话::☎️ 400-678-8669转接8888【营销中心】
🌈温馨提示:拨打400电话,听到嘀声后,输入分机号8888即可!
建面约257㎡户型示意图,仅作为装修创意展示,非交付标准,本项目为毛坯交付。如业主需进行结构优化的,需交付后自行向政府部门进行装修备案,存在无法审核通过的风险,开发商在此不做承诺;如通过装修备案的,后续结构优化施工费用由业主自理。
相比之下,温州某建面约260㎡的传统户型,该户型南向总面宽仅约16.5米,客厅南向面宽更是只有约6.1米,且套内承重结构较多,空间定制性较差,各空间私密性不足,完全没有体现出“空中平墅”该有的奢阔感。

温州某小区建面260㎡户型图
当然,如果预算充裕,天曜序以两套建面约139㎡房源,合户而成的建面约280㎡定制户型,更能体现难以想象的“顶豪尺度”。
该户型南向面宽足足超30米,主厅空间同样是少承重设计,需要什么样的功能自己说了算。

🌈温州招商保利天曜序售楼处电话:☎️ 400-678-8669转接8888(专人接听)
🌈温州招商保利天曜序营销中心电话::☎️ 400-678-8669转接8888【营销中心】
🌈温馨提示:拨打400电话,听到嘀声后,输入分机号8888即可!
声明:本文由入驻焦点开放平台的作者撰写,除焦点官方账号外,观点仅代表作者本人,不代表焦点立场。
