最新动态:运达大泽湖售楼处电话→在售面积→房价|最新销售公告|周边配套介绍-运达大泽湖全城热销-运达大泽湖欢迎来电预约!
扫描到手机,新闻随时看
扫一扫,用手机看文章
更加方便分享给朋友
运达大泽湖
运达大泽湖售楼处电话:400-681-7288接通后输入3333【官方网站】
运达大泽湖售楼处地址:400-681-7288接通后输入3333【营销中心】
温馨提示:开发商网上售楼中心〢预约看房【享】专属优惠折扣 项目看房笔记在售户型图丨项目介绍丨最新特价房源丨周边配套丨开发商售楼处电话
运达集团落子河西的首个标杆之作——运达大泽湖,将于本周末迎首开,目前火爆认筹中!
此次下证的是1#、2#、7#、8#、13#,推建面135-296㎡精装住宅,参考价格13000-16500元/㎡,认筹时间6月17日-21日,将于6月22日盛大开盘!
项目正是2023年8月运达联手湖南永通共同摘得的[2023]望城区015号地块,毛坯限价10300元/㎡,折合楼面价约2722元/㎡。
运达大泽湖售楼处电话:400-681-7288接通后输入3333【官方网站】
运达大泽湖售楼处地址:400-681-7288接通后输入3333【营销中心】

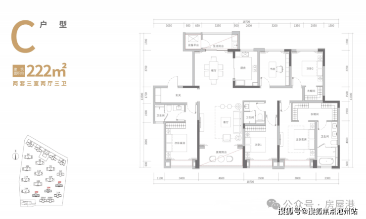
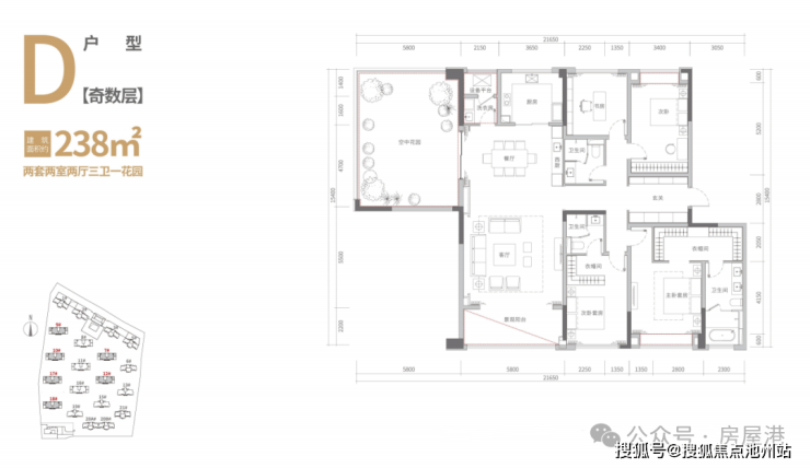
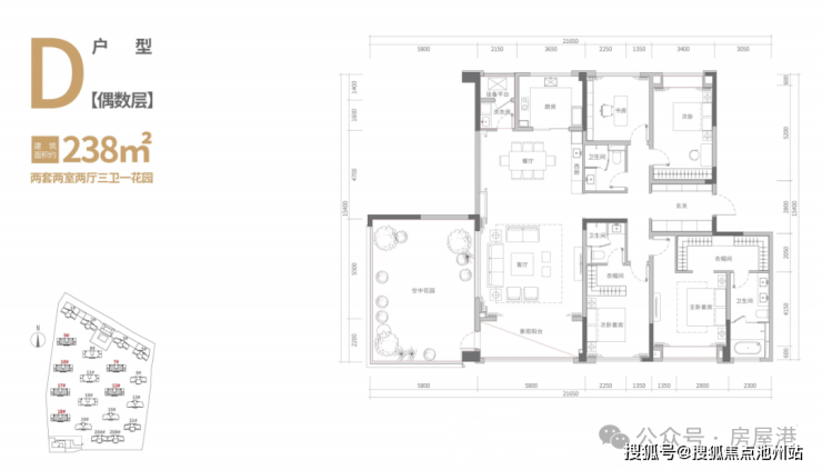
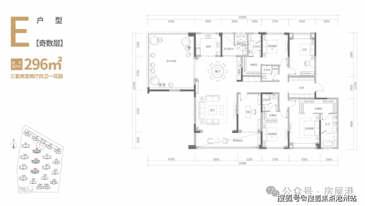
运达大泽湖共规划19栋住宅,包括10栋小高层和9栋原创城市森林花园住宅,小高层户型为建面约135-156-222㎡,原创城市森林花园住宅户型为建面约238-296㎡。
运达大泽湖售楼处电话:400-681-7288接通后输入3333【官方网站】
运达大泽湖售楼处地址:400-681-7288接通后输入3333【营销中心】
具体户型图如下——
小高层户型图:

运达大泽湖售楼处电话:400-681-7288接通后输入3333【官方网站】
运达大泽湖售楼处地址:400-681-7288接通后输入3333【营销中心】

运达大泽湖售楼处电话:400-681-7288接通后输入3333【官方网站】
运达大泽湖售楼处地址:400-681-7288接通后输入3333【营销中心】

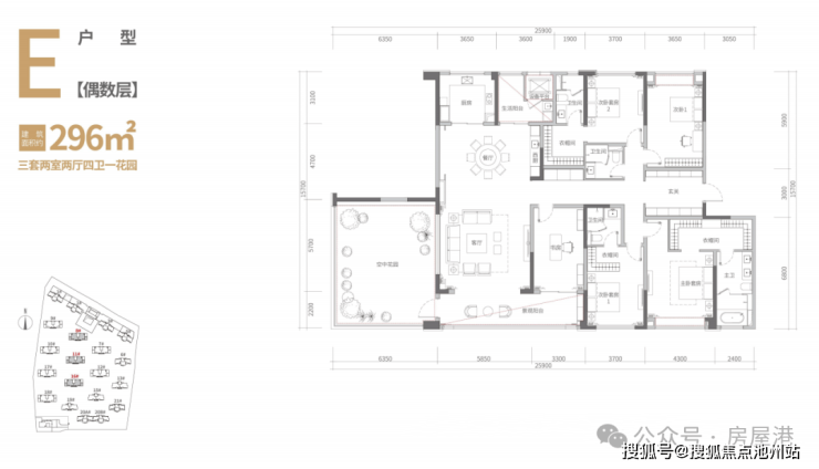
原创城市森林花园住宅户型图:

运达大泽湖售楼处电话:400-681-7288接通后输入3333【官方网站】
运达大泽湖售楼处地址:400-681-7288接通后输入3333【营销中心】

运达大泽湖售楼处电话:400-681-7288接通后输入3333【官方网站】
运达大泽湖售楼处地址:400-681-7288接通后输入3333【营销中心】

运达大泽湖售楼处电话:400-681-7288接通后输入3333【官方网站】
运达大泽湖售楼处地址:400-681-7288接通后输入3333【营销中心】

运达大泽湖售楼处电话:400-681-7288接通后输入3333【官方网站】
运达大泽湖售楼处地址:400-681-7288接通后输入3333【营销中心】
值得注意的是,所有户型皆为新规户型,且均附有赠送面积:
A户型赠送约7.65㎡,B户型赠送约17㎡,C户型赠送约15.1㎡;D户型赠送面积约60.2㎡(其中花园面积约46.1㎡),E户型赠送面积约70.8㎡(其中花园面积约50.7㎡)。
项目位于望城区腾飞路与金星北路交叉口东南角,距地铁4号线北延线(在建)金星路东延线站非常近,毗邻大泽湖湿地公园,南侧有一个教育规划用地,拟建一所36班小学,一路之隔便是长沙市一中大泽湖学校(九年制)。

运达大泽湖
运达大泽湖售楼处电话:400-681-7288接通后输入3333【官方网站】
运达大泽湖售楼处地址:400-681-7288接通后输入3333【营销中心】
温馨提示:开发商网上售楼中心〢预约看房【享】专属优惠折扣 项目看房笔记在售户型图丨项目介绍丨最新特价房源丨周边配套丨开发商售楼处电话
声明:本文由入驻焦点开放平台的作者撰写,除焦点官方账号外,观点仅代表作者本人,不代表焦点立场。
