万科大都会NAVA售楼处电话是多少?售楼处火了位置及详情?
扫描到手机,新闻随时看
扫一扫,用手机看文章
更加方便分享给朋友
◆◆北京朝阳区【万科大都会NAVA】
☎☎℡TEL:400—100—1299转接9999【售楼中心】
★★网上售楼中心——欢迎来电咨询〢——匠心钜制恭迎品鉴!
◆◆——网上售楼中心—— 欢迎来电预约尊享Vip专业置业顾问讲解!
项目基本信息
项目定位:城市核心地段·北中轴·大师执笔·品牌臻装·顶豪住居·世界私产·少有70年奢华公寓、朝阳北四环上的艺术代表作、万科大都会NAVA是让·努维尔在中国的排名前列人居作品、也是高级普利兹克奖大师在北京少有的居住作品
项目位置:北京市朝阳区北苑路186号
项目开发:万科地产集团
占地面积:9000平米
建筑面积:17600平米
产权年限:70年产权公寓
社区规模:共126户
项目总高:总高20层
产品层高:层高3.5米
交房时间:2022年9月30日
交房标准:国际一线品牌精装
面积区间:104平米到267平米
总价区间:800万到4000万左右
梯户比例:四梯九户结构
物业管理:万科物业管理
社区配套:1层到5层为商业、6层到19层为70年公寓、20层为高端会所配套
车位配比:1:1.5(车位充足)
供水供电:民水民电有燃气(小户无燃气)
供暖方式:市政集中供暖
容积率:3.80
绿化率:34%
项目区位图
项目效果图
项目实景图
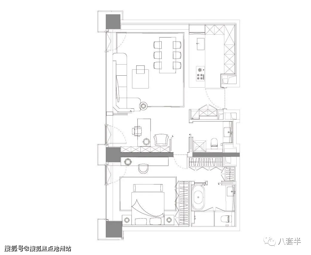
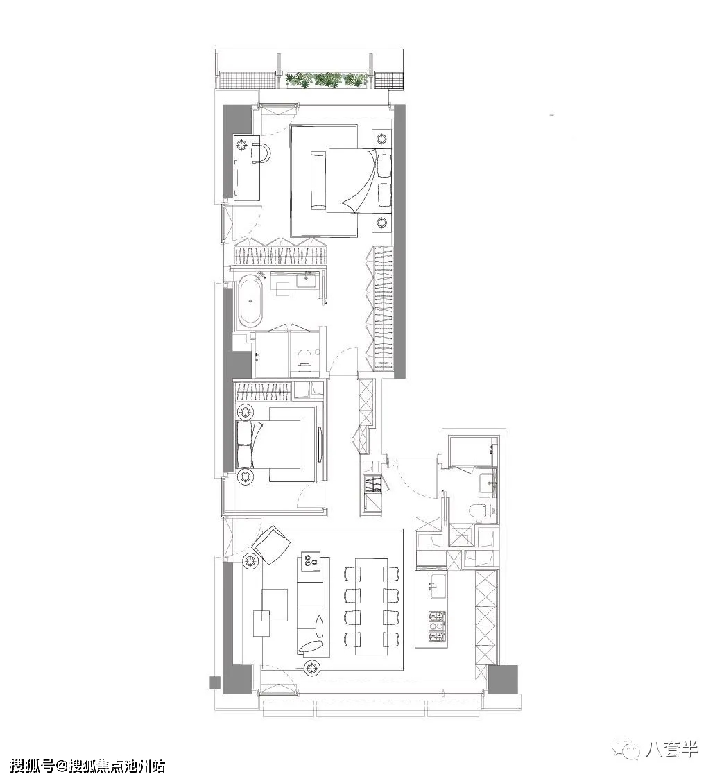
在售产品信息(U户型)
在售产品信息(F户型)
在售产品信息(T户型)
样板间实景
项目配套信息和优势卖点
高标建造:鸟巢之畔、卢浮宫设计师国际大师让·努维尔Jean Nouvel、亲笔设计国家美术馆新馆及大都会NAVA、未来高级艺术在此交汇、打造地标人居作品、大都会NAVA创新打造第四代住宅建筑—立面森林绿化覆盖、将平面花园延伸至建筑立面、在约9000㎡土地上实现约10000㎡绿化、造就城市超级绿肺、让建筑在自然中生长
核心区位:万科大都会NAVA南侧紧邻北四环、国家体育场鸟巢正东1.5公里、东侧紧邻的北苑路、也是一条繁华的城市主干道、距5号线惠新西街北口站600米、出行很方便、占据亚奥板块的核心位置、意味着业主们住在这里、可以坐享北京这座城市先进的配套资源:鸟巢、水立方、奥体中心、国家会议中心、国家美术馆等一系列围绕着中轴线坐落的高级地标建筑
交通配套:京藏高速、京承高速、北四环、北苑路、地铁5、8、10、15号线
商业配套:亚奥商圈、望京商圈、燕莎商圈、另外项目自身拥有顶层SKY CLUB等高端配套、以及对望奥森的空中健身房
休闲娱乐:奥林匹克公园、奥利匹克森林公园、北京鸿华国际高尔夫球场、北辰高尔夫两大球场
医疗配套:中国航空工业中心医院、北京藏医院、慈铭奥亚健康管理医院、劲松口腔、亚运村医院、大屯医院等等
◆◆北京朝阳区【万科大都会NAVA】
☎☎℡TEL:400—100—1299转接9999【售楼中心】
★★网上售楼中心——欢迎来电咨询〢——匠心钜制恭迎品鉴!
◆◆——网上售楼中心—— 欢迎来电预约尊享Vip专业置业顾问讲解!
声明:本文由入驻焦点开放平台的作者撰写,除焦点官方账号外,观点仅代表作者本人,不代表焦点立场。
