尚景天地售楼处电话丨尚景天地开发商-户型图-属于什么档次?尚景天地房价-可以买吗?—宝山焦点看房
扫描到手机,新闻随时看
扫一扫,用手机看文章
更加方便分享给朋友
上海宝山尚景天地售楼处电话☎📞📱:400-000-0460转8888
我们以客户为中心,用心服务,只为让您拥有一个满意的家。
温馨提示:来访需提前两小时预约,以免直接参观无销售接待!
交通方面,步行900米到达3号线殷高西路地铁站,乘坐1站到达长江南路站便可换乘18号线;未来还有规划在建中的19号线,将在江杨南路设立站点。自驾5分钟内到达逸仙高架路,10分钟可上内环与中环。人民广场、陆家嘴、静安寺、徐家汇等上海核心商圈,30分钟内均可达到。
商业方面,驱车15分钟以内便可到达上海著名的大宁商圈、五角场商圈以及虹口足球场商圈,这里有久光中心、合生汇、凯德龙之梦这些重量级的购物中心,享受区域内最成熟商业配套。
医疗方面,二级三级医院有上海第四人民医院和长海医院等坐镇。
教育方面,上海市高境第一中学、上海交通大学附属中学等初高中;上海市宝山区高境科创实验小学、上海市教育学会宝山实验学校、江湾中心小学等梯队小学均相聚在此。
人文资源,集体育运动、文化艺术、配套商业于一身的三邻桥体育文化园。
【项目基本信息】
【名称】尚景天地
【板块】高境
【地址】殷高西路518号
【类型】商业
【产权】50年
【竣工日期】2008年
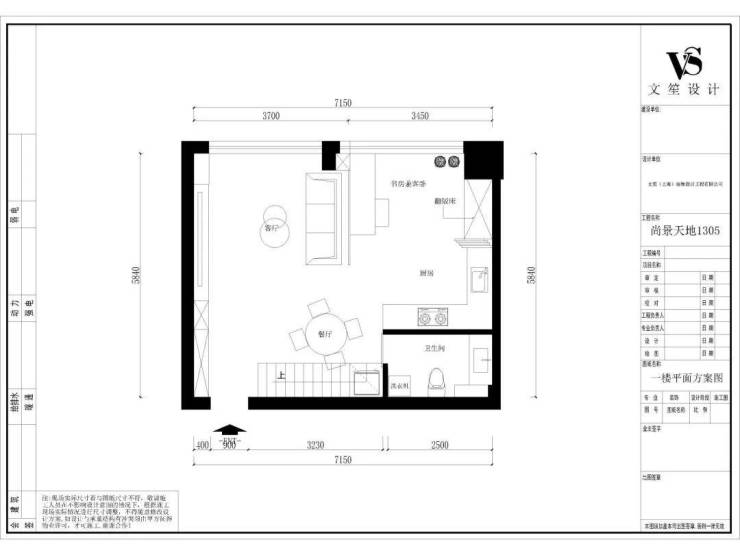
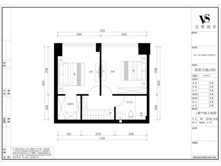
【建面】复式57-77㎡户型
【层高】5.6米
【年限】2004年-2054年
【总高】16层
【得房率】140%
【开发商】上海斯考特房地产开发有限公司
【物业】上海商务中心物业
【物业费】4.8元/平/月
【停车费】地上400/月 地下500/月
【水/电费】水:5.4元/吨 电:1.2元/度
【梯户比】:3梯14户
【首付比例】:8成
【交房标准】:硬装、软装、家具家电全配
项目户型图
样板间效果图
上海宝山尚景天地售楼处电话☎📞📱:400-000-0460转8888
我们以客户为中心,用心服务,只为让您拥有一个满意的家。
温馨提示:来访需提前两小时预约,以免直接参观无销售接待!
声明:本文由入驻焦点开放平台的作者撰写,除焦点官方账号外,观点仅代表作者本人,不代表焦点立场。
