华侨城新玺售楼处(华侨城新玺)2025-首页网站-华侨城新玺营销中心欢迎您-楼盘详情-最新价格-户型图-容积率@最新售楼处中心
扫描到手机,新闻随时看
扫一扫,用手机看文章
更加方便分享给朋友
在深圳湾这片豪宅聚集地,深圳湾一号、恒裕深圳湾与华侨城新玺并列为三大顶级豪宅。而在这其中,华侨城新玺以其独特的魅力脱颖而出,成为唯一提供200平米以上纯大户型的豪宅项目,堪称性价比之王!
华侨城新玺项目位于深圳市南山区蛇口街道南端,南临深圳湾,与香港元朗隔海相望。该项目由深圳市华侨城新玺发展有限公司开发,分为两期开发,主要由三栋高层建筑组成。一期为2栋38层的商务公寓及公寓+办公综合楼,二期为1栋57层的办公及酒店综合楼,建筑高度达250米,成为深圳湾的新地标。
<项目基本信息>
占地面积:约2.5万㎡
建筑面积:约28.9万㎡
面积:230-260-350-399-480-630-700㎡
梯户比:3梯2户、3梯1户
物业费:14.8元/㎡
交房:现楼(即买即住)已入伙
开发商:深圳市华侨城新玺发展有限公司
项目地址:深圳市南山区湾厦路1号
寰海标杆之作,定鼎海岸传奇
【品牌】36载华侨城,实力央企的品牌创想
【区域】蛇口联动前海、深圳湾,三大千亿级经济中心叠加发展
【地段】三面环海半岛,深圳湾线绝版地段,成就世界海岸的坐标
【景观】纵览270°海景,15公里滨海长廊上盖,物尽珍藏,与自然无间
【配套】集结湾区首屈一指的文化艺术坐标,高端商业配套环伺,奢享国际都市生活场
【产品】250米地标级超高层,定鼎深湾之作,4m舒阔层高,只此再无
【酒店&商业】一线酒店品牌酒店入驻,立体开放式悦享天地,奢享全优配套
【奢享配套——私密半岛,环海花园】
①首层城市花园,无缝连接15公里滨海长廊
②自带约2.5万㎡峡谷中庭式商业,滨海购物新体验
③高端私密会所、深圳首个悬空无边际海景泳池
休闲与景观
华侨城新玺三面环海,拥有得天独厚的海景资源。项目内部规划有屋顶花园、健身房和SPA等配套设施,为居民提供高品质的休闲体验。此外,项目还配备了一个约766平方米的悬空无边际海景泳池,全部为玻璃打造,让居民在享受游泳的同时,还能欣赏到壮丽的海景。
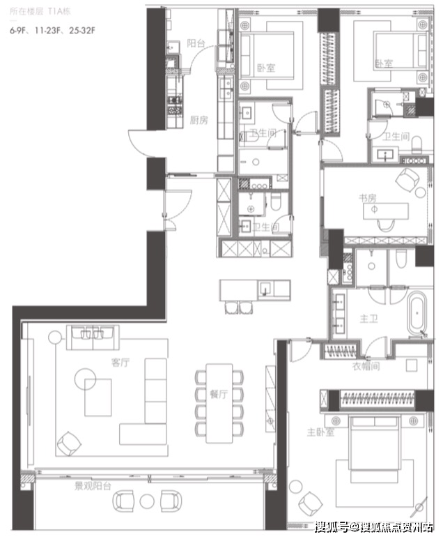
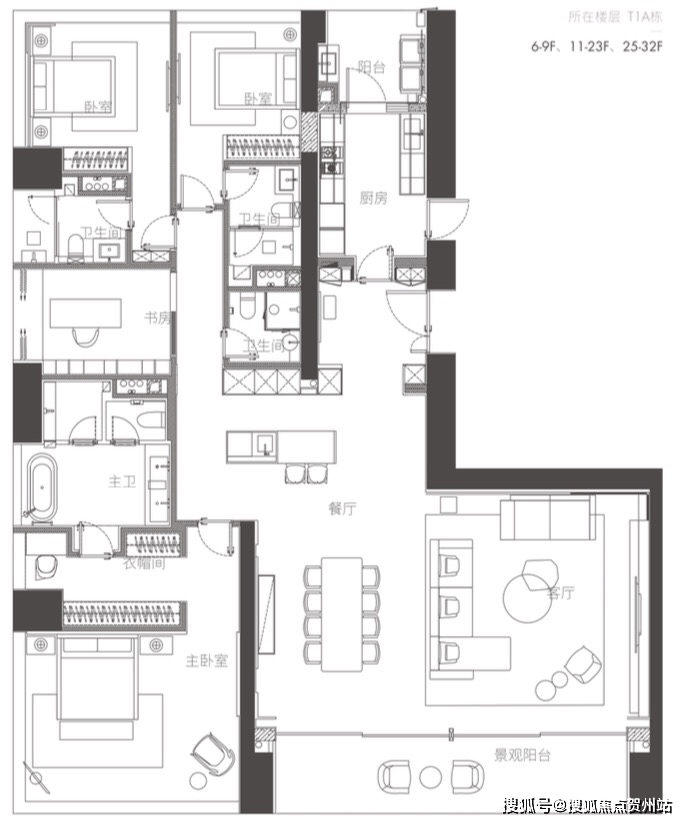
户型鉴赏
【一栋 一、二单元】(6-32层)三梯两户
华侨城新玺提供多种户型选择,满足不同购房者的需求。户型面积范围广泛,从232㎡到700㎡不等。具体户型包括1室1厅1卫、2室2厅2卫、3室2厅3卫、4室3厅5卫、5室3厅6卫以及6室3厅7卫等多种配置。户型设计合理,空间宽敞明亮,注重人性化需求。部分户型还配备了超大阳台和全景落地窗,让居民能够尽享海景和城市美景。
【一栋 一、二单元】
(6-32层)
三梯两户

01户型 西端户 约350㎡ 四房两厅四卫
(01、04镜像对称)
南、西、北,三面景观视野
看深圳湾海景、内海景、城市景观

04户型 东端户 约350㎡ 四房两厅四卫
(01、04镜像对称)
南、东、北,三面景观视野
看深圳湾海景、内海景、城市景观

【一栋 一、二单元】
(6-32层)
三梯两户

01户型 西端户 约350㎡ 四房两厅四卫
(01、04镜像对称)
南、西、北,三面景观视野
看深圳湾海景、内海景、城市景观

04户型 东端户 约350㎡ 四房两厅四卫
(01、04镜像对称)
南、东、北,三面景观视野
看深圳湾海景、内海景、城市景观
蛇口渔港整体规划将被打造成集市民休闲、海洋主题教育、文化艺术交流、高端住宅、旅游娱乐、商业办公等功能于一体,也将成为深圳一张靓丽的城市名片。
【景观—三面环海,收放世界想象】
国际湾区唯一三面环海的海幕豪宅,天赋臻稀,独具匠心的建筑排布与户型设计,最大程度上保留了270°的海景视野。
纵观整个深圳,新玺无疑担当着承载这座城市成为国际滨海门户与世界客厅的使命,城市的精英人物在此汇聚,就等你了!
新玺展示中心 实拍图
西侧太子湾景观&海景
东北侧城市景观
北侧内湾&城市景观
南侧景观
新玺展示中心造景 实拍图
新玺展示中心 实拍图
圳提高住房公积金贷款额度最高额度提高至231万元
财联社3月16日讯,深圳市住房公积金管理委员会3月16日发布《关于〈深圳市住房公积金贷款管理规定〉的补充规定》《关于我市住房公积金利息补贴有关事项的通知》两项文件,两项文件自2025年3月24日起开始实施。
一是调整最高(基础)额度:个人申请最高额度从50万元提高至60万元;家庭申请最高额度从90万元提高至110万元。
二是调整最高额度上浮情形和比例:购买本市首套住房上浮比例从20%提高至40%。多子女家庭购房上浮比例从10%提高至50%。该政策适用于有两个及以上子女的家庭,未成年和成年子女均计算在内。全国范围内有公积金贷款记录的成年子女不计入。新增购买本市保障性住房上浮情形,上浮比例为20%。
同时符合多种上浮情形可累加上浮比例,最高上浮110%,即个人最高可贷126万元,家庭最高可贷231万元。按照往年数据,首套房上浮政策可覆盖90%以上贷款申请职工。
可贷额度提高至账户余额16倍
在前期意见征集阶段,有近10%的意见涉及提高住房公积金可贷额度的账户余额倍数。
为切实回应群众诉求,并充分考量我市住房公积金资金流动性状况,文件将住房公积金贷款可贷额度从原本账户余额的14倍提高至16倍,同时不超过上述最高额度。
可贷额度还需要结合职工的还款能力、还款期限等因素综合计算,最终额度以审批结果为准。
此项调整将进一步保障中低收入家庭、工作年限较短的青年人等住房公积金账户余额相对较少的职工群体,助力他们更多、更快获得住房公积金贷款。
调整最低首付款比例
为充分满足职工刚性和多样化改善性住房需求,重点支持职工购买保障性住房,文件明确,调整我市住房公积金贷款最低首付款比例。
声明:本文由入驻焦点开放平台的作者撰写,除焦点官方账号外,观点仅代表作者本人,不代表焦点立场。
