北京新东坝|中小企业办公室设计范本
扫描到手机,新闻随时看
扫一扫,用手机看文章
更加方便分享给朋友
疫情后,中小企业面临着人力与空间成本等多重压力,办公空间需要更加高效地集成利用,从而提高办公场所单位面积的产值。如何在寸土寸金的北京里,将办公空间价值翻倍 是本案设计的命题。
设计团队梳理平面功能提升空间使用效率和单位经济价值,软装设置多样包容的办公场景,为释放未来办公的新形态提供更多可能。
兼容绿色生态理念和现代工业风的新东坝办公室,以“创新集成办公”作为办公人员的关键需求切入,呈现一种平衡、和谐、充满活力的室内视觉。

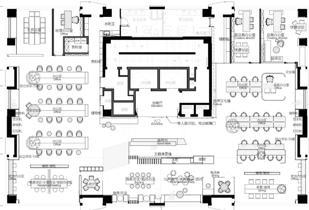
创新集成办公 平面预判功用边值
新东坝办公室面向一些正处于初创阶段、自由职业者等中小型企业的用户,在有限面积內满足思考创意、自由舒适交流、敢于展示个性和企业文化的需要。
以中型平层办公室人均占积12㎡的市场调研结果作基准,设计把需求置入场景象限中运算,逆推区间值得出3个功用层面的平面处理方法。
“均占降维” —— 把需求交叠立体化,将单位人均占面控制在7㎡中;
“功能集约” —— 平面中长线考虑功能区的多面使用,传统办公功能区域分明,功能及分区形成固化动线。茶水间、接待区等公共区域功能单一,会议室使用常有闲置或满员两极情况,面积功能效用仍可优化;
“灵活变用” —— 兼顾使用者心理感受和使用习惯,空间具有灵活自定义的部分,办公组合的多样和可持续发展的功能布置,让面积较大化同时,也能让员工在此产生价值和归属感,经验累积和演变带来个人成长。
创新集成办公 一步N功能
新东坝的新型集成创新办公形态,从入门的排名前列印象前台开始整合优化:加入灵活隔挡创造空间的可独立性,提升办公空间单位商业价值 —— 前台接待开放区增加展示和活动娱乐功能不仅可对内进行企业活动,还可以对外进行功能场地的租用外借。
接待等待区域在前台前侧左右,及后方茶水休闲区均有空间预留,可移动墙体根据企业需求,应实际运用场景随时进行区域分隔。
接待区与正式办公区以通透的蓝色亚克力为分界,办公工位灵活,从小型会议舱/灵感舱、半开放快速讨论区/工位围合、全开放的会议桌/洽谈区,以个体办公为圆心,员工日常动线为半径进行合理设置。
南北两侧均配会议室以及跟工位相连互通的开放讨论区,便于业务部门开展工作。实现办公功能交叉辐射,降低各部分空间的空置率,实现“一步N功能”。
创新集成办公 绿态视野激活创造力
绿色连贯新东坝的每个角落,树与鲜活的颜色无处不在,它们发出清新怡人的光,让人不由得想要大口呼吸。在沁沁绿意与明媚光影下办公,心情自然舒爽伸展。
员工公区整体吐露着轻盈与干净的气质,磨砂质感半透明矮格挡、浅灰、白与木质办公桌,为每个员工提供简约大方的独立工位空间。网型造型灯具连同影印功能区现代风格的指引,又连贯工位主体区域的明净风格。
遵循简约大方的色系排列和开阔舒适的原则,办公桌椅高度、地毯材质拼接、功能区墙体的格挡排布轻盈,为视线提供干净的思考空间。
创意墙的打造是空间软装的主力亮点之一,创意摆件的铺排展示既能让员工进行体验,又能激发员工的创意思维。远近的绿色树冠调节办公日常的紧张节奏,办公环境灵动有活力。
灵感、个性和效率的空间辅助,对于创业初期或创新行业的中小企业必不可少。软装预设工区分为 动漫、影视、新媒体、广告创意 四个部门引领四种年轻鲜明的风格,摆件细节各具特色的区域,调动办公环境节奏氛围,体现部门性格职责。
色块分明、可灵活变换的潮流创新组合墙面、温润的木饰面及绿色,营造年轻现代的办公氛围。
绿植与鲜活的冷暖色彩拼合,使整体视觉视线得到缓冲调整。北京新东坝的硬软装风格,契合时下新型创意办公的需求,释放对新生视野和绩效创造的渴望与期待。
独立办公空间,承袭整体的活跃创意,进行纵向排布接纳自然光照。利用狭长格局开辟小型会议区,总监级及以上级别的沟通因同一水平面变得高效,避免“逆光式谈话”的压抑与距离感。
创新集成办公 给未来以畅想
对于未来办公的场景,北京新东坝以舒适高效为原则,做了软硬两个层面的思考:排名前列是线面模块的穿插关系 及 办公-会议-洽谈-活动 四场景的边界模糊。
第二是软性的考虑,鲜明干净的搭配、多样材质层次各隐性收纳细节功能完成使用体验。潜移默化进行办公行为的动线指引,带来流畅舒适的视线感受。
办公空间自身的可变赋予个人更大的创造和发挥空间,也为背负紧张空间环境成本的中小型企业,撑一口气。
声明:本文由入驻焦点开放平台的作者撰写,除焦点官方账号外,观点仅代表作者本人,不代表焦点立场。
