天创元萃售楼处电话官方认证丨武汉天创元萃营销中心官网最新发布-➢2026武汉天创元萃楼盘百科-销售中心-环境-价格 -地址-楼盘详情-电话-配套-交房时间
扫描到手机,新闻随时看
扫一扫,用手机看文章
更加方便分享给朋友
▶▷武汉天创元萃◀◁✨✨✽✽✽✽
▶▷武汉天创元萃◀◁售楼处电话☎:400-681-7288转1111【售楼处认证】⭐⭐⭐
▶▷武汉天创元萃◀◁售楼处电话☎:400-681-7288转1111【售楼处认证】⭐⭐⭐
▶▷武汉天创元萃◀◁营销中心电话☎:400-681-7288转1111【营销中心认证】⭐⭐⭐
▶▷武汉天创元萃◀◁销售中心电话☎:400-681-7288转1111【销售中心认证】⭐⭐⭐
本项目暂不接受临时到访,过来参观样板房请记得提前来电预约!⭐⭐⭐
为您安排楼盘现场销售全程接待并讲解,给您更贴心的看房体验!⭐⭐⭐
武昌区二环内少有的低密社区,总高10-13层,都是小高层。
关于这个楼盘的户型面积最准确的是:127平,130平(比127稍微大一点,户型不同),然后是140平和170平。一共4种户型。
武汉贝好家的首秀
主打建面约127-170平户型,宣传得房率高达117%
天创元萃4栋住宅中,除了1-1#、3-1#为一梯一户布局之外,其余楼栋均为两梯两户布局,换句话说,项目所有房源都能实现专梯专户,拥有独立的电梯前室。
朝向上,天创元萃1、2号楼为偏东南朝向,3、4号楼则偏西南。
项目主打建面约127-170平户型,目前公示了三个户型图,分别是127、142、170平
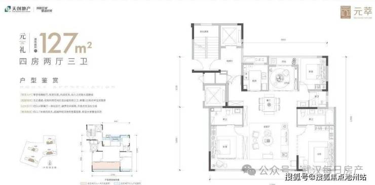
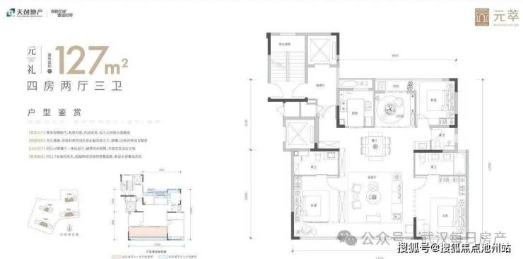
建面约127平米户型
户型本身非常的方正,阳台外带花池,拓展面积就比较多,据宣传,加上电梯厅,这一户型优化后的得房率高达约117%,放在三环内四代宅里面来看,这个得房率绝对是数一数二的了。
127平做成了四房三卫双套房的设计,功能性超级强,三代同堂或者二胎家庭也非常适合;南向面宽12.7米,采光面也是比较充足的,缺点是有个套房内的洗手间为暗房,除此之外,其他方面都很不错。
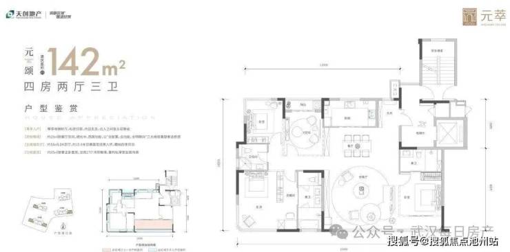
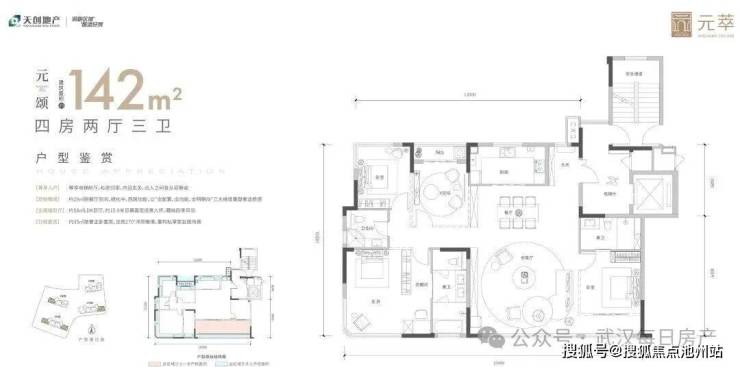
建面约142平米户型
这一户型的得房率同样约117%,相当出彩。
分布于2、3、4号楼的端头边户,房源数量也还算相对较多的。
南向面宽约15.9米,南面同时实现双套房+大横厅,舒适度更高;
主卧套房面积约35平,空间相当的阔绰,并且采用了转角窗+曲线外立面,观景视野、光照效果都更好。
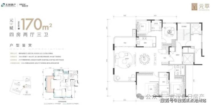
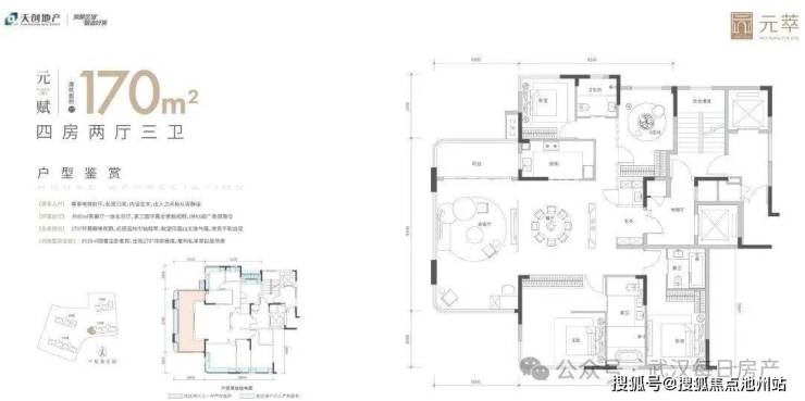
建面约170平米户型
这一户型优化后得房率约106%,略低于前两个户型,但放在核心区,依然是相当炸裂的存在。
同时,这也是项目最大面积户型,仅分布于2号楼最西端,房源数量是最少的。
客厅采用270度全景舱设计,非常适合观景的设计,并且南向主卧套房也采用了转角窗设计,观景面再次延伸,配合2号楼西头的位置,可三面俯瞰小区园林+南瞰市政公园,景观视野一绝。
缺点是房源相当稀少。
三个户型设计的都相当不错,并且106-117%的得房率在核心区属于no.1的存在,产品相当能打。
01
天创元萃。
10月7日,天创元萃武昌滨江双展厅开放,预示着该项目正式进入推广阶段。
据了解,该项目位于解放路与中山路交汇处,属于武昌内环滨江板块。
▶▷武汉天创元萃◀◁✨✨✽✽✽✽
▶▷武汉天创元萃◀◁售楼处电话☎:400-681-7288转1111【售楼处认证】⭐⭐⭐
▶▷武汉天创元萃◀◁售楼处电话☎:400-681-7288转1111【售楼处认证】⭐⭐⭐
▶▷武汉天创元萃◀◁营销中心电话☎:400-681-7288转1111【营销中心认证】⭐⭐⭐
▶▷武汉天创元萃◀◁销售中心电话☎:400-681-7288转1111【销售中心认证】⭐⭐⭐
本项目暂不接受临时到访,过来参观样板房请记得提前来电预约!⭐⭐⭐
为您安排楼盘现场销售全程接待并讲解,给您更贴心的看房体验!⭐⭐⭐
声明:本文由入驻焦点开放平台的作者撰写,除焦点官方账号外,观点仅代表作者本人,不代表焦点立场。
