南通紫琅吾岛官方售楼处电话南通紫琅吾岛_来电预约看房南通紫琅吾岛_(南通紫琅吾岛营销中心)南通紫琅吾岛楼盘详情-2025最新房价
扫描到手机,新闻随时看
扫一扫,用手机看文章
更加方便分享给朋友
✅南通紫琅吾岛✅✔️
✅南通紫琅吾岛-售楼处电话:400-678-8669转9999【售楼处已认证】✅✔️
✅南通紫琅吾岛-开发商电话:400-678-8669转9999【开发商已认证】✅✔️
✅南通紫琅吾岛-营销中心电话: 400-678-8669转9999【营销中心已认证】✅✔️
✅南通紫琅吾岛-展示中心电话:400-678-8669转9999【展示中心已认证】✅✔️
✅来电可了解楼盘最新动态、房价、在售房源、交楼时间等信息!让你买的放心,住的舒服✅✔️
紫琅吾岛楼盘位于南通崇川创新区静海大道东、朝阳路南,由南通市中央创新区科创产业发展有限公司精心打造,项目正持续推售中,最新参考价格为20000元/平方米,通过对项目价格、项目户型、交通配套、教育配套、生活配套、小区规划等维度进行分析,紫琅吾岛楼盘价值评分为9.5分。当前,紫琅吾岛价格为20000.00元/平方米,较周边三公里在售普通住宅项目均价低15.4%,紫琅吾岛项目价格具备一定优势。

交通配套
周边直线3km范围内有5个地铁站(紫琅湖、大剧院、静海大道、能达商务区、崇州大道),轨道交通发达,距离最近的地铁站是紫琅湖。
周边直线1km内有12个公交站,距离最近的紫琅湖实验学校站仅有326m,周边公共交通极为便捷。
教育配套
直线3km范围内有11个幼儿园;3个小学:小海小学、南通市能达小学、南通高等师范学校附属小学;2个中学:江苏省南通中学附属实验学校、南通市小海中学。
生活配套
楼盘直线3km范围内有1个一级及以上医院,为医疗需求提供了保障。
楼盘周边3km范围内有2个商场,包括紫琅新天地等购物中心,基本可满足日常购物需求。
楼盘周边生态环境优越,周边3km范围内有10个公园,距离最近的仅246m,非常方便日常休闲使用。
图源濠滨
周边分别有紫琅一小紫琅湖分校、紫琅湖初中、南通中学紫琅校区(建设中)三所高质量名校,依托约3万方紫琅小游园旁、一岛双湾的独特占位,未来小业主穿过小游园或走过网红桥,即可抵达学校。
此前我们多次跟大家分享过紫琅吾岛的公区实景呈现,细节品质方面都超出行业预期,将度假感的生活具象化。
项目汲取曼谷湄南河四季酒店为灵感,采用全景式度假感归家动线,从社区酒店式入口、下沉庭院、景观花园...层层递进。同时打造近3000m²中央景观会客厅,目之所及皆是风景,不用出家门就能享受到丰盛、欢畅的户外生活体验。

实景图,来源紫琅吾岛
特别之处在于项目颠覆了“传统会所独立设置于地下”的模式,将会所与下沉式水景庭院融合,会所在庭院中,庭院融入会所间。会所内配置水吧台、私宴厅、Switch游戏区等多个功能区,方便业主日常需求。
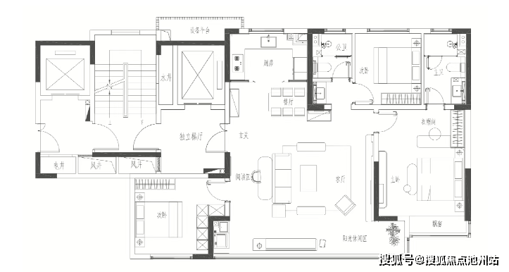
在户型设计上,项目根据南通人的生活需求定制了建面约130/168/188㎡三款人性化户型,并且实体样板间已经全部开放。很多生活细节做得也很到位,比如客厅双弧形吊顶,全屋大面积通铺地砖,厨房用的是玻璃夹丝移门等,看得出项目花了很多心思,诚意满满!
逆势热销!揭秘紫琅湖畔红盘背后硬实力!

建面约168㎡四室大宅

建面约190㎡宽境平层

03. 金鹰尚府
南通金鹰世界,超120万方全生活中心,涵盖建面约118-190m²国际滨水住区,约10万方滨水商业街区、约32万方超级购物中心以及约249米高的三塔连体建筑。
其中住宅方面,去年9月底一期15#、16#、21#三栋楼迎来交付,21#比原计划提前了足足3个月,至此全盘已实现交付。

图源濠滨
目前实景现房在售,品质可圈可点,户型建面约118-190㎡,无需漫长的等待期,即买即住。
✅南通紫琅吾岛✅✔️
✅南通紫琅吾岛-售楼处电话:400-678-8669转9999【售楼处已认证】✅✔️
✅南通紫琅吾岛-开发商电话:400-678-8669转9999【开发商已认证】✅✔️
✅南通紫琅吾岛-营销中心电话: 400-678-8669转9999【营销中心已认证】✅✔️
✅南通紫琅吾岛-展示中心电话:400-678-8669转9999【展示中心已认证】✅✔️
✅来电可了解楼盘最新动态、房价、在售房源、交楼时间等信息!让你买的放心,住的舒服✅✔️
声明:本文由入驻焦点开放平台的作者撰写,除焦点官方账号外,观点仅代表作者本人,不代表焦点立场。
