北京梧桐浅山售楼处电话;梧桐浅山售楼处位置;24小时电话!
扫描到手机,新闻随时看
扫一扫,用手机看文章
更加方便分享给朋友
➢➢北京平谷区【梧桐浅山】
☎☎售楼处电话℡:400-100-1299 转接 9999【售楼中心】
★★网上售楼中心——欢迎来电预约尊享一对一销售专业讲解服务!
_Vip营销中心_____欢迎来电预约尊享内部折扣_____匠心钜制恭迎品鉴!
全新【在售】楼盘信息_楼盘房价_户型详情_交房时间_周边配套_楼盘点评!
编辑
1
项目基本情况
项目名称:中国铁建梧桐浅山(别名)
企业名称:北京润谷置业有限公司
项目位置:平谷区夏各庄镇
占地面积:83000平方米
容积率:1.4
套数:1223套
销售均价:含全装修费用15000元/平方米(根据具体楼层、朝向在±5%的范围内调整销售价格)
产权年限:共有产权房,70年
编辑
2
交通路线
项目四至: 东至夏各庄西二路,南至规划夏各庄北一路,西至夏贤路,北至夏各庄中环路。
编辑
交通路线:顺平路、平夏路、夏贤路 、东南路
公共交通:平37路,平44路,平63路
3
周边配套
项目配有下沉式商业广场、图书馆、健身房、咖啡馆、菜市场等,可满足日常生活需求。
编辑
商业配套:银河购物中心、华联购物中心
医疗:平谷区医院,平谷区中医院,夏各庄镇卫生院
教育:夏各庄中心幼儿园、北京市平谷区张各庄中学
环境:万亩滨河森林公园
4
户型
户型面积:套户型主要为建筑面积约89㎡两居室、约89㎡三居室,约110㎡三居室。
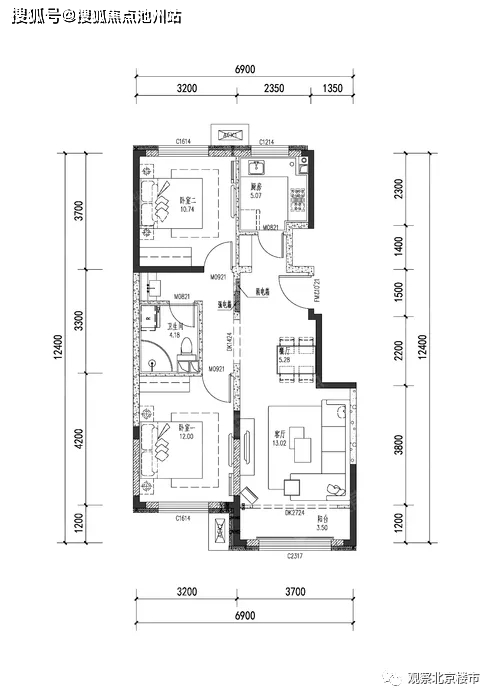
89平米两室两厅一卫A户型:
编辑
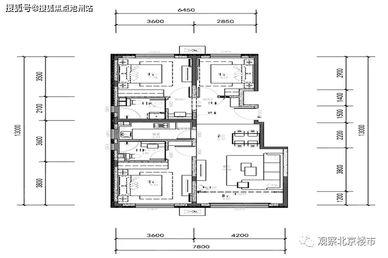
110平米三室两厅两卫B户型:
编辑
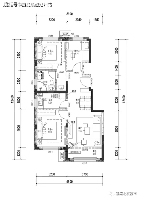
89平米三室两厅一卫C户型:
➢➢北京平谷区【梧桐浅山】
☎☎售楼处电话℡:400-100-1299 转接 9999【售楼中心】
★★网上售楼中心——欢迎来电预约尊享一对一销售专业讲解服务!
_Vip营销中心_____欢迎来电预约尊享内部折扣_____匠心钜制恭迎品鉴!
声明:本文由入驻焦点开放平台的作者撰写,除焦点官方账号外,观点仅代表作者本人,不代表焦点立场。
