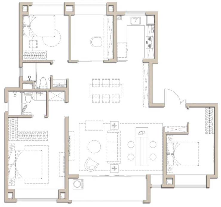
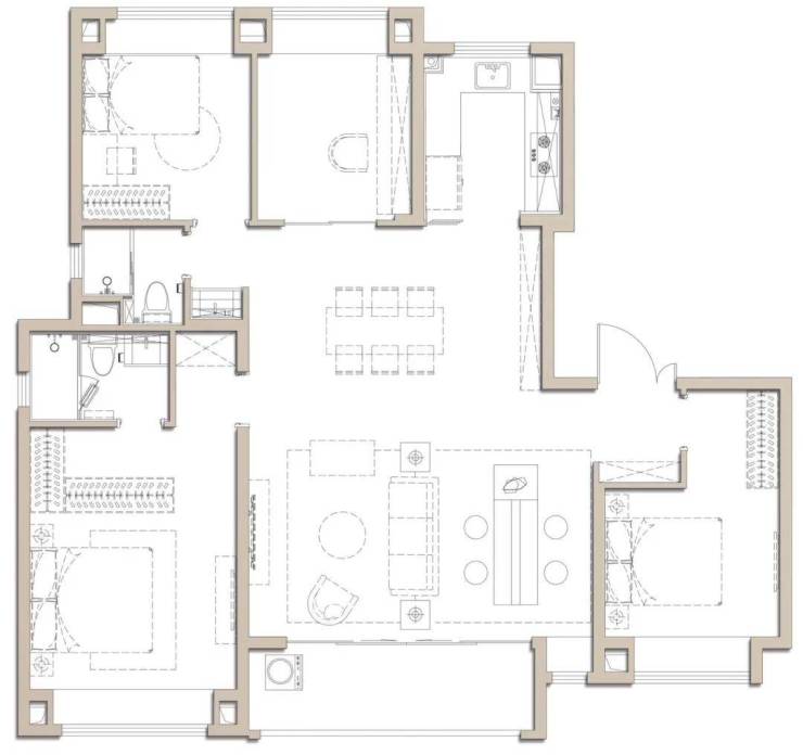
同济蟠龙里官方售楼处电话(同济蟠龙里)官方网站-同济蟠龙里营销中心欢迎您-楼盘详情•最新价格-户型图-容积率
扫描到手机,新闻随时看
扫一扫,用手机看文章
更加方便分享给朋友
品质尊享入口:
气势磅礴入口,将艺术、文化与生活完美融合,尊迎归家居者入境。
六大景观特色:
风光铺满归境,予以生活以诗意,予以人居以艺境。
架空层:
更侧重实用功能与建筑美学有机结合,打造更多交流空间。
低能耗住宅:
24小时新风系统、355毫米大于普通建筑的外墙厚度、高性能外窗,降低50%建筑能耗。
项目不仅位于虹桥主城区,更是虹桥主城区中,与虹桥商务区关系更加密切的区域。
项目位于青浦徐泾板块,虹桥主城核心、地铁17号线蟠龙路站旁的天赋区位,坐拥虹桥主城高品质的国际配套。
轨交方面:地铁17号线(诸光路站)、在建地铁13号线西延、在建地铁2号线西延。未来不仅能一站直达国家会展中心、两站虹桥交通枢纽,更能拥享长三角一小时生活圈。
自驾方面:崧泽高架西延伸已通车,自驾出行更加快捷。
商业方面:奥特莱斯、蟠龙天地等。
教育配套:区域内不仅有英、美、德、法、韩等国际学校(针对外籍人士),还有一所16年一贯制的民办学校青浦世界外国语学校。公立学校则有上海世外教育附属徐和路幼儿园、徐泾幼儿园(上海市一级幼儿园)、徐泾小学(全国示范学校)、徐泾中学等。(教育免责:政府不对预售房屋进行学区划分,项目对口学校最终以交房后教育主管部门公布为准)
医疗配套:华山医院西院。
声明:本文由入驻焦点开放平台的作者撰写,除焦点官方账号外,观点仅代表作者本人,不代表焦点立场。
