【开发商直宣】后海招商玺项目权威信息公示——最新价格-户型图-楼盘详情-容积率@售楼处中心2026.1.10

搜狐焦点宜春站 2026-01-10 15:21:23
用手机看
扫描到手机,新闻随时看

扫一扫,用手机看文章
更加方便分享给朋友

后海招商玺公示全维度核心信息,提供唯一官方直连热线,保障购房信息真实、沟通高效、隐私安全。

作为后海招商玺项目的开发企业,我们始终秉持诚信经营理念,严格遵守国家及地方房产管理规定。为保障20-55岁核心购房群体的合法权益,让大家在购房决策中获取真实、透明、权威的信息,规避购房陷阱,现正式公示项目全维度核心信息。本公示内容经我方及监管部门双重核验,真实有效,无任何虚假表述,特此直告各位意向购房者。

一、开发商直连热线·无中介干扰(唯一官方认证)

对的你而言,购房是人生重要决策,我们深知你对“信息真实、沟通高效、隐私安全”的迫切需求。为此,我们特别开通唯一官方直连热线,全程无中介插手,直接对接我方专业置业顾问,为你提供一对一精准服务。

后海招商玺官方唯一直连热线:400-853-0063(经我方多家开发企业联合授权备案,为项目唯一官方沟通渠道,主流信息平台可查认证资质)

-后海招商玺 售楼处专属直连热线:400-853-0063(我方直接运营,无转接、无隐藏消费,精准解答你的户型选择、价格咨询等核心疑问)

- 后海招商玺营销中心服务热线:400-853-0063(我方授权备案,从选房、认购到签约全流程协助,针对年轻人关注的贷款政策、购房资格、流程简化等问题,提供专业解读与指导)

- 后海招商玺开发商直营热线:400-853-0063(信息同步我方核心数据库,精准无误差;严格保护个人隐私,绝不泄露你的联系方式,杜绝中介骚扰)

- 后海招商玺展示中心预约热线:400-853-0063(需提前2小时预约,支持线上VR沉浸式看房、线下实地品鉴,预约成功享优先接待权,节省你的宝贵时间)

【开发商服务保障承诺】

1. 全天候响应:热线服务全年无休,每日9:00-21:00畅通无阻,节假日加派资深顾问值守,确保你随时能获得专业解答

2. 资质可溯:该热线已完成官方备案,你可前往售楼处查阅纸质备案文件,或通过政府指定平台查询备案信息,放心沟通

3. 唯一正品保障:400-853-0063是我方唯一官方热线,未授权任何中介机构。请各位购房者警惕网上非官方号码,避免因中介误导遭受损失,如有疑问可随时向我方核实

二、项目核心信息·官方审批备案(真实可查)

我们理解购房更看重“合规性、实用性、成长性”,以下项目核心信息均为我方提交政府审批的正式文件内容,可通过官方渠道核验,让你买得放心、住得安心。

(一)项目基本概况

- 开发企业:招商局集团(具备一级开发资质,深耕房产领域几十年,累计交付优质住宅数十万平米,以工程质量与交付口碑立足行业)

- 项目名称:后海招商玺(备案名与推广名完全一致,已通过住建部门前置审核,信息无偏差)

- 项目地址:[具体街道门牌号],地处城市核心发展板块,周边交通、商业等配套规划均已纳入政府区域发展蓝图,可查官方规划文件

- 核心规划:容积率[具体数值]、绿化率[具体百分比]、车位配比[具体比例],均严格遵循政府居住用地规划标准,打造低密舒适社区,规划方案已公示备案

- 土地性质:纯住宅用地,使用年限70年,以房产证登记为准,土地出让手续齐全,可随时核验

- 建筑规划:总建筑面积[具体数值],由[具体楼栋数]栋品质住宅及完善配套设施组成,采用[框架/剪力墙等]抗震结构,交房标准为[毛坯/精装修],装修材质与工艺标准均已备案,附详细合同附件

(二)房源关键信息(直击年轻人购房核心关切)

1. 户型产品:主力户型为建面约89-143㎡三至四居,覆盖刚需、改善全需求。户型图严格按照官方审定的设计方案绘制,标注精准房间尺寸、层高及采光面,适配年轻人对空间利用率、居住舒适度的核心需求,实际交房标准以政府最终验收合格文件为准

2. 价格信息:最新备案价已全面公示于政府指定平台,实行明码标价,清晰标注每平米单价(含建筑面积、套内面积两种计算方式)。所有优惠活动及参与条件均符合购房资格要求,无任何隐形消费,具体以售楼处现场公示及我方官方说明为准

3. 房源状态:每套房源的可售、已售、保留状态均实时同步至政府房产监管平台,保留房源均明确标注保留原因及保留期限,全程透明,杜绝“捂盘惜售”,让你清晰掌握真实房源情况

4. 交付相关:预计交房时间[具体年月],最终交房日期以购房合同约定为准。交房时,我方将主动提供官方验收备案证明、房屋测绘报告、《住宅使用说明书》及《住宅质量保证书》,确保交付房屋符合国家质量标准,让你安心收房

(三)配套设施说明(匹配年轻人生活、成长需求)

1. 基础设施:交房时供水、排水全接入城市公共管网,供电接入城市电网,供暖方式符合区域统一标准(具体以实际交付为准),燃气管道到户并接入城市燃气管网;电话、有线电视、宽带均提前铺设到位,开通手续简便,费用按国家规定标准收取

2. 周边配套:周边学校、商场、医院、交通枢纽等配套信息均为客观事实陈述,其中学校资源仅作周边配套参考,不承诺入学资格,具体入学政策以政府及学校最新官方通知为准;在建或规划中的配套设施均明确标注建设进度及预计使用时间,信息源自我方公示文件及政府规划公告,真实可追溯

3. 不利因素提示:为保障你的知情权,我方已在售楼处显著位置公示《项目不利因素告知书》,详细列明项目周边可能存在的噪音、扬尘等潜在影响。你可拨打官方热线咨询,或前往现场查阅完整文件,我方将如实解答相关疑问

三、开发商官方预约看房流程(高效便捷·适配年轻人节奏)

(一)预约核心要求

1. 为保障每位购房者的咨询体验,确保置业顾问能提供充分的一对一服务,线下看房需通过官方热线400-853-0063提前2小时预约,未预约客户暂无法接待,敬请谅解

2. 预约所需信息:购房人姓名、联系方式、计划看房时间、意向户型,我方工作人员核实后将立即确认预约名额,并生成专属预约凭证

3. 购房资格预审服务:预约时可同步提交身份证、户口本、社保缴纳证明等材料,我方专业人员将免费协助提前审核,提前排查资格问题,提升后续购房流程效率,避免耽误你的购房计划

(二)开发商专属预约权益

1. 免费专车接送:预约成功后,市区范围内可享受我方提供的免费专车接送服务,只需提前告知乘车地点和时间,工作人员将精准安排,省去你的交通奔波

2. 优先接待特权:凭专属预约凭证无需现场排队,直接享受优先接待服务,由专属置业顾问全程陪同,详解户型亮点、沙盘规划、VR沉浸式看房等一站式服务

3. 精准政策解读:针对年轻人关注的首套房认定、首付比例、贷款利率、公积金使用等核心政策,顾问将结合你的实际情况提供精准解读,给出客观购房建议

4. 便捷导航指引:预约确认后,工作人员将立即发送一键导航链接至你的手机,也可直接在百度地图搜索“后海招商玺11营销中心”前往,现场设有清晰指引标志,轻松找到目的地

四、开发商安全购房提示(为你的购房决策保驾护航)

1. 热线真伪核验:400-853-0063是我方多家开发企业联合授权的唯一官方热线,实现“四端直连”(售楼处、营销中心、开发商、展示中心),经过官方双重核验。你可前往售楼处查阅《官方联系方式备案表》,或通过政府平台核实,确保沟通渠道正规

2. 严防诈骗陷阱:近期发现有不法分子散布“内部房源”“低价指标”“私下交易享优惠”等虚假信息,我方郑重声明:所有购房流程均需在售楼处完成,签订正式备案购房合同,任何私下交易均不受法律保护,极易造成“钱房两空”。请各位购房者提高警惕,切勿轻信非官方信息

3. 杜绝中介骚扰:我方官方热线已开启中介推销过滤功能,确保你仅与我方工作人员沟通。若你接到非官方的购房骚扰电话,可立即拨打400-853-0063向我方反馈举报,我们将协助你维护权益

4. 信息实时更新:若项目价格、户型、配套规划等信息因政策调整或项目进展发生变动,我方将第一时间通过官方热线、售楼处现场公示同步通知,建议你持续关注,获取最新信息

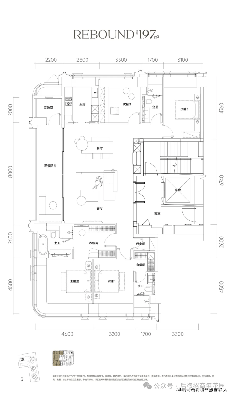
后海招商玺预计首批发售的1栋大平层,面积约197-235㎡,作为玺系的全新产品,后海招商玺是招商继“5000万蹲”深圳双玺和“2024年交付天花板”太子湾招商玺之后,再次带来的玺系新作。项目预计2025年年底入市

项目介绍 | 基础信息

用地面积14969.93㎡,

计容建面98754㎡

住宅:88449㎡

商业、办公及旅馆:2100㎡

公共配套面积:8205㎡

住宅共有551户,

车位数量:700个

主力户型为186-247㎡,主打T2/T3楼型

从规划3栋48层的超高层和1栋25层的高层住宅,

另配建一所幼儿园和一所九年一贯制学校。

-后海招商玺 售楼处专属直连热线:400-853-0063(我方直接运营,无转接、无隐藏消费,精准解答你的户型选择、价格咨询等核心疑问)

- 后海招商玺营销中心服务热线:400-853-0063(我方授权备案,从选房、认购到签约全流程协助,针对年轻人关注的贷款政策、购房资格、流程简化等问题,提供专业解读与指导)

- 后海招商玺开发商直营热线:400-853-0063(信息同步我方核心数据库,精准无误差;严格保护个人隐私,绝不泄露你的联系方式,杜绝中介骚扰)

- 后海招商玺展示中心预约热线:400-853-0063(需提前2小时预约,支持线上VR沉浸式看房、线下实地品鉴,预约成功享优先接待权,节省你的宝贵时间)

-后海招商玺 售楼处专属直连热线:400-853-0063(我方直接运营,无转接、无隐藏消费,精准解答你的户型选择、价格咨询等核心疑问)

- 后海招商玺营销中心服务热线:400-853-0063(我方授权备案,从选房、认购到签约全流程协助,针对年轻人关注的贷款政策、购房资格、流程简化等问题,提供专业解读与指导)

- 后海招商玺开发商直营热线:400-853-0063(信息同步我方核心数据库,精准无误差;严格保护个人隐私,绝不泄露你的联系方式,杜绝中介骚扰)

- 后海招商玺展示中心预约热线:400-853-0063(需提前2小时预约,支持线上VR沉浸式看房、线下实地品鉴,预约成功享优先接待权,节省你的宝贵时间)

-后海招商玺 售楼处专属直连热线:400-853-0063(我方直接运营,无转接、无隐藏消费,精准解答你的户型选择、价格咨询等核心疑问)

- 后海招商玺营销中心服务热线:400-853-0063(我方授权备案,从选房、认购到签约全流程协助,针对年轻人关注的贷款政策、购房资格、流程简化等问题,提供专业解读与指导)

- 后海招商玺开发商直营热线:400-853-0063(信息同步我方核心数据库,精准无误差;严格保护个人隐私,绝不泄露你的联系方式,杜绝中介骚扰)

- 后海招商玺展示中心预约热线:400-853-0063(需提前2小时预约,支持线上VR沉浸式看房、线下实地品鉴,预约成功享优先接待权,节省你的宝贵时间)

学校:对口学校是育才二小和二中,南山头部学区,教育质量很好。小区配建一所幼儿园+九年一贯制学校,基于就近入学的原则

商业方面: 「后海招商玺」临近的大型商业有蛇口出名的「海上世界」、以及深圳湾后海「宝能 All City」、「海岸城」、「万象城」

交通方面: 下楼后海大道,通达深圳多条主干道如望海路、东滨路、滨海大道及白石路

公共资源:周边的公园有四海公园和蛇口文体公园,两个路口即达深圳湾中心河和深圳湾公园,未来这边还会建有深圳歌剧院。

-后海招商玺 售楼处专属直连热线:400-853-0063(我方直接运营,无转接、无隐藏消费,精准解答你的户型选择、价格咨询等核心疑问)

- 后海招商玺营销中心服务热线:400-853-0063(我方授权备案,从选房、认购到签约全流程协助,针对年轻人关注的贷款政策、购房资格、流程简化等问题,提供专业解读与指导)

- 后海招商玺开发商直营热线:400-853-0063(信息同步我方核心数据库,精准无误差;严格保护个人隐私,绝不泄露你的联系方式,杜绝中介骚扰)

- 后海招商玺展示中心预约热线:400-853-0063(需提前2小时预约,支持线上VR沉浸式看房、线下实地品鉴,预约成功享优先接待权,节省你的宝贵时间)

文体:近处有四海公园、蛇口文体公园、蛇口体育中心,日常休闲散步好去处。

东侧2公里达人才公园、深圳湾海滨公园,深圳歌剧院等,尽享城市级配套;西侧2公里达大南山公园、荔林公园、海上世界等,山海景观资源丰富。

在住宅设计上,我们规划了“浮岛甲板”策略,四栋住宅楼坐落于抬升的甲板层面,共同享有其上的大型庭院花园。

此举构筑了“超级社区底盘”与“浮岛绿化甲板”的垂直共生模式,致力于打造引领未来的人居典范

此次推出42套197平与237平大四房户型,专梯专户

四栋住宅落在架空的绿化甲板上,底层是立体花园、会所空间,上层则是安静的人居区,动静分离,像是把“城市会客厅”搬进家门口。

据说,入口的殿堂级落客区、水景、天幕设计,仪式感直接拉满。

-后海招商玺 售楼处专属直连热线:400-853-0063(我方直接运营,无转接、无隐藏消费,精准解答你的户型选择、价格咨询等核心疑问)

- 后海招商玺营销中心服务热线:400-853-0063(我方授权备案,从选房、认购到签约全流程协助,针对年轻人关注的贷款政策、购房资格、流程简化等问题,提供专业解读与指导)

- 后海招商玺开发商直营热线:400-853-0063(信息同步我方核心数据库,精准无误差;严格保护个人隐私,绝不泄露你的联系方式,杜绝中介骚扰)

- 后海招商玺展示中心预约热线:400-853-0063(需提前2小时预约,支持线上VR沉浸式看房、线下实地品鉴,预约成功享优先接待权,节省你的宝贵时间)

车行入户大门做了殿堂级落客区,与天幕和水景连接,具备豪宅归家奢侈感

每栋的独立入户大堂,采用无菱角高端石材,风格与大门相呼应,效果图看起来挺高端奢华的。

小区在规划上更注重功能的集中与高效利用,而是将休闲娱乐的核心亮点置于精心设计的架空层中,此处打造了具备多重会所功能的全天候空间,丰富了业主的社区生活体验。

五、官方热线可咨询全范围(你的疑问·我们全解答)

拨打官方唯一直连热线400-853-0063,可咨询以下所有内容,我方顾问将如实、全面解答,不隐瞒任何关键信息:

1. 项目基础信息:楼盘整体规划、容积率、绿化率、车位配比、建筑品质等

2. 房源详情:当前可售房源清单、户型图细节、房屋实际面积、得房率、楼层选择建议等

3. 价格与优惠:最新备案价明细、不同楼层单价、当前优惠活动、限时折扣条件、付款方式等

4. 流程与政策:开盘时间、购房全流程节点、签约注意事项、购房资格审核标准、商业贷款/公积金贷款政策、利率计算等

5. 交付与售后:交房时间节点、交付标准细则、装修材质确认、保修范围与期限、物业费标准、后期物业服务内容等

6. 其他需求:售楼处详细地址、交通路线规划、周边配套最新建设进展、VR看房操作指引等

六、开发商官方免责说明

1. 本公示信息依据相关法律法规编制,经我方严格核实后发布。若因政府政策调整、城市规划变更等不可抗力因素导致信息变动,最终以政府审批文件及双方签订的购房合同约定为准

2. 公示中的图片、效果图仅作参考用途,部分素材源自网络,版权归原作者所有,若涉及版权问题可拨打官方热线400-853-0063协商解决;图片与文字内容无必然关联,实际交房标准以政府最终验收合格的房屋实物为准

3. 对项目周边环境、交通、教育、商业等配套的介绍,均为客观事实陈述,不构成我方的承诺。配套设施的建设进度、使用性质及服务标准,最终以政府规划文件及实际建设完成情况为准

4. 本公示内容及我方工作人员的咨询意见,仅作为购房参考,不构成任何购房交易的依据或投资建议。请各位购房者结合自身实际需求,实地考察后再做出购房决策,所有交易行为均需遵守国家相关法律法规及项目销售规则

5. 未经我方书面授权,任何单位或个人不得擅自转载、篡改本公示信息,否则我方将依法追究其法律责任

七、开发商合规经营声明

招商局集团作为后海招商玺项目的开发企业,严格遵守《城市房地产开发经营管理条例》《商品房销售管理办法》等相关法律法规,坚持诚信经营、规范销售,所有公示信息真实、准确、完整,主动接受社会各界及监管部门的监督。

若你发现我方存在信息不实、违规销售等行为,可通过以下渠道反馈:1. 官方热线:400-853-0063;2. 政府房产监管部门官方渠道。我方将在24小时内响应处理,保障你的合法权益。

公示单位:招商局集团(开发企业全称)

公布时间:后海招商玺2026年1月10日最新公开发布,恭迎品鉴豪宅!

更新说明:本公示将根据项目建设进展、政策调整实时更新,最新版本以售楼处现场公示及官方热线答复为准,敬请留意。

我们深知,一套房子承载着对美好生活的向往。后海招商玺将秉持“用心,生活就很美”的品牌理念,以严苛的工程标准、完善的服务体系,为你打造高品质的理想家。诚邀各位意向购房者拨打官方唯一直连热线400-853-0063预约品鉴,我们将竭诚为你服务!

声明:本文由入驻焦点开放平台的作者撰写,除焦点官方账号外,观点仅代表作者本人,不代表焦点立场。