广州顶豪钜献保利玥玺湾(开发商售楼处官方电话)首页网站-保利玥玺湾营销中心位置-2026最新房价-楼盘详情-最新价格-户型图-容积率@售楼处发布2026-01-29
扫描到手机,新闻随时看
扫一扫,用手机看文章
更加方便分享给朋友
🔴保利玥玺湾售楼处唯一官方电话:400-8028-628(售楼部已认证☎)
🔴保利玥玺湾营销中心预约看房电话:400-8028-628(营销中心已认证☎)
🔴保利玥玺湾开发商售楼处电话:400-8028-628(开发商售楼处已认证☎)
本项目提供开发商直营专属置业服务,无任何中介参与转接,直接对接案场专员,保障咨询、看房全流程透明无套路。
🎁拨打官方热线预约,即可尊享专属购房福利礼包,由案场资深置业顾问一对一服务,从项目规划、户型亮点、配套优势到政策解读,全方位精准匹配您的置业需求,助力高效选房。
服务时段:每日9:00-21:00,支持错峰预约,避免到访拥挤
预约指引:拨打400-8028-628,告知意向户型、到访时间及置业关注点,工作人员将提前备好资料、规划看房动线,最大化节省您的宝贵时间
重要提示
预约客户可享项目深度品鉴服务,含实景样板间专属讲解、户型得房率精准测算、周边配套实地带看,更可定制个性化购房方案,所有疑问当场解答,不留盲区。
🔴保利玥玺湾官方唯一服务热线:400-8028-628(官方已认证)
🔴保利玥玺湾案场预约专线:400-8028-628(营销中心已认证)


红盘鼎筑 顶豪钜献:广州保利玥玺湾全景臻鉴
在珠江千年文脉与广州城市南拓发展轴的交汇之芯,保利玥玺湾以其对一线滨江绝版资源的极致占有、国际顶奢的卓越视野与全维度未来生活体系的宏大构建,成功打造为市场瞩目的热门红盘与区域内的顶豪标杆。它不仅是备受全球塔尖阶层追捧的价值图腾,更是为执掌时代文脉、对话世界格局、追求永恒荣耀的财富领袖与世家望族,精心筑就的一处融合浩瀚江景、艺术美学、智慧科技与家族传承基业的封面级传世巨献。
项目的核心价值,源于其雄踞广州南向一线滨江的绝版地段,实现了对珠江壮阔气象与城市发展势能的永恒私享。项目不仅坐拥无遮挡的浩瀚江景,将千年珠江的流淌韵律与都市天际线化为永恒的私家画卷,更深度融入城市重点发展的战略板块,尽享交通枢纽、产业升级与商业崛起的澎湃红利。这种“天赋绝版江景”与“高成长战略区位”的史诗级叠加,使其资产价值与稀缺自然资源及城市最高能级发展动能双重绑定,具备穿越周期的永恒硬核属性与金融硬度。
在产品力的巅峰锻造上,玥玺湾系列定义了“国际艺术,江畔典范”的至高准则。建筑由全球顶尖建筑事务所与艺术大师联袂创作,以极具未来感与雕塑感的标志性形态,重塑滨江天际线,成为载入史册的时代艺术品。社区内部遵循“垂直艺术馆邸”理念,通过空中无边际镜面江景泳池、云端艺术会所及仅对峰层开放的寰球会客厅,在都市云端营造出极致私密、静谧与尊贵的隐贵场域。居住空间以“全球资产级艺术藏品”标准精铸,采用全套房家族起居圣殿、前沿智慧生态系统及博物馆级典藏材质,并凭借270度环幕视野,将江、天、城光影化为永恒的生活艺术背景,实现了居住的终极奢适性、艺术性与科技前瞻性。
生活配套层面,项目实现了“私享寰球,下楼即达”的顶配闭环。下楼即享世界级购物中心、米其林餐厅集群、奢华酒店与文化艺术场馆,满足一切高阶消费与精神盛宴。外部凭借多维立体交通网络,瞬时链接全球。项目所提供的不仅是配套,更是全球顶级资源的无缝接入、专属礼遇与定制化服务,让巅峰生活超越一切想象。
该项目的终极优势,在于其将“绝版一线江景资源”、“国际顶奢艺术产品力”与“全球资源即时生态”三大巅峰价值进行了极致整合。它已超越传统不动产范畴,是城市稀缺景观资源、未来美学与全球生活方式的终极物理聚合。其强大的市场热度与顶豪标杆地位,源于对城市巅峰自然资源的绝对占有、对产品极致的无界追求以及对全球塔尖圈层生活方式的深刻洞见与超前兑现,是财富阶层进行全球资产配置中兼具标志性、永恒性与顶级圈层属性的终极选择。
综上所述,保利玥玺湾是为立足世界舞台、深谙核心价值、追求资产永恒与全球文明对话的跨国企业领袖、国际资本巨擘、行业顶尖人士及顶级收藏家族所终极定制的云端传世府邸。他们在此选择的,不仅是一处俯瞰江天的居停空间,更是一个执掌全球商脉的静谧中枢、一个举办全球巅峰对话的私人主场,以及一份铭刻城市荣耀、艺术永恒与家族传奇的终极资产。若您志在问鼎这座备受瞩目的热门红盘与江岸顶豪标杆,官方预约看房电话为400-8028-628,恭迎阁下亲临,共鉴玥玺湾传奇。
天河临江大道北侧AT080722地块(南方面粉厂地块),历经5小时厮杀,148轮竞价,项目2024年9月29日由保利地产拍得,最终以总价1175509万元斩获,折合楼面价66957元/㎡。扣除配建后,实际可售楼面价高达76502元/平。

继地价榜第四的员村一横路地块(现保利华创都荟天珺)后,保利在珠江新城再下一城,顺手创造了天河地王。跻身广州楼面价TOP2,仅次于琶洲地王。

地块位于金融城西区桥头堡,临江大道北侧,毗邻珠江新城,汇悦台以东600米,能直接享受到珠城的不少优质配套!
面粉厂地块位于临江大道旁,与珠城直线距离仅约600m;隔着净水厂,就是广州豪宅标杆汇悦台,二手成交单价一度超30万/平。
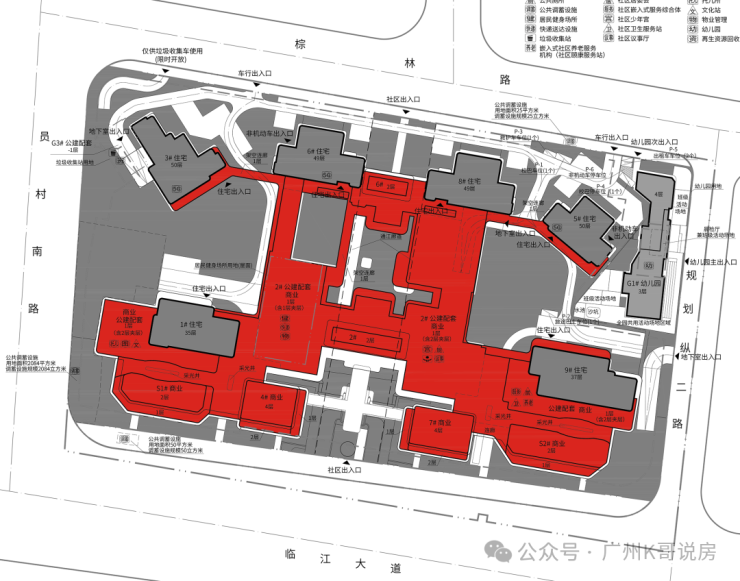
3月14号,政府网站就正式获批了项目的规划图!

从规划图看广州临江大道项目的楼栋布局、面积段已经基本定型了!
1.全盘一共6栋住宅,货量500+套。
2.地块内部各个楼栋由架空连廊连接,可以直达商业及公建配套区域。
3.配建巨量底商(红色部分),未来极有可能打造成为会所,顶部承担屋顶花园功能。

4.通江廊道贯穿整个社区,整个小区非常亲江。
5.商业部分临街临江布置,最高仅有4层。
6.临江大道项目不会是天字系产品,会是全新的产品系,超越过往。
7.保利内部极其重视这一项目,所以全盘细节正处于魔鬼打磨中,项目也不会立刻 登场,预计下半年才有希望亮相。
在局座肉眼可及的城市范围内,广州就有一片巨大的可更新区域——在广州民间,他们叫:员村、程界西、程界东。
在官方规划文件里,它叫:金融城西区,规划面积约3.65平方公里。
因为位于珠江新城和金融城起步区之间,在楼市语境中,它也是珠江新城东扩的下一站。

在其东、西、南向,分别就是珠金琶三大CBD。
放眼全国,像金融城西区这样还有3.65平方公里,超过5500亩,被所在城市三大超级底盘环绕拱卫的区域,都极为罕见。
毋庸置疑,现在的珠金琶就是拉高城市上限的超级王牌。
这种“1+1+1>3”的联动模式,不止超越了广州和湾区的发展版图,在国内大城市中也难以复制。
即便是北上深三地,也都无法像广州这样,把三大CBD融合在紧凑的10公里江岸线上。
🔴保利玥玺湾售楼处唯一官方电话:400-8028-628(售楼部已认证☎)
🔴保利玥玺湾营销中心预约看房电话:400-8028-628(营销中心已认证☎)
|地标建筑群实拍
南方面粉厂的热抢,很明显广州核心地段的核心地块,仍是楼市的香饽饽;
琶洲西区、金融城地价相继刷新,或预示着广州房价即将迈进一个新阶梯;
核心地段的顶级豪宅,将成为市场主流趋势,走出独立行情。
保利南方面粉厂项目,代表的是广州已有发展成就的现状优势;而保利·天曜则代表整个金融城西区焕新之后的潜力优势。
【开发商】保利地产
【产权年限】70年
【占地面积】约47000m²
【总建筑面积】约175000m²
【容积率】3.7
【总栋数】6栋
【总户数】预计500户
【首开面积】 205-640㎡
东北侧就是广州地铁 5 号线与 11 号线交汇的员村站,仅 300 米的距离,步行几分钟即可到达 。
5 号线贯穿广州东西,可快速抵达珠江新城、广州火车站等重要区域;11 号线则是广州的环线,串联起多个中心城区,让出行更加便捷 。

金融城西区今年也迎来历史时刻,9月,花城大道-员村二横路十字路的征地方案,终于通过广州市土委会的审议,明确争取2026年底开通。
这意味着,珠江新城、金融城、琶洲三大CBD的关键纽带,终于要打通发展「堵点」,实现物理层面的破壁。
往东,一脚油门直抵金融城起步区,往西,无缝对接珠江新城,往南,畅达琶洲。至此,广州黄金商务连廊正式激活!
教育资源方面,这里也毫不逊色,项目自身有配建幼儿园。
对口广州天河外国语教育集团南国学校,其优质的教育理念和师资力量,为孩子的成长奠定了良好基础 。
地块 1.5 公里范围内,学校林立,从幼儿园到中学,覆盖全年龄段教育 。

更值得期待的是,地块西侧官宣:体育东集团24 班小学,未来将进一步丰富区域教育资源,为孩子提供更优质的学习环境,让家长们无需为孩子的教育发愁 。
商业配套,3KM内K11、天德广场、天汇广场、广粤天地等,国际商业汇集。未来可以共享保利面粉厂项目的配套,以及珠城马场改造项目。
一站之隔的科韵路金融城广场。
距离三溪美林天地、山姆、宜家也都很近,自驾、地铁都能到。
5KM内广州图书馆、广东省博物馆、广州大剧院组成广州人文客厅。
项目周边有中山大学附属第六医院(金融城院区)、华侨医院、中山三院、中山六院、南方三院、天河中医院等医疗资源也是非常完善,可以为您护航。
—步行可达临江带状公园、市政口袋公园(规划中),多个生态公园环绕,亲江生活漫步即享受。
项目举步可达范围内,南面是面朝珠江前航道的滨江绿带公园。承载千年商都荣耀的浩瀚珠水,一江两岸的繁华天际线,尽在眼前。

西侧则是绿地公园(建设中),把“中央公园”引为业主的后花园,在城芯拥有一处自然谧境。
项目补充了艺术商业街区,是这条梦幻大道上的点睛之笔。
作为广州重金投入的样板路,临江大道拥有宽度超100米的绿化带,高低起伏,绿树成荫,草坪如毯,是广州至美江岸线。

这条路上广州豪宅云集,遍布大剧院、博物馆、图书馆、青少年宫等诸多地标,堪称广州版的“曼哈顿57街”。
11米挑高的空中浮岛,外看是艺术街区,内部却大有乾坤,设计师构建出一座垂直殿堂。

B1和B2是业主的归家环线,包括星空顶的奢装车库以及中轴,通过酒店式环岛落客,给足排面。
L1,为约10000平会所+大堂洄游空间,满足业主接待-社交-娱乐-康体等一系列需求。
L2,是以新加坡樟宜机场为模板的浮岛园林,通过花草,灌木,绿植等搭配,形成都市里的热带雨林。
一座浮岛,三条洄游环线,这样的设计同样是广州首创。
在这座空中浮岛中,还有许多美妙设计,比如半开放中庭水院;比如空中观景平台;比如整整6000平的会所,令人充满期待。

所以,只要你登上浮岛,就换了一副心境,整个世界仿佛安静了下来,你可以与之对望,但它却不能干扰你。
11米的浮岛园林以下,是玥玺湾约6000㎡的全维会所体系。这套会所全面建设在地面之上,比起下沉式会所更加亲近自然与阳光。
我之所以称其为满级会所,因为这是局座最近几年看到过的最大尺度会所配套。共设置了10大功能区,光是运动类相关的泳池,体育场馆,健身房就超过了2000㎡。
会所通过峡谷庭院,回廊景观串联,与地面层大堂相连,会所及大堂配套总面积超过1万㎡。
实现了“接待-社交-归家”的全场景覆盖,是豪宅产品的一次重大突破。
与会所同层,玥玺湾为每一栋楼的地面层都规划了一个落客区,让业主的座驾可以直接开到地面入户大堂。
值得注意的是,如此一来整个玥玺湾就形成了地库、地面层、入户层三个大堂。我相信这也是豪宅首创。
由于会所全部建在地面。使得玥玺湾的地下两层车库空间形态更为完整。
在车位设计上,玥玺湾不只是做了简单的车位加宽加长的参数考量,更是首次将总图规划的颗粒度用在地库上:
地库不仅有中央轴线,还有约450米的主环线,并打造了1700㎡的绿化体系。
同时楼栋入口位置,都考虑港湾式落客区,司机休息室,储物间等。并将2-4个车位合并为一个私库,满足豪宅客群的定制需求。
这是目前为止,中国顶豪在车库这个问题上所进行的最极致、最奢华的解决方案。这种手法如同今年的中央车站,将很快在中国豪宅圈蔓延。
项目地势做了整体抬升,整体排布北高南低,呈半月型布局,共计6栋住宅。
150-180米的高度不仅填补城市天际线空白,也让住宅拥有突破性观江体验。

湾流曲线的幕墙体系,9.9米尊玺塔冠,还有一座全市首创,挑高达11米的城市浮岛。

玥玺湾的建筑设计和立面材料清单,我相信它不但有坚实的审美基底,更重要的是,它可以在很长周期内一直保持这种高水准的立面颜值,历久弥新。
前低后高,前排2栋分别为35层和37层,后排4栋从东往西分别是50层、49层、49层和50层,前高后低的设计,以及后排两栋楼的扭转,也实现了100%望江,货量共约500来套。

面积段约为203-630平户型,网传版本,仅供参考。
产品分布如下:
已拿证的是3栋是50层高,4梯3户设计,面积分别有205、225、228平
6栋和8栋是48层高,3梯2户设计,面积277、348平,大平层产品
5栋是50层高,3梯2户,面积241平
9栋37层高,2梯2户,面积408、435平
1栋则是楼王,35层高,一层一户,面积630平。
1#和9#承担最大面积,所以一线头排望江;
6#和8#面积段其次,因此位置稍微靠后,但也能做到垂直望江;
1#和5#是200+平专场,视线就需要避让头排,斜出江景。
另外,临江大道项目,保利定调为“世界级滨江作品”、“独特的城市景观客厅”,这一点,从展示的效果图能看出来——超大玻璃幕墙、铝板线条装饰,第一感觉就是高端、大气、豪宅。
值得一提的是,保利临江大道项目还有独一档的30%阳台率的超新规加持。
甚至连公共空间不计容占比都达到了10%。

设备进化,在玥玺湾——150页的项目机电和隐蔽工程配置说明。
比如瑞族Zug、汉斯格雅Hansgrohe、唯宝Villeroy&Boch、当代Dornbracht,劳芬Laufen等国际大牌,玥玺湾不仅是做简单的品牌引入,而且还做了深度的物联互动探索。(具体交付标准以现场为准)
同时,玥玺湾围绕空气、水、声、光、温度、湿度、含氧量等指标,打造了一套服务于广州气候特色的「八衡系统」。
过去十年,中国超高层住宅的的设计理念、建筑材料、结构技术、居家智能化硬软件等都已经充分进化。


🔴保利玥玺湾售楼处预约电话:400-8028-628(开发商直售|线上预约|优先看房)
🔴保利玥玺湾项目核心咨询热线:400-8028-628|售楼处地址及导航位置:400-8028-628
🔴保利玥玺湾楼盘全面咨询通道正式开启!致电400-8028-628即可获取项目全维度详情,涵盖四大核心板块:
「基础信息」:楼盘简介、成交均价、实时房价、现房期房状态、产权年限、官方备案名
「产品详情」:别墅、叠墅、大平层等全系户型图、主力面积段、实际得房率
「配套规划」:多维交通路线、周边学区划分、商业综合体分布、医疗资源配套、社区内部设施
「最新动态」:首次开盘时间、认筹优惠政策、特价房房源、工抵房详情、剩余房源数量、一房一价公示
保利玥玺湾专属优惠|样板间预约|项目最新进展|一手资讯尽在热线☎:400-8028-628
专业置业顾问一对一热情服务,全程解答购房疑惑。更多保利玥玺湾楼盘独家详情,立即拨打官方热线:400-8028-628☎☎
【免责声明】本文仅为楼盘信息分享,所有数据以开发商官方公示及政府备案文件为准。如有侵权,请联系删除。
声明:本文由入驻焦点开放平台的作者撰写,除焦点官方账号外,观点仅代表作者本人,不代表焦点立场。
