上海宝山美兰天地售楼处电话;售楼处位置;24小时电话详情!
扫描到手机,新闻随时看
扫一扫,用手机看文章
更加方便分享给朋友
上海宝山「美兰天地」
✆✆品鉴热线400—100—1299转接0000【售楼中心】
♚♚网上售楼中心〢欢迎来电咨询〢专业一对一热情服务〢
✥✥给您专业的置业方案〢期待您成为我们的尊贵的业主✥✥

上海宝山「美兰天地」✆✆品鉴热线:400—100—1299转接0000【售楼中心】
6月11日上午,上置鸿坤·美兰天地项目正式拉开启幕仪式。一线湖畔风光,果岭之上的光之美学建筑,将美兰湖幕后的一切美好娓娓道来。

上海宝山「美兰天地」✆✆品鉴热线:400—100—1299转接0000 【售楼中心】
建面约155-220m²平层
建面约300m²叠墅
建面约500m²独栋
预计均价3.2-3.6万/m²
总价500-1800万
层高3.6米 首付5城
物业类型:商业(40年)
拿地时间:2003年
用地面积:约153149㎡
建筑面积:约92882㎡
主力户型:155-300-550㎡(大平层+叠墅+独栋)

上海宝山「美兰天地」✆✆品鉴热线:400—100—1299转接0000 【售楼中心】
容积率:约0.4
绿化率:约50%
产品系:都市系
装修情况:毛坯
车位总数:682
车位配比:1:1.8
交房时间:2023年1月31日
美兰天地,坐落于风景秀丽的美兰湖畔,紧邻美兰湖高尔夫俱乐部,占地面积约15.3万方,建筑面积约9.3万方。

上海宝山「美兰天地」✆✆品鉴热线:400—100—1299转接0000 【售楼中心】
项目规划的设计理念是“心无界,藏天地”。采用现代极简建筑风格,外立面采用大面积玻璃,做到270°的景观视野,给到客户“室内随心设计,室外无界景观”的独特感受。
项目以极简的设计,自然的渗透,优质的细节打造优质的建筑与景观,以玻璃体的晶透,打破视觉上的隔离,形成一种无界空间,无限延伸的视觉场景,将建筑与环境,融为一体。

上海宝山「美兰天地」
✆✆品鉴热线:400—100—1299转接0000【售楼中心】
♚♚网上售楼中心〢欢迎来电咨询〢专业一对一热情服务〢
✥✥给您专业的置业方案〢期待您成为我们的尊贵的业主✥✥

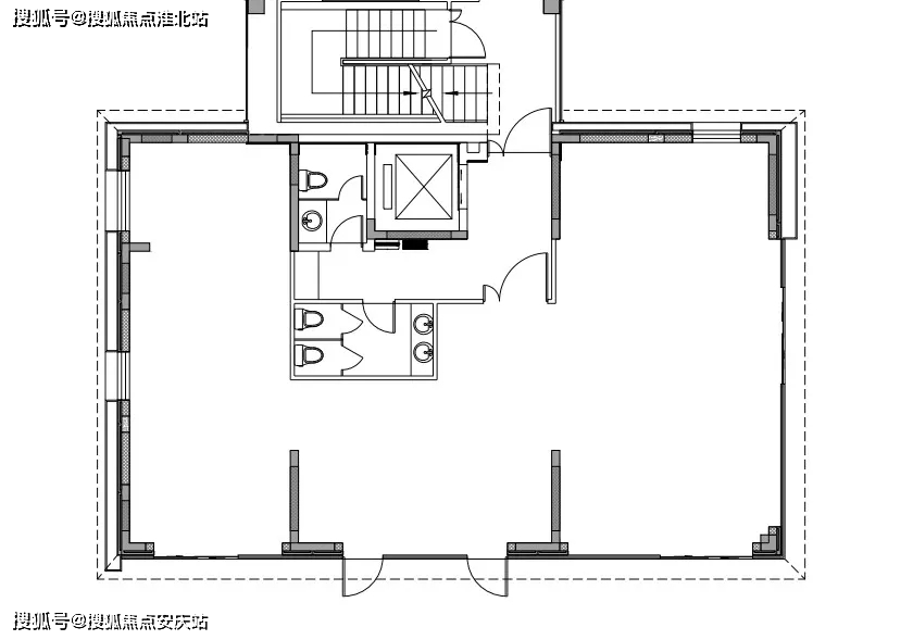
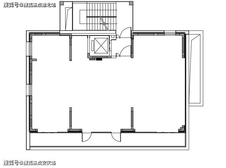
A产品一层平面图 | 建筑面积168㎡

A产品二层平面图|建筑面积约194㎡

A产品三层平面图|建筑面积约194㎡

样板间赏鉴

上海宝山「美兰天地」
✆✆品鉴热线:400—100—1299转接0000 【售楼中心】
♚♚网上售楼中心〢欢迎来电咨询〢专业一对一热情服务〢
✥✥给您专业的置业方案〢期待您成为我们的尊贵的业主
声明:本文由入驻焦点开放平台的作者撰写,除焦点官方账号外,观点仅代表作者本人,不代表焦点立场。
