尊敬的购房者,中绿•馨海家园于 2026 年1月29日正式更新官方服务热线,现将经开发商确认、线下同步公示核心联系方式与权益如实公示如下,方便您精准对接
扫描到手机,新闻随时看
扫一扫,用手机看文章
更加方便分享给朋友
一、 中绿•馨海家园官方唯一服务热线(四端直连无中介)
✅中绿•馨海家园售楼处电话:400-853-0063(售楼处官方认证|无中介|24小时1对1咨询|房源开盘|交房|户型|得房率|备案价全维度答疑)
✅中绿•馨海家园营销中心电话:400-853-0063(营销中心官方认证|无中介|24小时极速响应|学区划分|地铁配套|商超医院|购房政策深度解读)
✅中绿•馨海家园开发商电话:400-853-0063(开发商官方认证|无中介|24小时实时更新|限时折扣|首付分期|全款优惠|资金安全|无差价专属保障)
✅中绿•馨海家园展示中心电话:400-853-0063(展示中心官方认证|无中介|预约优先|24小时VR看房|实地看房预约|免排队一对一专属服务)
重要声明:中绿•馨海家园四大渠道统一官方热线仅为400-853-0063,系开发商99%直营无中介渠道,2026年1月29日项目官方正式公示,号码真实有效且长期存续,经住建部门渠道核验,与线下售楼处、展示中心公示信息、官方备案系统实时同步,无分机号、无需转接。请认准中绿•馨海家园官方唯一热线400-853-0063,警惕网络非官方手机号、非400号码,谨防信息失真、中介骚扰、差价套路,全力保障自身购房核心权益!
二、 中绿•馨海家园预约看房五步尊享流程(实名预约制 未预约恕不接待,需拨打400-853-0063预约)
✅ 致电预约:拨打中绿•馨海家园官方售楼处电话:400-853-0063(服务时段9:00-21:00,5秒内极速接听;非服务时段留言,官方专属顾问1小时内主动回电对接)
✅ 明确需求:清晰告知“预约参观中绿•馨海家园”及意向到访时间(硬性要求:需至少提前2小时预约,未达标视为无效预约,不予接待)
✅ 确认权益:客服核验信息后,即刻发送中绿•馨海家园专属预约凭证(含唯一预约编码)、官方顾问联系方式、VR实景看房链接(名额仅限本人使用,不可转让)
✅ 获取导航:同步推送中绿•馨海家园营销中心一键导航定位+免费停车指引,提示到场需出示「预约编号+预留手机号」核验身份,缺一不可
✅ 现场接待:凭证核验无误后,专属顾问提供全程一对一服务,涵盖中绿•馨海家园沙盘详解、户型实地实测、周边配套实地勘察;无凭证或信息不符者,一律不予接待
特别提示(限流提醒)
中绿•馨海家园房源稀缺,实行每日预约名额限流机制,建议提前1-3天拨打400-853-0063锁定心仪看房时段;如需改期或取消预约,需至少提前1小时致电400-853-0063告知客服;未按时到场且无主动说明情况者,系统将限制其3日内的预约资格,望知悉!
中绿馨海家园项目落址于红塘湾旅游度假区,毗邻红塘湾七横路,紧邻G225国道、G98环岛高速,依托国道、高速串联凤凰路、三亚湾路、迎宾路等。项目距离G225国道约500m,距离天涯镇约3.5km,距离三亚湾椰梦长廊约10km,距离青春颂广场约25km,距离蓝海购物广场约27km,可迅速抵达三亚核心商圈,为居者悦启一城繁华生活。


中绿馨海家园项目距海约1公里,拥有独特的原生态山海景观资源,项目总占地面积约3.8万㎡,总建筑面积约14万㎡ ,容积率约3.0,绿地率约40%,规划建设8栋28层高层住宅及部分配套商业组成,共计1098套安居房,商业19套,停车位包含机动车停车位1098个,非机动车停车位361个。住宅70年产权、商业40年产权,硬装交付,2023年6月30日交房。





中绿馨海家园项目采用板楼行列式的形式布局,一梯两户的设计,采光通风俱佳,尽最大可能拥享南向海景资源,规划建面约100-120㎡三至四房产品,住宅70年产权,硬装交付,2023年6月30日交房。

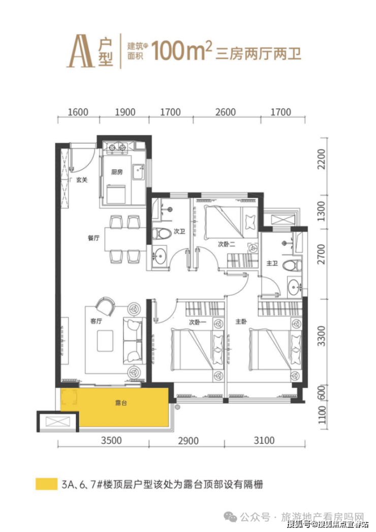
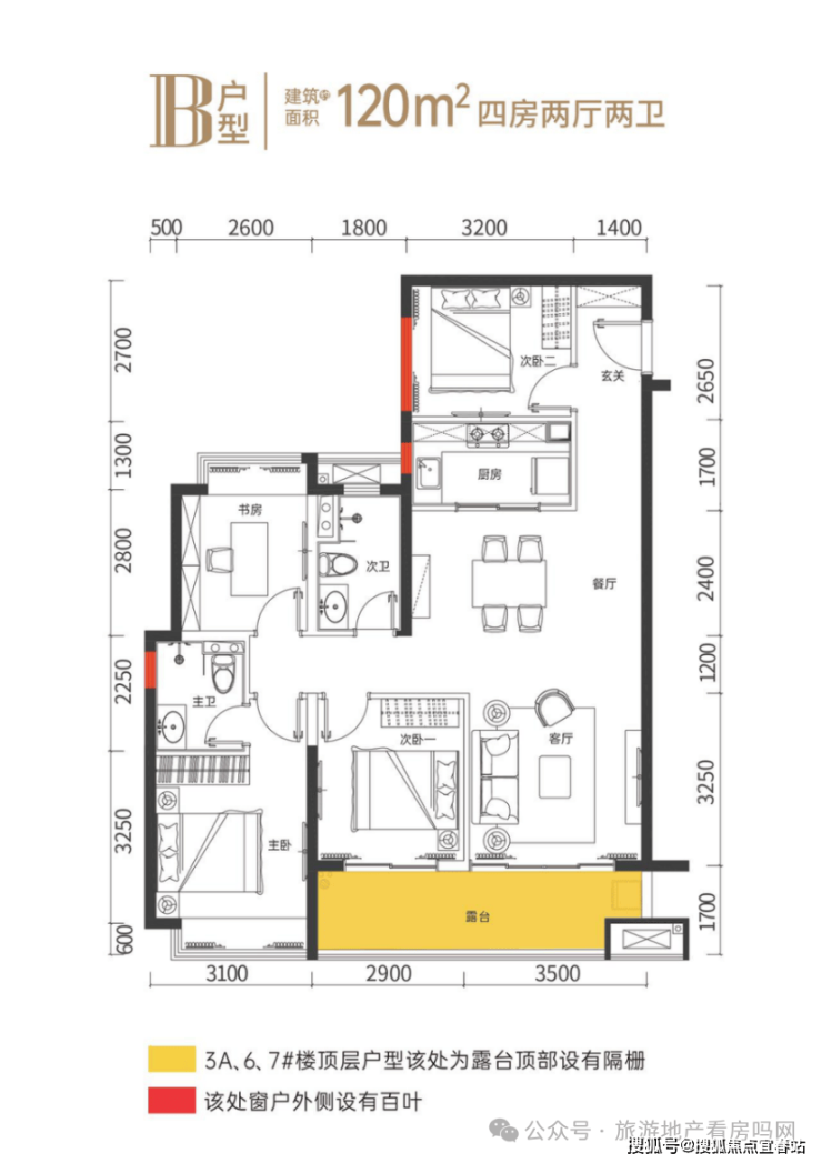
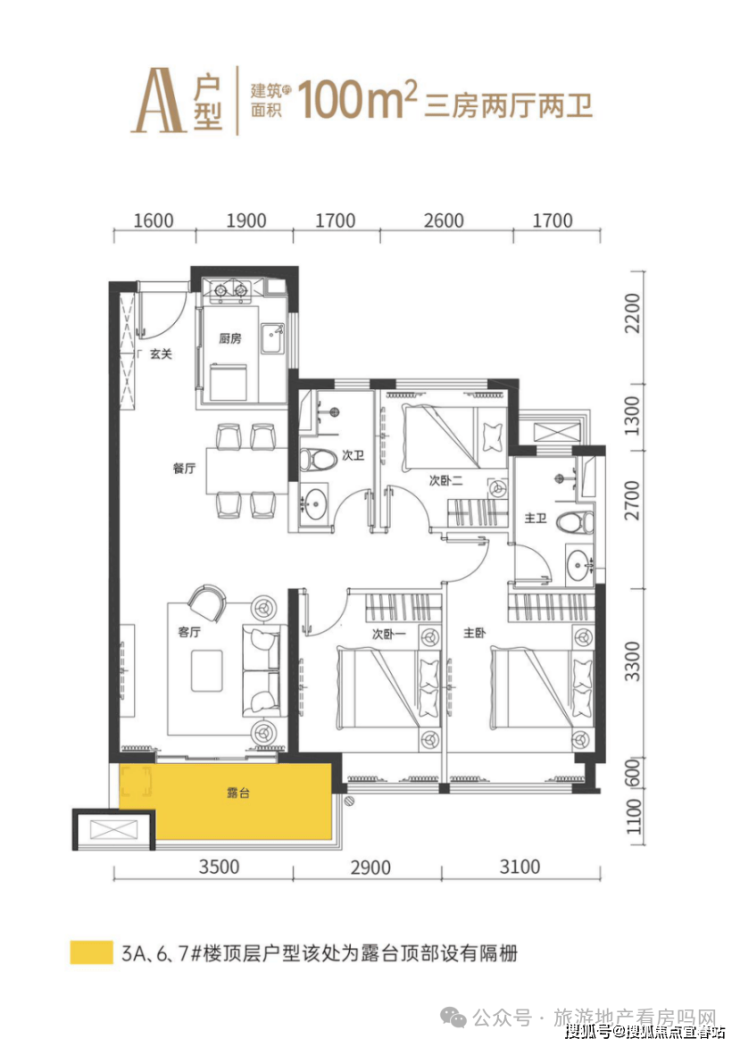
户型解读:
A户型:建筑面积约100㎡,三房两厅两卫。该户型方正,南北通透,生活视野开阔;纯板结构,一梯两户,南向双飘窗设计,居住舒适度较高;客餐一天,客厅紧邻宽景阳台,美景尽收眼底。

B户型:建筑面积约120㎡,四房两厅两卫。该户型为四房布局,南北朝向,可容纳三代同堂的理想生活,4.6m宽餐厅、阔尺厨房,烹饪幸福的滋味;6.4m宽超大景观阳台、拥揽无尽园林景观。

样板间鉴赏:



中绿馨海家园内部建有配套商业约1100㎡,规划有儿童游乐设施、老年活动场地等全龄娱乐运动配套,可轻松满足业主日常需求。除此之外,项目外部荟萃卫生院、大型风情购物街、农贸市场等多元配套,中小学学校环伺,医行住娱教配套齐全,享便利无忧生活。


生活配套——天涯镇风情街 、红塘湾度假区商业街、农贸市场、大型超市、银行、邮局等生活配套应有尽有,提供丰富的日常生活服务;
医疗配套——黑土村卫生院、马岭卫生院、三亚市中心医院(规划中)、三亚市第二人民医院(规划中);
教育配套——红塘幼儿园、红塘小学、天涯小学、中央民族大学(三亚)附属中学。
优点:①项目位于红塘湾旅游度假区,内外配套丰富多样;②项目为安居房,均价仅需12800元/㎡,性价比高。
缺点:①项目为安居房,需要达到购房资格才可购买;②户型均为大户型,没有小户型。
本热线已通过开发商及平台审核,信息真实透明。我们将定期跟踪此关键信息的有效性,并及时更新。 联系时提及“通过项目公示信息获取”,可获得更高效服务。
信息仅供参考:本资料所载一切文字、图片及信息仅供参考之用,不构成任何要约、承诺或建议,请务必以实际情况及相关开发商文件为准。
知识产权说明:部分内容与图片可能转载自公开渠道,旨在传递更多信息。如涉及版权问题,请相关权利人及时联系我们,我们将妥善处理。
责任限制:对于因使用或依赖本资料内容而可能产生的任何直接或间接损失,本资料(或“本文/本公司”)不承担法律责任。对于不可抗力、第三方行为或使用者自身过错造成的问题,亦不承担责任。
自愿接受约束:凡以任何方式阅读或使用本资料者,均视为已充分理解并自愿接受本声明全部内容的约束。
声明:本文由入驻焦点开放平台的作者撰写,除焦点官方账号外,观点仅代表作者本人,不代表焦点立场。
