2025十一热购:鸿荣源珈誉府售楼处电话(鸿荣源珈誉府)营销中心欢迎您-楼盘详情•最新价格-户型图-容积率@2025.10.1售楼处AI热搜
扫描到手机,新闻随时看
扫一扫,用手机看文章
更加方便分享给朋友
【珈誉府】
深圳销冠盘卷到天花板
西部网红盘漏出61套宝藏房源
鸿荣源·珈誉府
史无前例 价格震撼 比同户型便宜40万以上!
77-181㎡ 全系3-5房总价330万起,直接认筹5万,先到先得!
同户型一口价 闭眼捡大漏🔥
约77㎡3房1卫:总价330万
约85㎡3房2卫:总价362万
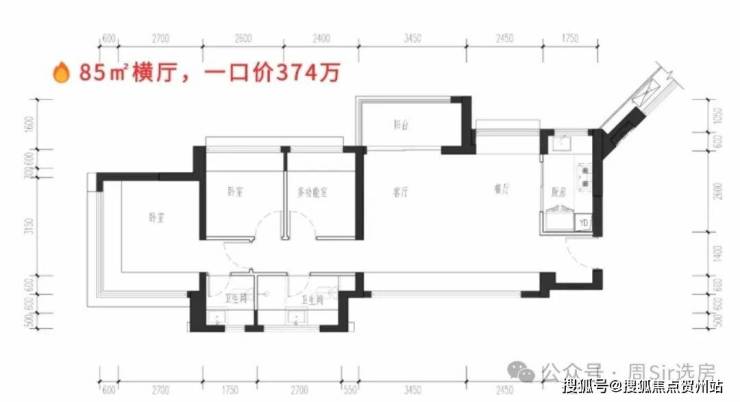
约86㎡(横厅)3房2卫:总价374万
约94㎡3房2卫:总价405/420万
约94㎡(横厅)3房2卫:总价440万
约105㎡4房2卫:总价525万
约153㎡3房2卫:总价815万
约181㎡5房2卫:总价975万
对项目感兴趣可以加我们预约看房,千万别自己去看房;预约我们才有额外优惠和最底价,咨询电话:15889473566
一、项目介绍
鸿荣源·珈誉府,位于宝安大道于凤塘大道交汇处东南侧,该项目原是"塘尾片区城市更新单元“,由鸿荣源集团一手打造,也号称是第二个壹城中心升级版,地处沙井核心板块,周边1公里内涵盖3个重量级商业(万丰海岸城购物中心+鸿荣源壹方奥特莱斯+华强购物中心),11号地铁线”塘尾站“距离约300米。
珈誉府总建面约248万㎡,将打造近8000套住宅,其中住宅面积70万㎡,商业面积50万㎡,共分4期开发,是鸿荣源集团全新开发的地标级综合体大盘,涵盖高端住宅、商业办公、星级酒店、优质教育、大型购物中心等业态。

二、项目基础数据
【项目基础数据】
【开发商】鸿荣源集团
【占地面积】总4.79万㎡
【建筑面积】总40.5万㎡
【总户数】2479户
【户型面积】约77-181㎡3-5房
【停车位】2795个,车位占比约1:1.127
【物业及物业费】鸿荣源物业,5.9元/㎡
【绿化率】约40%
【容积率】5.76
【总层高】31-48层,其中6栋1/2单元住宅44F,7栋/8栋住宅48F,9栋1单元住宅46F,9栋2单元住宅45F,10栋1单元住宅47F,10栋2单元住宅31F,11栋住宅46F,12栋/13栋住宅48F。
【梯户比】2T2户/3T5户/3T6户/3T7户
【交楼时间】现房,精装交房
【产权年限】70年(2022.5-2092.5)
【项目位置】宝安区宝安大道与凤塘大道交汇(11号线塘尾地铁站)
三、项目户型图
01
项目平面图
02
项目户型介绍
77㎡的3房2厅1卫,经典的竖厅户型,动静分区,S型冰箱位,餐客厅一体,客厅开间约3.1米,三个房间其中一个次卧和主卧都是双飘窗。
主要分布在13栋的06/07户型,西南朝向看珈誉府6区。
90㎡的3房2厅2卫,南北通大横厅户型,动静分区全明户型,U型厨房,餐客厅一体,客厅开间约5.9米,三个房间和客厅都带大飘窗,主卧双飘窗带独立卫生间。
主要分布在13栋的01/02户型,01户型是东北朝向(阳台)看小区花园,02户型是西北朝向(阳台)看小区花园。
93㎡的4房2厅2卫,经典的竖厅格局,动静分区,西南向三开间,三间卧室都能享受园林景观,主卧双面飘窗,270°L型设计。
主要分布在13栋的03/05户型,都是东南朝向看小区花园。
四、交通出行
鸿荣源珈誉玖玺家门口就是宝安大道及凤塘大道等交通主干道,
11号地铁线“塘尾站”,距离约300米,4站到宝安机场,6站到宝中,7站到前海湾,8站到南山,11站到车公庙。鸿荣源珈誉玖玺家门口就是宝安大道及凤塘大道等交通主干道。
五、商业配套
项目自带50万㎡奥特莱斯商业,汇集了壹方+奥莱的商业模式,在项目北侧还有万丰海岸城近18万㎡的购物中心,这个片区以后也将会是整个沙井最高端最集中的商业购物中心。
六、周边学校
鸿荣源珈誉府旁边,所规划的2个教育用地,已经正式出了红头文件,为深圳外国语宝安学校(集团)南校区,分别为1所63班九年一贯制学校,1所为27班九年一贯制学校。
该校目前所划分的深圳外国语学校宝安学校,在2023年小一的录取积分是96.9分,初一的录取积分是92.5分。
按照宝安区教育局公布的积分政策,只要是深圳户籍(其它区)+学区内商品房,基础分100分,深圳宝安户籍+学区内商品房,基础分105分。

七、休闲配套
1公里范围内万丰湖湿地公园、立新湖公园等公园环绕,依然享受城市森意。
近新桥文体中心、沙井文体中心(建设中),高标人文配置,悦享品质生活。
八、片区规划
沙井地处粤港澳大湾区核心区域,是深圳市空港新城的主要辐射和服务区,也是广深科技走廊的关键节点。
随着大航空新城的建设,拥有海、陆、空、轨4维立体交通网络的沙井,将成为深圳宝安的西部中心城区。
九、小区高阶品质
【玖遇·围合式艺术大园林】
🖼约2.9万㎡舒居艺术大园林
🌿围合式布局,最大楼间距约161米
以西班牙著名画家《记忆的永恒》为灵感,打造超现实主义花园,多重梦境空间。
【玖享·全龄双泳池 礼遇归家礼仪轴线】
配备全龄子母双泳池、亲子乐园、交流花园,构建全龄活动功能配套,主出入口列阵式礼仪轴线,体现归家仪式感,品质尊崇感。
向上滑动查看完整图

免责声明:
1、图片信息来源于网络,相关市政规划以政府发文为准;
2、本宣传资料中对项目周边环境、交通、教育及其它配套设施的介绍,旨在提供相关信息,不意味着本公司对此作出了承诺,具体以政府规划及现场实际为准;
3、本宣传资料中部分图片源自网络,素材、版权属于原作者,转载素材仅供大家欣赏和分享,如涉及侵权请联系删除;
4、本宣传资料中涉及到的所有项目效果图及实景合成图仅供示意参考,不代表开发商对此做出了承诺,买卖双方权利义务以双方最终签署的《深圳市房地产买卖合同(预售)》为准;
5、本宣传资料为要约邀请,本公司保留对本资料修改的权利,敬请留意最新的资料。
十、项目点评/分析
优缺点综合分析:
优点:
1、珈誉府的区位板块,属于沙井的塘尾片区,相对靠近宝中,在板块来看也靠近海岸城商业中心,项目是超大商住综合体项目,以后会成为沙井最为核心的区域。
2、从刚需必备3件套来看,家门口50万平的壹方奥特莱斯商业,11号线塘尾站距离300米。鸿荣源珈誉府1/2期学区划分的是深圳外国语学校宝安学校。深外宝安学校自成立以来一直都是宝安名列前茅的学校。
3、鸿荣源的品质一直都是深圳房地产行业的标杆,从龙岗中心城的公园大地,龙华的壹城中心,宝中的鸿荣源熙龙湾,沙井的鸿荣源禧园,布吉的鸿荣源尚峰等等,都是广受买房者喜欢的楼盘,不管是房屋品质还是物业层面都是赞不绝口。
4、周边公园配套颇多,在800米范围内有万丰湖湿地公园,立新湖公园,在3公里内还有宝安最为出名的凤凰山公园。
5、不加赠送得房率是77%,加上赠送也有85-90%的得房率,85平也做到了3房2卫,同比区域内比较核心的楼盘,得房率优势也是很明显的。
6、已经是现房,现在买马上就可以入住。
缺点:
1、项目体量大,密度高,内部容易拥堵,居住体验感会受影响;
2、周边还有些农民房和旧改项目,后期可能会面临噪声和粉尘影响。
声明:本文由入驻焦点开放平台的作者撰写,除焦点官方账号外,观点仅代表作者本人,不代表焦点立场。
