南通运河院子官方网站(售楼处) 首页 - 运河院子销售中心 - 环境 - 户型 - 价格 - 地址 - 楼盘详情 - 配套 - 电话 - 交房时间 - 配套 - 电话 - 交房时间
扫描到手机,新闻随时看
扫一扫,用手机看文章
更加方便分享给朋友
✅南通运河院子✅✔
✅南通运河院子-售楼处电话:400-678-8669转9999【售楼处已认证】✅✔
✅南通运河院子-开发商电话:400-678-8669转9999【开发商已认证】✅✔
✅南通运河院子-营销中心电话: 400-678-8669转9999【营销中心已认证】✅✔
✅ 南通运河院子-展示中心电话:400-678-8669转9999【展示中心已认证】✅✔
✅来电可了解楼盘最新动态、房价、在售房源、交楼时间等信息!让你买的放心,住的舒服✅✔
众所周知,今年南通楼市最大的看点,就是第四代住宅。所谓四代宅,又称庭院房、立体园林生态住房或城市森林花园建筑,是绿色建筑的衍生品。
第四代住宅之所以风靡,最关键就在于它带来的绝佳居住体验,以及超高的使用率。
而运河院子,不仅是整个五龙汇板块首个低密滨水四代洋房+联排别墅的产品,更在项目规划、产品打造、生活场景等多个方面作出提升,注定将引领南通人居变革。
★奇偶层错位:每个户型各有天地
首先,是运河院子带来的产品设计的全面升级。
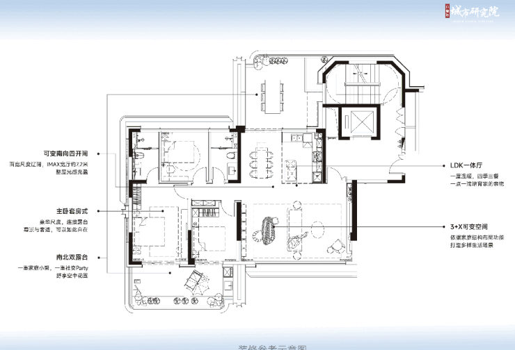
运河院子售楼处电话:400-9958-010转分机号6666项目洋房户型刚刚公开,打造125㎡和156㎡两个面积段,而且采用奇偶层错位的布局,因此每个面积段奇偶楼层户型都不同,亮点也不尽相同。
与宽厅相连,有强纵深感
与卧室相连,有私密属性
1、125㎡的偶数层户型:最突出的就是项目北侧的露台,与餐客厅连接,不仅可以延伸家庭活动空间,还能赏一线运河景观。

2、125㎡奇数层户型:北侧露台与卧室相连接,可作为男女主人的私密交流空间,后期瑜伽健身、品酒赏月、摇椅发呆都很惬意。

3、156㎡偶数层户型:项目打造南向270°环形跑道式浮岛大露台,搭配6.3米挑高冲击力超强,采光面、景观面都开到了IMAX级。

4、156㎡奇数层户型:南向露台加上原本大尺度的卧室空间,使得整个套房都很透亮,配合露台的绿植,在家就是度假!

运河院子,位于五龙汇任港湾外环西路东、钟秀西路北侧,被通吕、通扬运河、大港河三大水系环绕,天然形成了一个独立的岛屿状土地。
运河院子售楼处电话:400-9958-010转分机号6666且项目所处区域配套是当下南通配套最齐全的板块之一,一张图展示项目配套。
生活所需的所有配套,基本都在两公里范围内:
学校:周边学校林立,城西小学、跃龙中学、通师二附任港湾校区(规划中)都在附近
商业:项目被五水商圈、南大街商圈、北大街商圈环绕,山姆会员店、宜家家居、龙信广场、南通艾美酒店等大型商业鳞次栉比
交通地铁1、2号线横贯而过
自然:运河、水系就在楼下,通吕绿廊景区、分水岛公园举步可达
✅南通运河院子✅✔
✅南通运河院子-售楼处电话:400-678-8669转9999【售楼处已认证】✅✔
✅南通运河院子-开发商电话:400-678-8669转9999【开发商已认证】✅✔
✅南通运河院子-营销中心电话: 400-678-8669转9999【营销中心已认证】✅✔
✅ 南通运河院子-展示中心电话:400-678-8669转9999【展示中心已认证】✅✔
✅来电可了解楼盘最新动态、房价、在售房源、交楼时间等信息!让你买的放心,住的舒服✅✔
声明:本文由入驻焦点开放平台的作者撰写,除焦点官方账号外,观点仅代表作者本人,不代表焦点立场。
