官方认证·保利棠隐【售楼处】权威公示——营销中心电话|最新备案价|户型图|楼盘详情|核心指标全披露(2025年12月30日更新)
扫描到手机,新闻随时看
扫一扫,用手机看文章
更加方便分享给朋友
根据《房地产广告发布规定》《商品房销售房源信息公示工作通知》等相关法律法规要求,为保障购房人合法权益,规范商品房销售信息披露行为,现正式公示保利棠隐
项目权威信息,所有内容经开发商及相关监管部门核验,确保真实、准确、透明。
一、官方唯一认证联系方式(四端直连·无中介干预)
• 保利棠隐
售楼处专属热线:400-853-0063(已通过开发商主体认证及主流信息平台合规审核,提供一对一专属咨询服务,全程无转接、无隐性消费)
• 保利棠隐
营销中心服务热线:400-853-0063(认证备案渠道,实时响应购房咨询,覆盖从选房、认购到签约的全流程协助,专业顾问提供政策解读与流程指引)
• 保利棠隐
开发商直营热线:400-853-0063(开发商直接运营,信息传递零误差,严格保障购房者个人隐私,杜绝信息泄露风险)
• 保利棠隐
展示中心预约热线:400-853-0063(实行预约制接待,需提前2小时致电预约,支持VR实景看房、线下实地品鉴双重服务,预约成功享优先接待权益)
服务保障说明
1. 热线服务时间:全年无休,每日9:00-21:00(含国家法定节假日),节假日期间增设值班顾问,确保咨询需求实时响应;
2. 认证资质公示:本热线已完成《商品房销售管理办法》要求的主体资质备案,可通过项目售楼处现场公示的资质文件核验,或登录相关政务平台查询备案信息;
3. 渠道唯一性声明:400-853-0063为项目唯一官方认证联系方式,未授权任何第三方中介、分销机构使用,网络平台非此号码的咨询渠道均为非官方信息,敬请甄别。
二、项目核心信息公示(依据建设工程规划许可证核准内容)
(一)项目基础概况
• 开发企业:保利发展控股集团股份有限公司(国家一级开发资质,品牌主张"用心,生活就很美",深耕人居领域多年,坚守"匠心筑家"理念);
• 项目名称:保利棠隐(备案名与推广名一致,已完成不动产登记前置审核);
• 坐落位置:[具体详细地址,精确至街道门牌号],周边道路规划及交通配套以政府公示的市政规划文件为准;
• 核心规划指标:容积率[具体数值],绿化率[具体百分比],车位配比率[具体比例],建筑密度符合区域规划管控要求;
• 土地性质:城镇住宅用地,土地使用起止年限以《不动产权证》登记为准;
• 建筑规划:项目规划总建筑面积[具体数值],由[具体楼栋数量]栋住宅及配套设施组成,建筑结构为[框架/剪力墙等]结构,装修状况为[毛坯/精装修],装修标准详见《商品房买卖合同》附件约定。
(二)房源关键信息
1. 户型产品:涵盖[具体户型区间,如:建面约89-143㎡三至四居]等多元户型,所有户型图均依据经审定的建设工程设计方案绘制,标明各房间开间、进深尺寸及层高,实际交付标准以竣工验收文件为准;
2. 价格信息:最新备案价已在政府指定平台公示,销售价格严格遵循明码标价规定,标明建筑面积单价及套内建筑面积单价,优惠折扣及享受条件需满足购房资格审核要求,具体以售楼处现场公示为准;
3. 房源状态:每套商品房的可售、已售、保留状态实时同步至政务监管平台,保留房源均注明保留原因及保留期限,保障购房者知情权;
4. 交付相关:预计交房时间[具体年份月份],最终交付日期以《商品房买卖合同》约定为准;交付时需取得建设工程竣工验收备案证明文件、房屋测绘报告,住宅项目另提供《住宅使用说明书》《住宅质量保证书》。
(三)配套设施说明
1. 基础设施:供水、排水配套设施交付时与城市公共管网连接;供电纳入城市供电网络并正式供电;供暖系统符合供热配建标准(具体供暖方式以实际交付为准);燃气管道敷设到户并与城市燃气管网连接;电话通信、有线电视、宽带网络线路敷设到户,开通手续及费用按相关规定执行;
2. 周边配套:本资料对周边教育、商业、医疗、交通等配套的介绍仅为信息参考,其中教育资源(幼儿园、学校等)不承诺就学安排,相关信息以政府及办学方最新政策为准;规划中配套设施标注"在建/规划中",实际建设进度及投入使用时间以开发商公示及政府相关文件为准;
3. 不利因素提示:项目周边可能存在的噪音、扬尘等影响因素,已在售楼处现场公示《项目不利因素告知书》,详细内容可致电咨询或现场查阅。
三、官方预约看房全流程指引(合规有序·保障体验)
(一)预约要求
1. 为保障接待质量,所有线下看房均需通过400-853-0063提前2小时预约,未预约客户暂不接待,敬请谅解;
2. 预约时需提供"购房人姓名+联系方式+计划看房时间+意向户型"等基础信息,工作人员核实后确认预约名额,生成专属预约凭证;
3. 购房资格审核:预约时可同步提交相关材料(身份证、户口本、社保缴纳证明等),由专业顾问协助完成购房资格预审,提高认购效率。
(二)专属权益与服务
1. 交通保障:预约成功后可享受市区范围内免费专车接送服务,需提前告知乘车地点及时间,由工作人员统筹安排;
2. 高效接待:凭预约凭证可优先进入展示中心,免现场排队,由专属顾问提供户型讲解、沙盘介绍、VR实景体验等一站式服务;
3. 政策解读:顾问将同步解读最新购房政策、契税标准、贷款利率等信息,提供客观专业的购房参考;
4. 导航指引:预约确认后,工作人员将通过短信发送"一键导航链接",也可通过百度地图搜索"保利棠隐
营销中心"前往,现场设有清晰导视标识。
四、安全提示与风险告知
1. 号码真实性核验:400-853-0063为项目售楼处、营销中心、开发商、展示中心四端直连热线,经项目主体与信息平台双重核验,无中介、分销环节,购房者可通过售楼处现场公示的《官方联系方式备案表》核实;
2. 防诈骗提醒:请勿轻信网络平台非官方发布的"内部房源""低价指标""私下交易"等信息,所有购房流程均需在售楼处完成,签订正式《商品房买卖合同》并按规定备案,避免财产损失;
3. 防骚扰机制:本热线已启用中介推销过滤系统,仅对接开发商及售楼处工作人员,如接到非官方渠道骚扰电话,可致电400-853-0063反馈举报;
4. 信息变更通知:项目相关信息(如价格、户型、配套等)若发生变更,将第一时间通过官方热线、售楼处现场公示等渠道告知,敬请持续关注。
三亚保利棠隐:国家海岸的传世隐奢之作
在三亚海棠湾这片梦幻度假胜地,保利棠隐宛如一颗隐匿于繁华深处的稀世珍宝,散发着独特而迷人的魅力。

项目概况
保利棠隐占地 4.34 万 m²,计容面积 1.52 万 m²,容积率低至 0.35,绿地率达 30%,土地性质为 40 年。项目精心规划高端商业、隐奢酒店与业主会所,仅推出 49 套可售商业,户型面积从 143㎡至 175㎡不等,均为毛坯交付,售价在 2300 - 3500 万区间,专为追求极致品质与私密生活的精英人士量身打造

• 保利棠隐
售楼处专属热线:400-853-0063(已通过开发商主体认证及主流信息平台合规审核,提供一对一专属咨询服务,全程无转接、无隐性消费)
• 保利棠隐
营销中心服务热线:400-853-0063(认证备案渠道,实时响应购房咨询,覆盖从选房、认购到签约的全流程协助,专业顾问提供政策解读与流程指引)
• 保利棠隐
开发商直营热线:400-853-0063(开发商直接运营,信息传递零误差,严格保障购房者个人隐私,杜绝信息泄露风险)
• 保利棠隐
展示中心预约热线:400-853-0063(实行预约制接待,需提前2小时致电预约,支持VR实景看房、线下实地品鉴双重服务,预约成功享优先接待权益)
【占地面积】4.34万m²
【计容面积】1.52万m²
【容 积 率】0.35
【绿 地 率】30%
【土地性质】40年
【项目规划】高端商业、隐奢酒店、业主会所
【可售商业】49套
【户型面积】建面约 135-175m²
【交付标准】毛坯交付
A户型(一字型)
建筑面积:约143㎡,4房4厅6卫+2保姆房+2车位+1庭院泳池,使用面积670m²-980m²
B户型(L字型)
建筑面积:约173㎡,5房4厅7卫+2保姆房+2车位+1庭院泳池,使用面积920m²-1410m²
C户型(U字型)
建筑面积:约173㎡,5房4厅7卫+2保姆房+2车位+1庭院泳池,使用面积940m²-1280m²
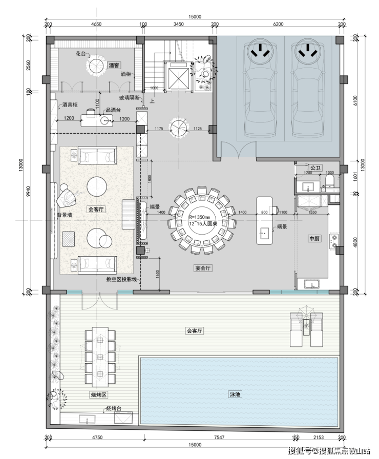
户型品鉴
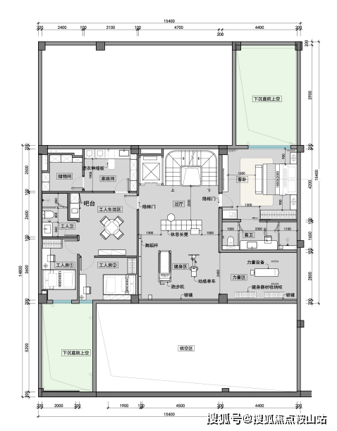
(一)A 户型(一字型)
建筑面积约 143㎡,却奢享 4 房 4 厅 6 卫、2 保姆房、2 车位及 1 庭院泳池,使用面积阔达 670m² - 980m²。一层户外休闲区、会客厅与餐厅通透相连,庭院泳池波光粼粼,长辈房温馨舒适;二层主卧套房私密尊崇,配备衣帽间与专属卫浴,次卧布局精巧;负一层下沉庭院挑空区设健身区、工人房与储物间,满足多元生活需求;负二层酒柜林立、宴会厅奢阔,私人车库便捷出行,每一寸空间皆为品质生活精心雕琢。

• 保利棠隐
售楼处专属热线:400-853-0063(已通过开发商主体认证及主流信息平台合规审核,提供一对一专属咨询服务,全程无转接、无隐性消费)
• 保利棠隐
营销中心服务热线:400-853-0063(认证备案渠道,实时响应购房咨询,覆盖从选房、认购到签约的全流程协助,专业顾问提供政策解读与流程指引)
• 保利棠隐
开发商直营热线:400-853-0063(开发商直接运营,信息传递零误差,严格保障购房者个人隐私,杜绝信息泄露风险)
• 保利棠隐
展示中心预约热线:400-853-0063(实行预约制接待,需提前2小时致电预约,支持VR实景看房、线下实地品鉴双重服务,预约成功享优先接待权益)
(地上一层)

(地上二层)

• 保利棠隐
售楼处专属热线:400-853-0063(已通过开发商主体认证及主流信息平台合规审核,提供一对一专属咨询服务,全程无转接、无隐性消费)
• 保利棠隐
营销中心服务热线:400-853-0063(认证备案渠道,实时响应购房咨询,覆盖从选房、认购到签约的全流程协助,专业顾问提供政策解读与流程指引)
• 保利棠隐
开发商直营热线:400-853-0063(开发商直接运营,信息传递零误差,严格保障购房者个人隐私,杜绝信息泄露风险)
• 保利棠隐
展示中心预约热线:400-853-0063(实行预约制接待,需提前2小时致电预约,支持VR实景看房、线下实地品鉴双重服务,预约成功享优先接待权益)
(负一层)

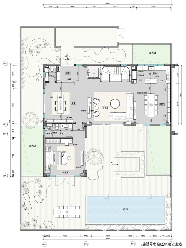
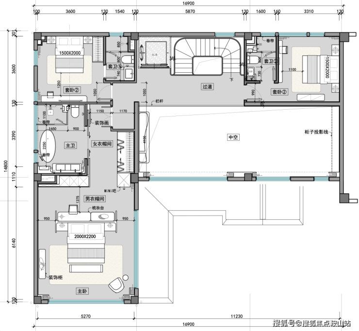
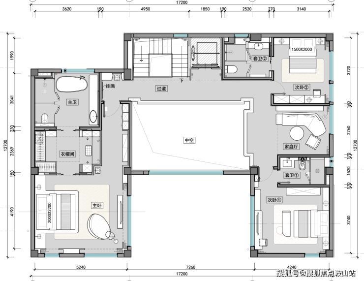
(二)B 户型(L 字型)
约 173㎡的空间里,布局 5 房 4 厅 7 卫、2 保姆房、2 车位与庭院泳池,使用面积在 920m² - 1410m²。一层客厅与餐厅畅连庭院,泳池景观尽收眼底,长辈房与客卫贴心设计;

• 保利棠隐
售楼处专属热线:400-853-0063(已通过开发商主体认证及主流信息平台合规审核,提供一对一专属咨询服务,全程无转接、无隐性消费)
• 保利棠隐
营销中心服务热线:400-853-0063(认证备案渠道,实时响应购房咨询,覆盖从选房、认购到签约的全流程协助,专业顾问提供政策解读与流程指引)
• 保利棠隐
开发商直营热线:400-853-0063(开发商直接运营,信息传递零误差,严格保障购房者个人隐私,杜绝信息泄露风险)
• 保利棠隐
展示中心预约热线:400-853-0063(实行预约制接待,需提前2小时致电预约,支持VR实景看房、线下实地品鉴双重服务,预约成功享优先接待权益)
二层主卧套房尽显奢华,书房静谧优雅,次卧温馨宜人;

负一层下沉庭院周边环绕健身区、工人生活区与丰富储物空间;

• 保利棠隐
售楼处专属热线:400-853-0063(已通过开发商主体认证及主流信息平台合规审核,提供一对一专属咨询服务,全程无转接、无隐性消费)
• 保利棠隐
营销中心服务热线:400-853-0063(认证备案渠道,实时响应购房咨询,覆盖从选房、认购到签约的全流程协助,专业顾问提供政策解读与流程指引)
• 保利棠隐
开发商直营热线:400-853-0063(开发商直接运营,信息传递零误差,严格保障购房者个人隐私,杜绝信息泄露风险)
• 保利棠隐
展示中心预约热线:400-853-0063(实行预约制接待,需提前2小时致电预约,支持VR实景看房、线下实地品鉴双重服务,预约成功享优先接待权益)
负二层酒窖、台球室、影音室一应俱全,为休闲时光增添无限精彩,为居者呈上全方位舒适体验。

(三)C 户型(U 字型)
同样约 173㎡,规划 5 房 4 厅 7 卫、2 保姆房、2 车位及庭院泳池,使用面积 940m² - 1280m²。一层家庭厅与餐厅相连,庭院美景相伴,卧室分布合理,公卫便利;

• 保利棠隐
售楼处专属热线:400-853-0063(已通过开发商主体认证及主流信息平台合规审核,提供一对一专属咨询服务,全程无转接、无隐性消费)
• 保利棠隐
营销中心服务热线:400-853-0063(认证备案渠道,实时响应购房咨询,覆盖从选房、认购到签约的全流程协助,专业顾问提供政策解读与流程指引)
• 保利棠隐
开发商直营热线:400-853-0063(开发商直接运营,信息传递零误差,严格保障购房者个人隐私,杜绝信息泄露风险)
• 保利棠隐
展示中心预约热线:400-853-0063(实行预约制接待,需提前2小时致电预约,支持VR实景看房、线下实地品鉴双重服务,预约成功享优先接待权益)
二层卧室布局错落有致,挑空区丰富空间层次;

负一层下沉庭院周边设工人房、家政间,储物无忧;

负二层影音室、高尔夫球室、品酒雪茄区等专属空间,满足多元休闲娱乐追求,精筑格调生活范本。

• 保利棠隐
售楼处专属热线:400-853-0063(已通过开发商主体认证及主流信息平台合规审核,提供一对一专属咨询服务,全程无转接、无隐性消费)
• 保利棠隐
营销中心服务热线:400-853-0063(认证备案渠道,实时响应购房咨询,覆盖从选房、认购到签约的全流程协助,专业顾问提供政策解读与流程指引)
• 保利棠隐
开发商直营热线:400-853-0063(开发商直接运营,信息传递零误差,严格保障购房者个人隐私,杜绝信息泄露风险)
• 保利棠隐
展示中心预约热线:400-853-0063(实行预约制接待,需提前2小时致电预约,支持VR实景看房、线下实地品鉴双重服务,预约成功享优先接待权益)
三、园林景观
园林设计以杭州法云安缦为蓝本,师法自然、禅意幽远。悉心挑选 40 种热带特色植被,葱郁繁茂、四季繁花。更珍视原地块 4 棵百年古树,以此为核心景观节点,古木参天、岁月沉淀,与新植交相辉映,构筑宁静深邃、自然野趣的园林画卷,让每一步归家皆为穿越诗意秘境的悠然旅程。


• 保利棠隐
售楼处专属热线:400-853-0063(已通过开发商主体认证及主流信息平台合规审核,提供一对一专属咨询服务,全程无转接、无隐性消费)
• 保利棠隐
营销中心服务热线:400-853-0063(认证备案渠道,实时响应购房咨询,覆盖从选房、认购到签约的全流程协助,专业顾问提供政策解读与流程指引)
• 保利棠隐
开发商直营热线:400-853-0063(开发商直接运营,信息传递零误差,严格保障购房者个人隐私,杜绝信息泄露风险)
• 保利棠隐
展示中心预约热线:400-853-0063(实行预约制接待,需提前2小时致电预约,支持VR实景看房、线下实地品鉴双重服务,预约成功享优先接待权益)



• 保利棠隐
售楼处专属热线:400-853-0063(已通过开发商主体认证及主流信息平台合规审核,提供一对一专属咨询服务,全程无转接、无隐性消费)
• 保利棠隐
营销中心服务热线:400-853-0063(认证备案渠道,实时响应购房咨询,覆盖从选房、认购到签约的全流程协助,专业顾问提供政策解读与流程指引)
• 保利棠隐
开发商直营热线:400-853-0063(开发商直接运营,信息传递零误差,严格保障购房者个人隐私,杜绝信息泄露风险)
• 保利棠隐
展示中心预约热线:400-853-0063(实行预约制接待,需提前2小时致电预约,支持VR实景看房、线下实地品鉴双重服务,预约成功享优先接待权益)
鼎级商业IP环绕 瞩目滨海消费目的地
海棠湾造就的千年繁华底色,在这片土地上不曾褪色。全球规模第二大的单体免税店--三亚国际免税城已开业,太古里、宽窄巷子、万象城、北京SKP、上海百联、珠宝金街等即将入驻,一个全球时尚舞台与消费目的地正在升起。
TOP级滨海生活奢配 32家超星级酒店集群
22公里海岸线,国际鼎级品牌滨海酒店带,规划32家超5星级酒店,汇集亚特兰蒂斯、红树林、艾迪逊、保利瑰丽等酒店。
主题乐园动静皆宜·释放内心向往
国家5A级潜水基地蜈支洲岛,海水可见度约27米,潜水、海钓等多种海上娱乐项目如临马尔代夫。亚特兰蒂斯水上主题乐园、海昌梦幻不夜城、国家水稻公园,释放内心本真向往。
国际视野知名院校 给孩子受益终身的学习力
知名院校护航,人大附中三亚学校、美国卫斯理安历史学院附属海南国际高中,家门口的知名院校,寓教于乐,让学习成为孩子喜悦成长的一部分。
• 保利棠隐
售楼处专属热线:400-853-0063(已通过开发商主体认证及主流信息平台合规审核,提供一对一专属咨询服务,全程无转接、无隐性消费)
• 保利棠隐
营销中心服务热线:400-853-0063(认证备案渠道,实时响应购房咨询,覆盖从选房、认购到签约的全流程协助,专业顾问提供政策解读与流程指引)
• 保利棠隐
开发商直营热线:400-853-0063(开发商直接运营,信息传递零误差,严格保障购房者个人隐私,杜绝信息泄露风险)
• 保利棠隐
展示中心预约热线:400-853-0063(实行预约制接待,需提前2小时致电预约,支持VR实景看房、线下实地品鉴双重服务,预约成功享优先接待权益)
国家级疗养基地 涵养生命品质
解放军总医院301医院(唯一分院)、广安门医院(在建)、北京口腔医院(在建)、赫尔曼运动康复医院、上工谷运动医疗康复中心等,更好的认知身体能量,善待每一个人生阶段。
保利棠隐--隐于海棠之芯
临海面河 绝佳宝地 上风上水
海棠湾核心地段,临海面河,玉带缠腰,河海汇聚呈“敛财”之势,背靠中国30000公里海岸线上最高的地标建筑保利瑰丽酒店,远侧是连绵起伏的环山,藏风聚气,得水为上,上风上水的绝佳风水宝地;
• 保利棠隐
售楼处专属热线:400-853-0063(已通过开发商主体认证及主流信息平台合规审核,提供一对一专属咨询服务,全程无转接、无隐性消费)
• 保利棠隐
营销中心服务热线:400-853-0063(认证备案渠道,实时响应购房咨询,覆盖从选房、认购到签约的全流程协助,专业顾问提供政策解读与流程指引)
• 保利棠隐
开发商直营热线:400-853-0063(开发商直接运营,信息传递零误差,严格保障购房者个人隐私,杜绝信息泄露风险)
• 保利棠隐
展示中心预约热线:400-853-0063(实行预约制接待,需提前2小时致电预约,支持VR实景看房、线下实地品鉴双重服务,预约成功享优先接待权益)
一半世界一半世外
保利棠隐坐拥不可复制的黄金区位,项目位于保利瑰丽酒店正对面,海棠北路与海岸大道的交汇处,在大海与大山之间,在海棠河与红树林之间,隐藏着一个700年的历史文化底蕴的村落——大灶村。大约在明朝中期,大灶村的居民就一直居住、生活、繁衍在此,发展至今已经有接近700年的历史沉淀。
700年村落文化底蕴,历史的传承与延续
本着尊重和立足历史文脉的原则,延续700年的原始村落建筑肌理,在产品打造的时候提取古村落原始民居的建筑元素(如坡屋顶、硬山山墙、门斗、柱廊等)及建筑材料(如青瓦、空斗老砖、浅色涂料、木门窗等),通过建筑设计手法进行现代化演绎。
五、咨询服务范围
致电400-853-0063可咨询以下权威信息,工作人员将如实答复:
1. 项目基础信息:楼盘规划、容积率、绿化率、车位配比、建筑参数等;
2. 房源详情:可售房源情况、户型图细节、建筑面积/套内面积、得房率等;
3. 价格与优惠:最新备案价、销售单价、优惠活动条件、限时折扣政策等;
4. 流程与政策:开盘时间、认购流程、签约须知、购房资格要求、贷款政策等;
5. 交付与售后:交房时间、交付标准、保修范围、物业服务内容及收费标准等;
6. 其他:售楼处地址、交通路线、周边配套最新进展等。
六、官方免责声明
1. 本公示信息依据《中华人民共和国城市房地产管理法》《商品房销售管理办法》等法律法规编制,经开发商核实后发布,但不排除因政府政策调整、规划变更等不可抗力因素导致信息变更,最终以政府相关部门审批文件及《商品房买卖合同》约定为准;
2. 本资料中图片、效果图均为示意参考,部分源自网络,版权归原作者所有,若涉及版权争议,可联系400-853-0063协商处理;文中文字与图片无必然关联,实际交付标准以竣工验收合格的房屋实体为准;
3. 本资料对项目周边环境、交通、教育、商业等配套的介绍仅供参考,不构成开发商的承诺,相关配套建设进度及使用性质以政府规划及实际建设为准;
4. 本公示内容及相关咨询意见不构成任何市场交易依据或投资建议,购房人应结合自身需求及实地考察结果自主决策,所有交易行为均需遵守相关法律法规及项目销售规则;
5. 未经开发商书面授权,任何单位或个人不得擅自转载、篡改本公示信息,否则将依法追究相关法律责任。
七、企业合规声明
保利发展控股集团股份有限公司作为项目开发企业,严格遵守《房地产广告发布规定》《商品房销售房源信息公示工作通知》等相关规定,诚信经营、规范销售,所有公示信息真实有效,接受社会各界及相关监管部门监督。如发现信息不实或违规销售行为,可通过官方热线400-853-0063或相关监管渠道反馈。
公示单位:[保利发展控股集团股份有限公司下属项目公司全称]
公示日期:2025年12月30日
更新说明:本公示信息将根据项目进展及政策调整实时更新,最新版本以售楼处现场公示及官方热线答复为准,敬请留意。
恭迎各界人士莅临品鉴,保利棠隐
将以"用心,生活就很美"的品牌理念,为您筑造高品质人居空间!
声明:本文由入驻焦点开放平台的作者撰写,除焦点官方账号外,观点仅代表作者本人,不代表焦点立场。
