精装房变“惊装房”!满京华深圳业主维权辛酸泪知多少
扫描到手机,新闻随时看
扫一扫,用手机看文章
更加方便分享给朋友

当初来广东不过是为了听一声“靓仔”、“靓女”,不曾想来了深圳就成了疯狂搞钱的打工人。
不仅被老板买走了快乐,还要给房东带去更多的快乐。

不管你来深圳几年,只要没房子,也是那无根的“深漂”,想要买房,谈何容易!
关内买不起,环境好的太贵,双城生活太累,便宜的不是太破就是太远.....
粉丝群里的老林就吐槽:来深圳五年已经搬了8次家了,今年无论如何都想上车,要在深圳真正当个“人”!
听闻宝安松岗的满京华云著雅庭入市将近,价格也比较“香”,想听听专业分析到底值不值得买?
既然如此,且听胖橘慢慢道来...
满京华云著雅庭位于深圳市宝安区松岗107国道与松福大道交汇处。
云著系列体量不小,占地43万㎡,总建筑面积约150万㎡,集住宅、国际会展、创意文化产业于一体。
去年底满京华云著华庭一次性豪气推出1129套精装房源,认筹的意向客户高达1459批,其中无房客户1297位,选房当天共卖出848套,去化约8成。
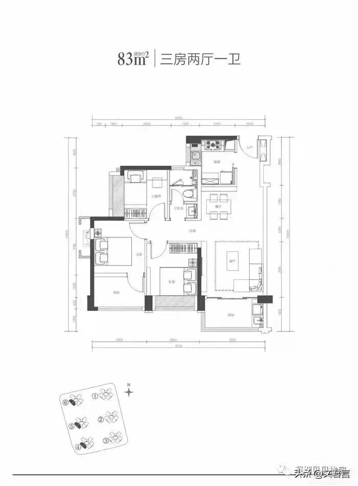
作为云著系列第四期雅庭,这次只推出420套,户型建面约83-151㎡,据销售说,拿证顺利的话,大约8月中下旬开盘。

虽说项目位于宝安松岗片区,隔壁街就属于东莞市,但不得不说这期比以往推出的几期关注度都高!
目前一、二期二手房官方参考价格为4.58万/㎡,去年12月19日华庭推出含装修均价4.95万/㎡,以此推测雅庭会是5字头。
这也是为什么这么多人愿意再关注的根源,毕竟价格摆在这里。

作为大型综合体,社区内有艺展MALL、艺术小镇、艺术工坊、艺术博物馆、艺展小学、幼儿园等。
项目配套的国际艺展中心将引进杉杉奥特莱斯,涵盖运动潮牌、精品女装、时尚男装、家庭亲子,以及影院、超市、餐饮、书店、社区服务等多种生活方式业态。理想总是美的,但目前现状是怎么样的呢?销售介绍,今年上半年艺展中心已启动改造和招商,整个奥莱购物广场将于今年12月正式进驻。也就是说,配套目前还是空空如也。

现在在底商买买菜、吃个面包、嗦个粉是没问题,但等商家进驻艺展中心的“好日子”到来恐怕还得再给点耐心。等多久?这真不好说,并且进驻并不代表所有店铺同时开门营业。
周边基本上全是工业厂房和农民房,马路上多是大型货车和泥头车,周边要啥没啥,有种前不着村后不着店的感觉,现在有底商已经算是较好的处境了。

不知道前几期的业主,是怎么忍受如此偏僻和商业贫乏的日子。
以上可能都是暂时性的“小问题”,起码还有改善的可能,但作为刚需盘来讲,交通上就不能妥协了!
乘坐地铁11号线到达松岗站后还需步行1.5公里,如需换乘公交(4个站)也没得选,目前只有一路公交可到,车次大约20分钟一趟。
日常出行不自驾,走路半天才到家。
有车家庭可能不愁交通问题,除此之外还有些小问题需要接受,下面提到的点还请各位留心。
车位不足、管理混乱、楼顶违建、卫生间渗水等等,这是满京华云著前几期被业主控诉的问题,一定要做好出现上述情况的心理准备!
满京华业主,维权路上的辛酸泪
“好货不便宜,便宜没好货”这话粗理不粗,在房价的层面上确实比二手房市场价低一些,但房价的价值从来都不是由单一的因素来决定的。

华庭效果图1.精装变毛坯,有家不能归“精装交楼”变“净赚”交楼,开发商转眼就能赚的盆满钵满。去年5月,在领导留言板有位妈妈业主的投诉信息格外引人注目:精装变毛坯有家不能归。

原来当时刚入伙不久,业主就反映卫生间出现了大面积的渗水漏水的问题,导致墙剥落、木地板发霉发黑、水管爆裂等情况,装修质量堪忧!更让人愤慨的是,事情发生了三个月开发商无人出面处理,整个小区495户都出现了或大或小类似的问题。上下滑动查看惨不忍睹泡水后的内部装修:



直到业主们把事情闹大,上诉到相关政府部门,最终甲方才愿意出面解决,提供新的装修方案,与业主达成协议。
然而,这只是维权路上的冰山一角。
2.世上无难事,只怕停车难深圳停车有多难?
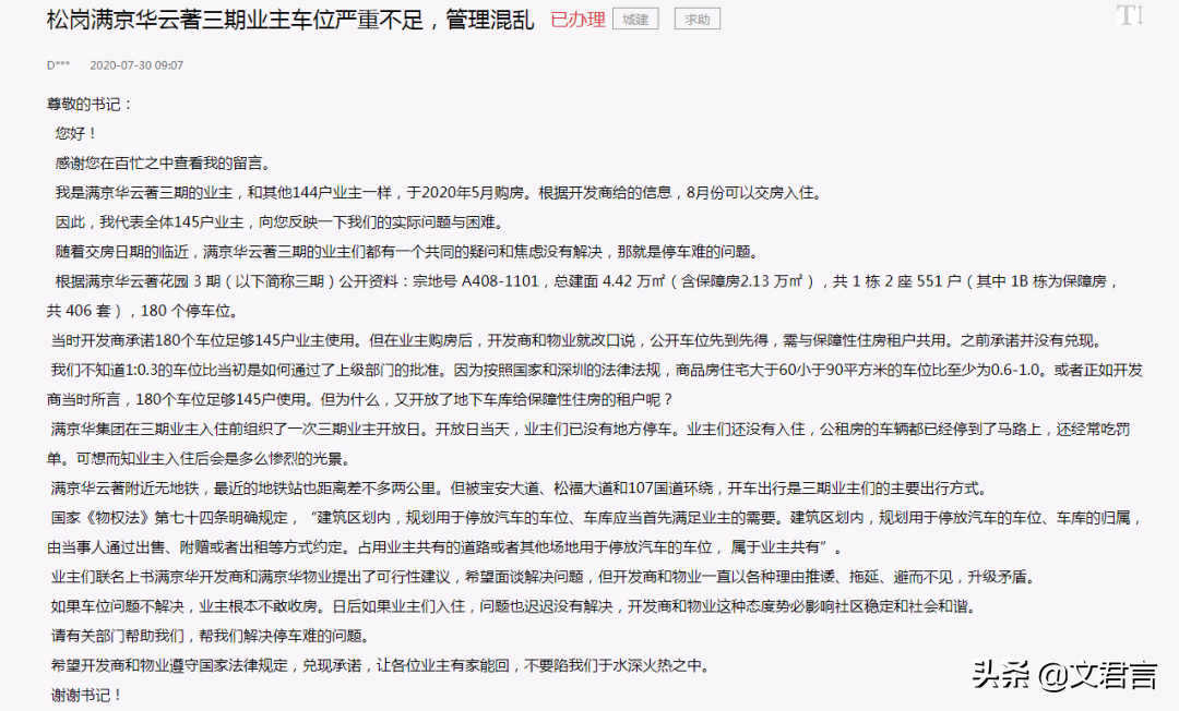
哪怕不开车的朋友们也都知道!所以在选楼盘时,即使楼盘综合素质看似再好,车位不足也会被购房者优先pass掉,买房时更是会再三确认停车位是否充足;满京华云著二期卖楼时,保证180个车位肯定够145商品房住户使用,结果卖完后改口称与406户保障性住户共用,摇身一变成“渣男”!上期推出的华庭共有1129套房源,但车位配备只有675个,车位比1:0.6,同样硬伤不小。

想想夜晚回到家还得不断找停车位,业主们怎能不焦心?本来在设计和审批中车位数量就存在问题,但较大的问题还是在于不诚实,存在欺诈销售的行为!最后开发商给出的解决办法是:3期1A/1B两个单元住户可以各办理90张停车月卡,名额确定以业主/住户内部协商为准;超出部分的车辆,可由物业管理处向周边商业停车场协商,以等同本栋地下停车场的标准,停放到周边商业停车场。

小区内车辆乱停乱放业主们的维权过程虽艰辛,但处理结果还算勉强接受吧,只是消费者们从上帝变成了“弟弟”罢了。

此前开盘的东部某品牌大盘,对上车族来说哪哪都好,价格良心,户型设计优秀,还是地铁上盖物业,然而同样是1:0.6的致命车位配比,最终开盘去化五成,不甚理想。曾经听到朋友抱怨,小区停车难,如果8点以后回到家,几乎就找不到停车位了,更令人崩溃的是,好几次晚上带孩子去看急诊,回来在停车场转了1个小时,楞是一个车位都没有,当时疲惫又绝望!3.日夜赶工,噪音扰民去年9月之前,还有多条是投诉项目为了赶进度日夜施工,严重扰民的留言。
真替业主们感到心疼,夜晚还不能安静入眠,最后被宝安生态环境管理局勒令停止违规施工并做相应的处罚。关于一期多栋楼楼顶违建,危害居民生命财产安全的举报留言更是多如牛毛,所幸最后全被查处拆除完毕。
不断在违规边缘试探,不断挑战业主们的耐心,好在业主维权意识强大,才保护了自身的合法权益。

买了这个盘,你就是身披铠甲的维权人。买了车位不足的房子,你就成为奔波劳碌的深圳业主!最近“喝粪水”、“喝尸水”的热搜刷爆网络,虽说如此严重的现象是个例,但遇上不作为、不负责的物业简直恶心死人。为了避免遇上这些糟心事,下手前还是擦亮眼睛为好。看到这,你还会入手即将开盘的雅庭吗?
满京华云著华庭——满京华国际艺展中心全新住区,也是华南区较大艺术综合体的高品质住宅产品。整体占地2.3万㎡,总建筑面积约15万㎡,社区共规划6栋极具现代风格的高层建筑,采用围合式布局,每栋均享有中央社区景观的较佳瞰景视野。超1.7万㎡现代简约风格的艺术园林,为住户提供邻里交往、社区活动、休闲娱乐等多维活动空间,打造深圳西部品质人文宜居社区。
据销售爆料,此次入市均为两梯四户和两梯六户产品。




地铁交通方面,满京华云著雅庭距离最近的松岗站(11、6号线)步行约1.5公里,距离稍远,好在往来地铁站有社区微巴接驳,一定程度上方便了社区居民的出行。

最后一批420套住宅,价格参考上批4.95万/㎡带精装修,预计83~106平,3~4房,积分低刚需的你会不会参与此次打新呢!
来源:深圳湾区地产、深圳贝贝找房
声明:本文由入驻焦点开放平台的作者撰写,除焦点官方账号外,观点仅代表作者本人,不代表焦点立场。
