武汉天创元萃(售楼处) 首页 -武汉天创元萃销售中心武汉天创元萃 - 环境 - 户型 - 价格 - 地址 -楼盘详情 - 配套 - 电话 -天创元萃交房时间 - 配套 - 电话
扫描到手机,新闻随时看
扫一扫,用手机看文章
更加方便分享给朋友
✅武汉天创元萃✅✔️
✅武汉天创元萃-售楼处电话:400-678-8669转9999【售楼处已认证】✅✔️
✅武汉天创元萃-开发商电话:400-678-8669转9999【开发商已认证】✅✔️
✅武汉天创元萃-营销中心电话: 400-678-8669转9999【营销中心已认证】✅✔️
✅武汉天创元萃-展示中心电话:400-678-8669转9999【展示中心已认证】✅✔️
✅来电可了解楼盘最新动态、房价、在售房源、交楼时间等信息!让你买的放心,住的舒服✅✔️
从早期的金都汉宫、华润凤凰城、蓝湾俊园,向北延伸至万达公馆、联投中心、绿地海珀御观、长江中心、月亮湾壹号、龙湖清能天奕,直至国铁城投国樾滨江,形成了武昌内环滨江高端住宅集群。
可以说,从金都汉宫向北的沿江住宅用地已近乎绝版。当前,武昌内环滨江的发展方向,唯有从金都汉宫向南,直至黄鹤楼。
这一趋势的首站,正是位于中心枢纽位置的宝地:北枕凤凰山,南眺黄鹤楼,东接得胜桥,西带长江水。
项目地块不规整,西北角有加油站。北侧、西侧为主干道,东侧、东南侧、南侧为规划道路。1号楼和2号楼基本为南北朝向,3号楼和4号楼为南偏西朝向。楼间距约为31-32米。
项目体量比较小,从平面图来看,1号楼1单元、3号楼1单元可能为非常罕见的1梯1户结构,其他单元可能均为1梯2户或2梯2户纯板楼结构。3、4号楼之间规划有水景,3号楼2单元首层架空。临中山路一侧为防护绿地。
武汉贝好家的首秀
主打建面约127-170平户型,宣传得房率高达117%
天创元萃4栋住宅中,除了1-1#、3-1#为一梯一户布局之外,其余楼栋均为两梯两户布局,换句话说,项目所有房源都能实现专梯专户,拥有独立的电梯前室。
朝向上,天创元萃1、2号楼为偏东南朝向,3、4号楼则偏西南。
项目主打建面约127-170平户型,目前公示了三个户型图,分别是127、142、170平
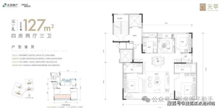
建面约127平米户型
4栋楼中都有127平的户型,数量是目前已公示的三个户型中最多的,并且绝对面积不大,总价门槛会相对另外两个户型低一些,算是武昌下半年相对较少的小面积产品。
(武昌区目前有120平左右户型的项目目前仅有武昌源著、中海东湖玖章、建发璟玥、龙湖武车项目)
户型本身非常的方正,阳台外带花池,拓展面积就比较多,据宣传,加上电梯厅,这一户型优化后的得房率高达约117%,放在三环内四代宅里面来看,这个得房率绝对是数一数二的了。
127平做成了四房三卫双套房的设计,功能性超级强,三代同堂或者二胎家庭也非常适合;南向面宽12.7米,采光面也是比较充足的,缺点是有个套房内的洗手间为暗房,除此之外,其他方面都很不错。
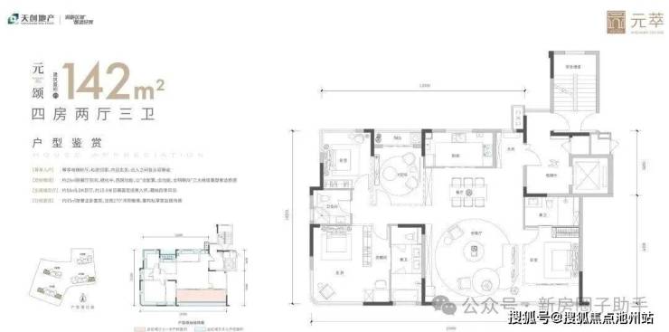
建面约142平米户型
这一户型的得房率同样约117%,相当出彩。
分布于2、3、4号楼的端头边户,房源数量也还算相对较多的。
南向面宽约15.9米,南面同时实现双套房+大横厅,舒适度更高;
主卧套房面积约35平,空间相当的阔绰,并且采用了转角窗+曲线外立面,观景视野、光照效果都更好。
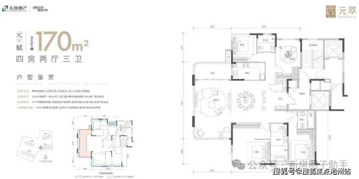
建面约170平米户型
这一户型优化后得房率约106%,略低于前两个户型,但放在核心区,依然是相当炸裂的存在。
同时,这也是项目最大面积户型,仅分布于2号楼最西端,房源数量是最少的。
客厅采用270度全景舱设计,非常适合观景的设计,并且南向主卧套房也采用了转角窗设计,观景面再次延伸,配合2号楼西头的位置,可三面俯瞰小区园林+南瞰市政公园,景观视野一绝。
缺点是房源相当稀少。
三个户型设计的都相当不错,并且106-117%的得房率在核心区属于no.1的存在,产品相当能打。
天创元萃。
10月7日,天创元萃武昌滨江双展厅开放,预示着该项目正式进入推广阶段。
据了解,该项目位于解放路与中山路交汇处,属于武昌内环滨江板块。
就建筑参数而言,该项目占地面积约11771.79㎡,计容建筑面积为23499.17㎡,其中住宅建筑面积 20856.92㎡。
区域定位与地段优势
1. 项目板块
项目位于武昌内环滨江的南段,属于武昌古城板块,是武昌传统的富人区。
周边长江大桥、黄鹤楼等地标,江对面就是龟山电视塔,不出家门就可以领略武汉的秀丽风光。
对比周边的华发外滩玺、华发农讲所地块,天创西城壕的劣势在于不临江。
2. 交通配套
地铁:项目距离地铁5号线昙华林武胜门地铁站C口约100米。
△图源高德地图
自驾:项目周边就是武珞路,可以前往中南商圈、梦时代;途径长江大桥,可以前往汉阳和汉口核心。
商业配套:项目所在板块是积玉桥,是武昌老城区,附近的粮道街吃的非常多,有不少还是网红店,昙华林也很近。但周边缺乏的大型商业体,万象城、楚河汉街、梦时代距离项目都有一定距离。
教育配套:根据拿地要求,地块规划新建住宅中适龄儿童入学对口中华路系小学。
项目的小学应该是对口旁边的中华路小学金都校区,初中预计对口粮道街中学积玉桥校区。项目周边的华发外滩玺,项目方说的也是对口粮道街中学积玉桥校区。
✅武汉天创元萃✅✔️
✅武汉天创元萃-售楼处电话:400-678-8669转9999【售楼处已认证】✅✔️
✅武汉天创元萃-开发商电话:400-678-8669转9999【开发商已认证】✅✔️
✅武汉天创元萃-营销中心电话: 400-678-8669转9999【营销中心已认证】✅✔️
✅武汉天创元萃-展示中心电话:400-678-8669转9999【展示中心已认证】✅✔️
✅来电可了解楼盘最新动态、房价、在售房源、交楼时间等信息!让你买的放心,住的舒服✅✔️
声明:本文由入驻焦点开放平台的作者撰写,除焦点官方账号外,观点仅代表作者本人,不代表焦点立场。
